Think Architecture是一家位于瑞士苏黎世的独立设计公司,由Ralph Brogle和Marco Zbinden成立于2008年,集建筑、项目开发和总体规划为一体。
董事总经理Ralph Brogle于1998年获得苏黎世联邦理工学院建筑学位,创意总监Marco Zbinden于2001~2005年期间在在苏黎世大学和柏林艺术大学学习建筑,并获得建筑学学士学位和SIA设计奖。
Think Architecture既是对自己,也是对当前和未来客户的一种邀请,它可以寻找架构挑战并根据专业基准来衡量自己。建筑思维包括设计和实现图像,从概念阶段到详细规划。
Think Architecture的愿景和使命是由一个逐渐建立,高度积极和创新的架构师组成的团队来实现的,团队拥有广泛的技能和经验,并表现出出色的协作和沟通能力,确保提供的广泛产品具有卓越的品质。
Think Architecture
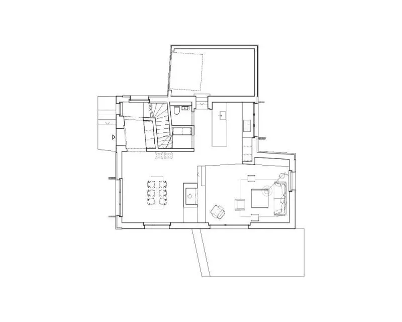
House in a Park , 苏黎世极简主义豪宅
Think Architecture完成了位于瑞士苏黎世的一处极简主义的两层住宅。穿过郁郁葱葱的公园,一系列立方体块创造了一个城市景观。他们用灰色石头砌成的偏面俯瞰着苏黎世湖,周围点缀着附近森林里的桦树和松树。温和的气候给这些作品带来了宁静的朦胧和忧郁的曲调。在某个地方,落叶的声音在人行道的表面上发出沙沙声,形成了一个隐藏的建筑聚集体。
该住宅是一座两层住宅,其地下室嵌入地下一层。这一设计决定将上层变成一系列相连的公共空间,所有的空间都通过通高的窗户直接向外开放。住宅的复杂结构将自然融入到建筑平面的每一个角落,创造了居民和环境之间亲密对话的时刻。
在某些情况下,大量的天窗从天花板上的矩形开口填充空间。这种沉浸式的健康源自对固体墙壁的最小使用,这些墙壁被多孔的墙面所取代。在某种程度上,该项目的体量被减少到间隔在长满草的山丘和摇曳的树木之间。
Think Architecture
苏黎世极简别墅Vineyard House Zurich
瑞士建筑工作室Think Architecture在葡萄园建造了住宅,其中包括阳台和下沉式庭院,可以看到苏黎世湖对岸的景色。该住宅位于苏黎世湖附近的一个小葡萄园外一片野花丛生的草地上。它是由Think Architecture为一个年轻的四口之家设计的,主人表示他们的主要要求是房子要现代化,布局要简单对称。“尽管对称的别墅在建筑史上占据了很长一段时间,但近几十年来,它们往往只是新古典主义的仿造品,”工作室说。“葡萄园之家旨在证明这种特定的空间安排仍然有它的位置,并可以转化为当代设计。
住宅由一对堆叠的直线体块组成,两个体块都由高高的凹窗点缀,可以看到周围的景观。一个三米宽的阳台贯穿了房屋较低体量的整个长度,拥有chevron图案的装饰地板。
它的中心是一个以一棵树为中心的小的下沉式庭院,这个设计特别地与室内接待室的顺序保持一致。坐垫环绕庭院的四周,让家庭在温暖的夏季放松,同时俯瞰湖水。为了补充住宅的外部,用灰白色的灰泥粉刷,内部生活空间的表面用石灰粉刷。雪佛龙橡木地板也贯穿整个走廊,与阳台上的装饰相呼应。
Think Architecture
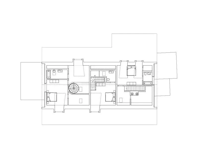
苏黎世Courtyard Houses
Think Architecture完成了位于瑞士苏黎世丘陵地带的一个庭院住宅。庭院住宅的类型是对社区严格的建筑规则的反应,它不能集中起居空间。通过选择的结构,可以在室内外空间实现高质量和高私密性。一个宽敞、普通的公园景观将整体与邻近森林的自然环境联系起来,而不是一个私人花园的蔓延。庭院住宅以模块化的方式建造,在基本概念上是相同的,但反映在共同的中间,并对特定的地形情况作出单独的反应。
严格的布局结构反映在立面和屋顶景观上。每个房间都有自己的顶楼,顶楼有天窗。屋顶根据特定房间的规模和重要性做出反应,并帮助安排不同的功能。屋顶景观是对倾斜屋顶建筑规范的一种建筑回应,并赋予建筑整体一个独特的身份。立面的表面由装饰混凝土制成,有清晰和深色的部分。相同材料的灰胶结混凝土加入石灰石,以不同的方式踩踏和处理,以实现特定的功能和审美。
Think Architecture
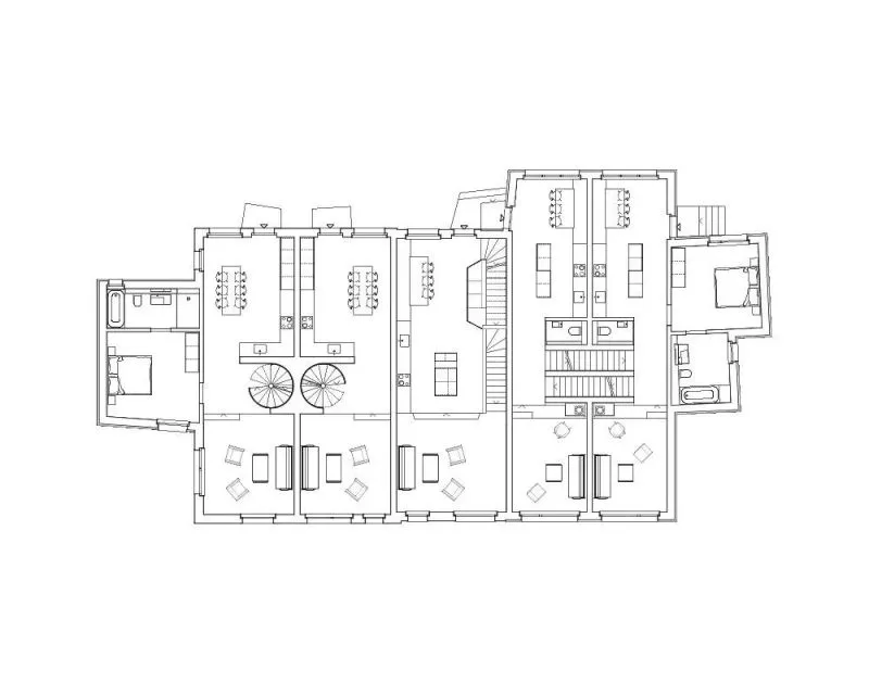
Four Houses in a Village
四个房屋的集合位于莫尔(Maur)中心区郊外的两个地块上。这些新的开发项目取代了原来位置上的旧结构,并成为通往新的面向东南的房屋开发的门户。在建筑上,它们以微妙的现代风格重新诠释了先前的建筑。
Think Architecture
局部的翻新赋予了这个独立的建筑一个全新的特性。酒窖被改造成一个私人水疗中心,并局部加盖了两层空间,巧妙的借用阳光,错落有致的光影让空间更显格调。
Think Architecture
Ensemble Bergstrasse
Think Architecture
Think Architecture
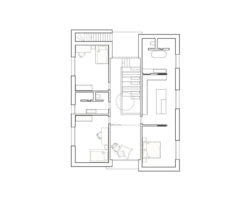
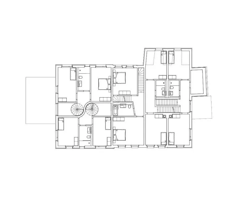
Cross House
这一标志性建筑的四面都是锯齿状的,似乎与受保护的树木融为一体,并嵌入到地形中。空间的凸起和凹面使建筑显得更小,并使其与周围环境和谐地融合在一起。每层有四间公寓,通过引人注目的中央楼梯进入,中央并设置有通风空间。由于复杂的平面布局,所有单元都得益于三面朝向。

