会议楼是校区的核心。校区与其周围环境,缺乏标志性的形象,只是作为Kortrijk Xpo会议中心的辅助而已。因此,校园需要被重新定义,使其不仅没有在物理环境下被封闭起来,也给予行人自由出入的自由。发展场所的目的是为了增加Xpo会议中心和校区彼此的可达性,将校园动态扩展到街侧,并将其与周围环境融为一体。
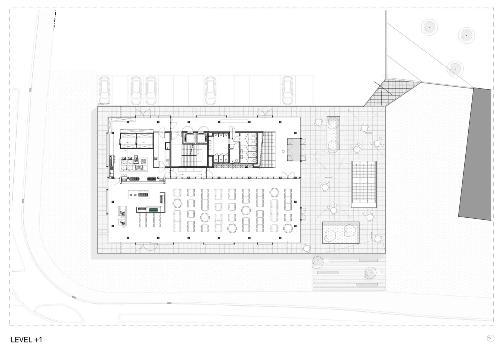
建筑的特点是校园与相邻场地建筑物之间的高度差。所以发展场地时,不仅要考虑建筑层面,也要包括城市层面。因此,场地的功能构成分为两层:一楼(街道层)的商业空间和二楼以上(校园层)的教学功能。通过围绕新建筑扩展的校园平台底层被架空,营造出漂浮感。大平台介于公共和半公共(室外)空间之间,清晰合理的划分出商业功能和教学功能。

“漂浮”的平台作为整个场地的关键元素,它重新构建,定义并组织了校园内的人流。二楼室外的广场平台,可以作为举办不同活动的多功能空间使用。平台上的洞和连接一楼室外区域的宽阔楼梯引导行人进入校园。因此,一个带有专业厨房的多功能空间是设计中的不可缺少的环节之一。



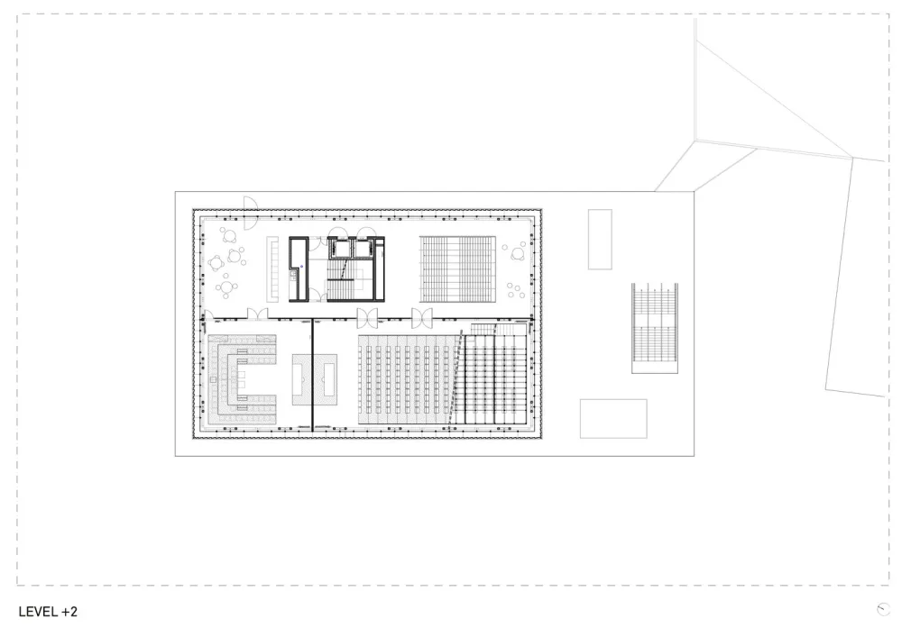
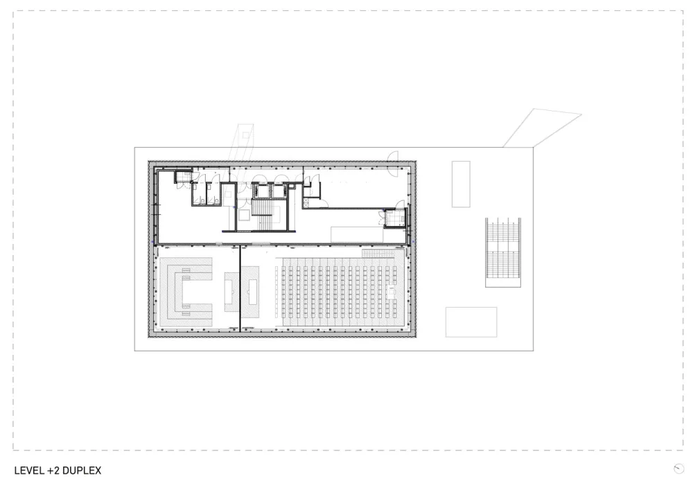
该项目的看点之一是建筑巧妙的支撑结构。设计起点是创建一个具有大型开放灵活的可分类的建筑空间。因此,建筑被设想为一个拥有开放空间的叠加组合,一楼被柱子分割营造建筑体量漂浮,二楼则被水平混凝土板定义形成平台。三楼地面和屋顶由钢桁架支撑承载。三楼夹层由钢筋混凝土构成并悬浮在桁架内部。贯穿三层,位于中央一侧的混凝土核心筒内包括电梯,楼梯和管道井,是保证建筑结构稳定性的关键。











建筑师 : dmvA Architecten 地址 : Universiteitslaan 2, 8500 Kortrijk, 比利时 主创建筑师 : David Driesen, Tom Verschueren, Jolien De Baets, Gert-Jan Schulte, Rob Naulaers 建筑面积 : 2500.0 平方米 项目年份 : 2017 摄影师 : Luca Beel
版权声明:本文内容由用户自行发布上传或投稿由设计芝士代为发布,版权归原作者所有,设计芝士不拥有其著作权,亦不承担相应法律责任。如果您发现本站中有涉嫌抄袭或侵权的内容,请点此提交工单进行举报,一经查实,本站将立刻删除涉嫌侵权内容。

