北京半岛幼儿园项目是我们与半岛教育集团的第二次合作。我们的目标是将Montessori教育理念和建筑设计融为一体,创造出一个更合理的空间和安全的环境,让孩子们能够自由快乐地学习和成长。
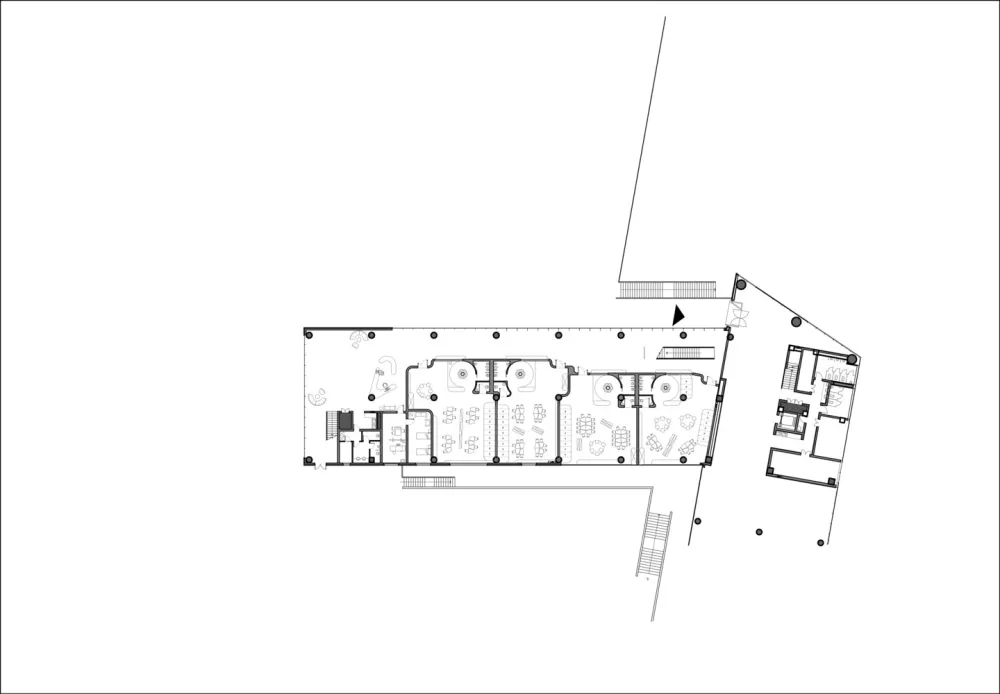
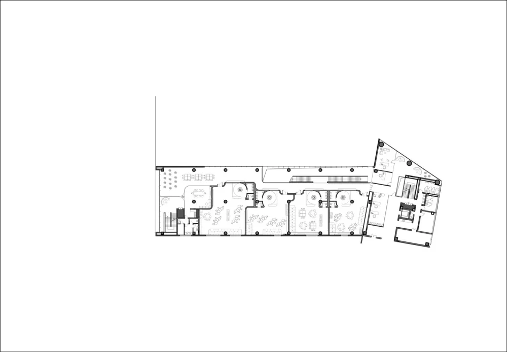
原有的建筑物是一个开放空间办公室,整个大空间分作4层。我们的首要任务是根据孩子的比例改造空间。在设计时,我们加入了许多小房屋的设计,这样可以让孩子更具有主人感和安全感。
对教室的设计是简约的房屋;图书馆则是一个开放空间,在其中央种下一棵树,好似一个乡村小镇的广场;走廊设计成多功能的开放空间,孩子们可以便捷地到处活动,这样不仅可以提高他们的社交技能,也便于老师的管理;部分走廊还被打造成为田野的模样,让小朋友们可以体验季节的变化。
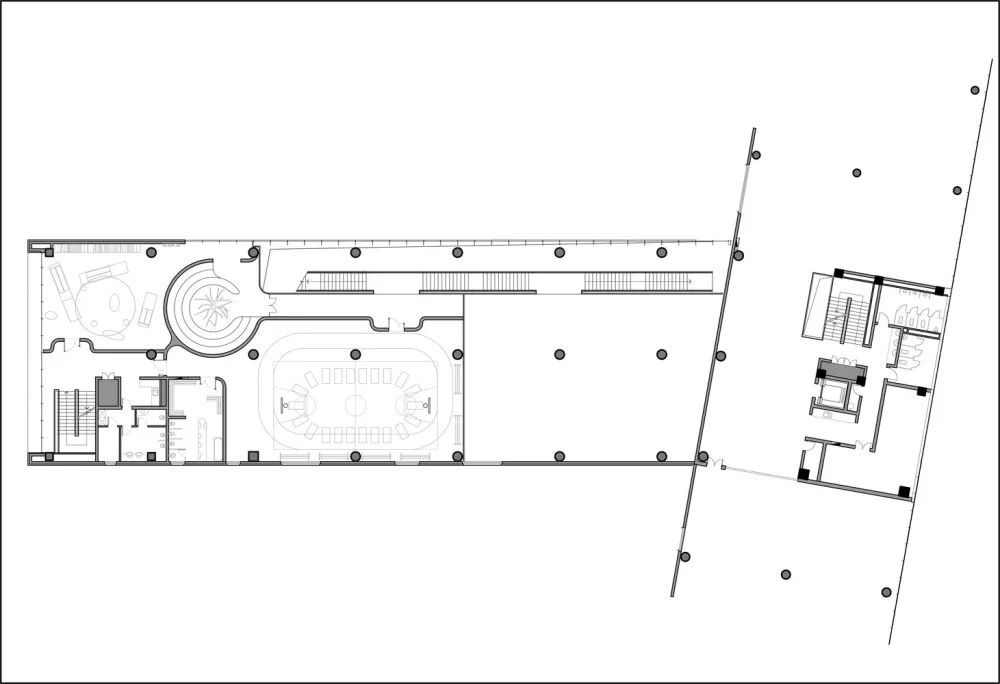
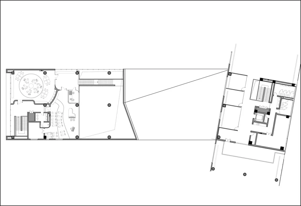
一个蓝色大楼梯连接着每层楼,宛如以前人们改造的运河。从整体来看,房屋与楼梯的布置呈现出一幅自然和谐的画面——一座沿河搭建的村庄。如村庄一样,蒙台梭利幼儿园也是一个社区,在这里儿童与成人自由交流、互相学习。
值得注意的是,我们对门专门做了一个特殊设计,使非常小的孩子也能简单安全地使用,避免尖角可能造成的意外。同时,大量使用窗户可让老师观察每一个小朋友的活动。
我们通过构建一个自由、开放的空间,让孩子们可以根据自己的意愿自由活动和学习,并不断挖掘自身潜能。通过这样的设计,孩子们将逐渐学会独立以及做决定,这种习惯将在他们未来的整个学习和生活中发挥重要作用。


















建筑师 : ArkA 地址 : 亦庄地盛西路1号数码庄园C座,北京,中国 客户 : 半岛教育集团 建筑面积 : 8000.0 平方米 项目年份 : 2017 摄影师 : Chiara Ye
版权声明:本文内容由用户自行发布上传或投稿由设计芝士代为发布,版权归原作者所有,设计芝士不拥有其著作权,亦不承担相应法律责任。如果您发现本站中有涉嫌抄袭或侵权的内容,请点此提交工单进行举报,一经查实,本站将立刻删除涉嫌侵权内容。

