“村镇生产学校” 项目由Rural Digital Baccalaureate No. 186的学生以自发提议和自主管理的形式应运而出,受到2015年Comunal: taller de arquitectura事务所开办的竹建材技术培训课程和教学空间短缺状况的推动,计划实施一个自主设计建设的教学空间扩建项目。
“参与式设计工作坊” 开始于2016年,共设有五个用于研究讨论和知识交流的教学空间,Tepetzintan村镇的学生通过手工模型和设计图绘制表达他们对于新校舍的创意灵感,功能需求以及期待展望。 在工作坊的学习生活,使学生们产生对于建立一个新 “村镇生产力学校” 的最初设想,这不仅将在低预算前提下通过对当地建材的利用,为该地增加合理得当的教学空间,同时还可以从文化,社会,生态和经济等视角出发,重新思考符合当地自身状况的教学策略和教育形式。

新校区项目的初衷在于提升学生对贸易和商品的知识储备和专业能力,让学生们可以突破当地传统生产链的封闭形式,复兴社区祖先世代相传的古老智慧,避免当地人口外迁和家族产业没落等情形的出现。 学生们对这些社会问题做出分析判断,提出包含3间教室,1个蔬菜种植园,1个药学栽培基地,1个当地建材实践工坊和1个厨料实验室的方案。药学栽培基地用于恢复当地草本药物和传统药材sowing milpa的本土产业形式。厨料实验室则负责药膏,乳霜,糖浆等农产品的研制生产,建材实践工坊则用作教授竹子及其他本地材料建造方法的培训地。
项目最初在2017年由Comunal: taller de arquitectura事务所和学生面向学生家长汇报展示,得到了家长们的一致赞同和支持。社区委员会同期组建成立并跟进项目实施,开始接管社区方面的各项事宜。委员会接收到来自学生家长们的多种募捐物资,包含竹子,石材,交通运输并承担部分工程项目实施的人力, 社区委员会则贡献出用于学校建设的土地,并管理项目各项工作的巩固和落实。

项目于2017年7月开工,首先将学生家长捐赠的500棵竹子进行切割,建造校舍的竹木结构。建造过程同时也是一次教学实践,组织该项目的年轻人及学生现场开设实践工作坊,从而利用这个机会对大众和下一代进行教学培养,将所学的知识技能继续传播推广。除了建造上的合作,挖掘和开采石材的工作也被分配到村镇各个家庭由年轻成员完成,只有通过大家的共同协作项目建设才最终变为可行。

除了社区内部的捐赠和资助外,该项目还得到了来自Novaceramic,Rotoplas和Ecolam多家私营公司的赞助合作,以及来自加拿大地方倡议基金(FCIL)的国际支持,并通过Comunal: taller de arquitectura事务所组织的多种游说和动员会为项目争取到了更多资金上的支援。教育教学方面,项目与目前推行统一的教育体制,试图将教学空间和课程大纲同质化的理念大相径庭,转而建议教育应因地制宜,在每个区域独特的环境背景下发展出真正适合年轻人学习和需要的合理教学空间,从一定程度上可以缓解年轻人因不适应当地文化而选择去临近城市或国外谋生的现状。
目前,Tepetzintan的学生委员会已经攻克完成了项目的第一阶段(1个教室+服务设施),而第二阶段(1个教室+厨房-实验室)已在建设过程中,预计可以在2019年1月份完工。 第一阶段的建成是在教师PabloLópez的带领下由社区青年,建设委员会多方努力的共同成果,项目的顺利落成证明民主自制和社区发展的伟大目标是可以通过当地人民的互助和集体力量实现的。








▼项目位置
▼总平面图
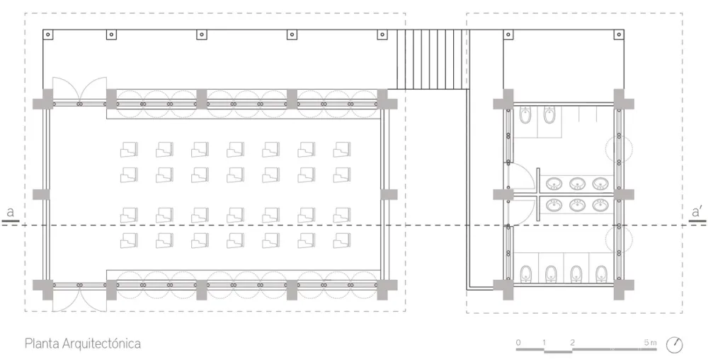
▼教室平面图
▼建筑日照及室内通风示意
▼雨水收集系统剖面图


▼建筑剖面图
▼建筑立面图
设计公司:Comunal Taller de Arquitectura 位置:墨西哥 类型:建筑 材料:竹子 砖石 现浇混凝土 标签:Puebla 普埃布拉
版权声明:本文内容由用户自行发布上传或投稿由设计芝士代为发布,版权归原作者所有,设计芝士不拥有其著作权,亦不承担相应法律责任。如果您发现本站中有涉嫌抄袭或侵权的内容,请点此提交工单进行举报,一经查实,本站将立刻删除涉嫌侵权内容。

