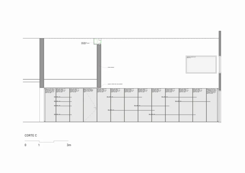
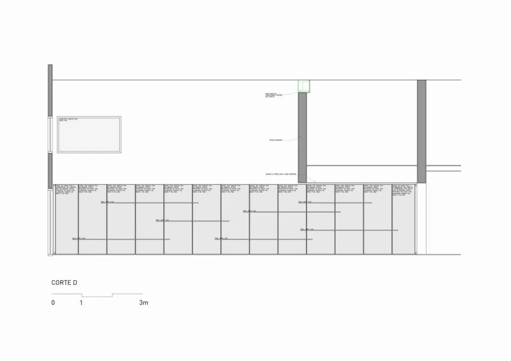
图书馆位于圣保罗,是对现有空间的加建,并与主要房子相连。场地和房子启发我们创建了一个工作和阅读空间、一个避难所,引导我们在一个完全白色的房间里创建覆盖着稻草的木板。
玻璃架子由面板的相同结构支撑。门本身是木制面板,然而,他们保持着一种很具有欺骗性的连续效果。我们相信这种连续性有助于创造一个冥想和自省的空间。这样,与外界隔绝的感觉是明显的。
图书馆有一个自然光线通过空间的开口一双适当的基础。与面板继承的人造光也有背光。拥有自动化远程控制系统,允许创建几个场景:阅读、工作等……




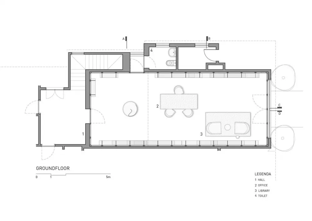
我们为图书馆专门设计了家具:杂志架、抽屉和桌子。我们还选择了 Giulio Cappellini,Front Design,Werner Aisslinger 和艺术家 Anish Kapoor 的作品,这些作品都完美地融入了建筑中。




















建筑师 : Pascali Semerdjian Arquitetos 地点 : 圣保罗, 圣保罗州, 巴西 主创建筑师 : Domingos Pascali, Sarkis Semerdjian 设计团队 : Domingos Pascali, Sarkis Semerdjian, Linda Matolli, Lucas Florentino 面积 : 60.0 平方米 项目年份 : 2018 摄影 : Ruy Teixeira
版权声明:本文内容由用户自行发布上传或投稿由设计芝士代为发布,版权归原作者所有,设计芝士不拥有其著作权,亦不承担相应法律责任。如果您发现本站中有涉嫌抄袭或侵权的内容,请点此提交工单进行举报,一经查实,本站将立刻删除涉嫌侵权内容。


现在这个浮躁的世界,能细心整理一些东西发上来的越来越少了。要么就是敷衍的图片,要么就是枯燥的文字。之后就是AI生成的预制菜类的打包便捷快餐了。感谢楼主的分享,让我能在大智能无人化来临之前,看到同类发出的项目。有幸与您互动,缘分2
是不是一直复制,人就会变懒,变笨,第一次的复制粘贴,可能还略带羞赧,第二次再复制,内心的自责就少了一分,第三次毫不犹豫的ctrl+v 是那么的心安理得。回头一看,重复的留言已经700多条了。心安理得么?得到了什么呢?
人生本就短暂,走了除了家里三代人能记得,谁有会记得谁呢?反倒是这数字世界会多多少少留下我们的印记,然而周而复始的评论终究无法让人看上一眼,注定成为网络垃圾。
宝剑锋从磨砺出,梅花香自苦寒来。
现在这个浮躁的世界,能细心整理一些东西发上来的越来越少了。要么就是敷衍的图片,要么就是枯燥的文字。之后就是AI生成的预制菜类的打包便捷快餐了。感谢楼主的分享,让我能在大智能无人化来临之前,看到同类发出的项目。有幸与您互动,缘分