2014年,南非民主时代的第一所大学Sol Plaatje大学(简称SPU)正式开始运作,与Kilometre Array Telescope(简称SKA)策略相同,Sol Plaatje大学初期招收135名学生,并计划在10年内扩招至7500名。Sol Plaatje大学坐落在Kimberley内城,内城采用了先进的城市设计框架将现有的居民、公共和教育存量与新建大学无缝衔接,并将高等教育发展作为内城生活的核心部分。
Designworkshop在两个阶段竞赛中都取得了成功。竞赛目的在于设计一个包含图书馆、教学、学习和社交的学生资源中心作为大学生活的主体建筑。建筑师探讨的关键问题是,让这种新兴的建筑类型在南非融入全球化中发挥积极作用。
与Kimberley标志性的Big Hole钻石矿洞相反,这栋建筑具有独特雕塑般的形体,像小山丘、brakdak房屋或者矿井一样从无尽水平地面上升起。建筑的结构体系和外部造型都采用了单一材料混凝土,混凝土材料既是灵活的建筑材料也是有效的室外温度阻隔器。学生资源文化中心在延续了南非传统的同时为建筑实践提供了宝贵经验。
以一个倾斜的公共讲台为中心,学生资源中心的首层是对Kimberley人行道、小路、广场和花园的延伸。这个公共空间可以使人们躲避干旱和周期性冷热不均的气候。

在南非这个资源稀缺的地方,建筑具有很高的节能效率,能够在允许适量自然光线进入的同时有效增加或减少阳光带入室内的热量。混凝土内部的冷热水管也能够进一步调节室内温度。在学校日常生活中,这座建筑是一个避难所,是24小时服务的冬季休息室和夏季乘凉阳台。
坚固的模块草泥砖是南非传统的brakdak室内结构。图书馆将这一传统方式改良为厚度22cm,高度达36m的独立混凝土外壳。这个中空外壳从地面升起到建筑最高点,俯视整个校园。

远古时代传授知识的场景通常是人们在一个公共空间里,与长者、思想领袖和大师聚集在一起。根据时间地点的不同,这个公共空间可能是河边、树下、公共广场或者是街边。这就是在社交场合中学习和传授知识。在社会生活和类似情况下,学习是在对现实生活体验与感知中,通常是通过对传统文化的实践中获得。
当知识以文字的形式被记录下来,获取知识的场景变成了在堆满书的桌子上安静地学习。这种获得知识的方式通常是来自直接经验之外的记录,在特定文化环境中以单向和线性的方式让学生汲取而来。这也是科学的“中立性”所在。
SPU图书馆和学生资源中心将这两种方式整合起来。学生资源中心是一个社交场所,在日常生活中人们可以广泛地进行计划中或偶然发生的交流。交流可以在现实空间里也可以通过网络,可以有书本也可以没有书本,可以在集体中也可以独自一人,可以有导师也可以只在学生群体中。这与远古时候在树下、河边、广场和街道上是类似的。从公共空间到私密空间,每一层都有与周边环境相对的“公共空间”,让学生能够全方位的探索学习。



对城市而言,学生资源中心是民主学习、社会和文化交流的里程碑,同时它也是知识思想创造经济发展潜力的摇篮。












▼场地平面

▼剖面a
▼西立面&东立面
▼北立面与南立面
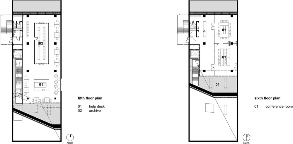
▼五层&六层平面
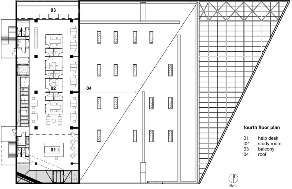
▼四层平面


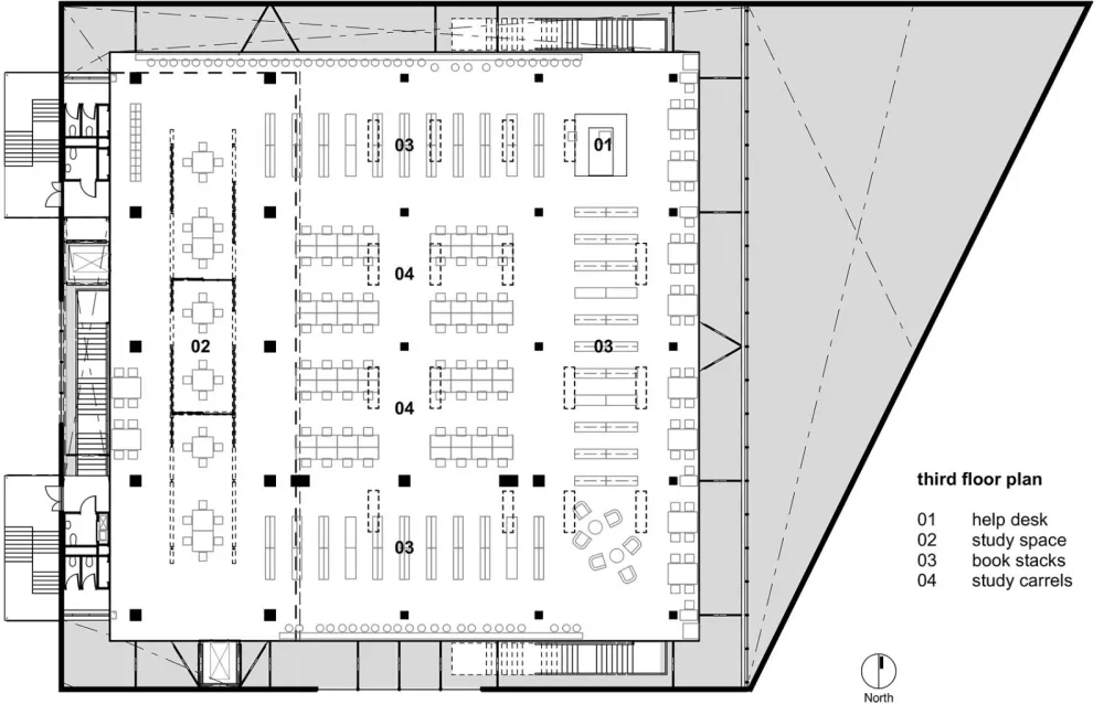
▼一层平面
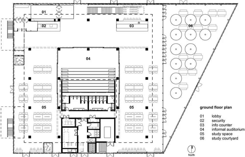
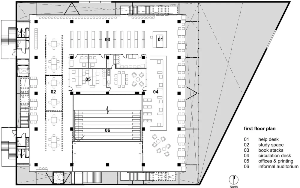
▼首层平面
▼概念分析图
设计公司:designworkshop 位置: 南非 类型:建筑 材料:混凝土
版权声明:本文内容由用户自行发布上传或投稿由设计芝士代为发布,版权归原作者所有,设计芝士不拥有其著作权,亦不承担相应法律责任。如果您发现本站中有涉嫌抄袭或侵权的内容,请点此提交工单进行举报,一经查实,本站将立刻删除涉嫌侵权内容。

