在2010年至2011年的15个月中,新西兰南部最大的城市——基督城,遭受了四次特大级大地震的破坏,这座以艺术、文化和周边自然美景闻名的城市,被夷为平地。由丹麦SHL建筑事务所和Architectus共同设计的Tūranga——全新的中央图书馆项目,是对城中心重建具有重要作用的九个先驱项目之一。
全新的中央图书馆在视觉上,旨在传达希望、团结和重生的象征意义,它将从根本上改变市民和访客在基督城市中心的体验方式。SHL以其丰富的图书馆经验,与当地建筑公司 Architectus 合作设计建造一座成为经典的公共建筑。
“Tūranga是一个将建筑精髓和的当地文化结合在一起的多层次项目。设计不仅仅需要满足全新中央图书馆的需要,它也肩负着重塑城市灵魂的使命,包括当地毛利纳塔胡部落深厚的文化遗产。” SHL创始人之一,图书馆主创设计师Morten说道。
五层的新图书馆面积约9500平方米,坐落在基督城历史悠久的大教堂广场。设计满足了城市对公共空间的渴望,增强社区性,普及文化,提供了终生学习的场所。图书馆致力于尊重并传承丰富多样的文化,吸引人们回到市中心,以促进创新发展。在设计初期,建筑师便与Matapopore Charitable Trust建立了紧密的合作。该机构致力于帮助当地纳塔胡人保护和传承其价值观,期望和历史,并让这一切能够在整个基督城的城市重建过程中得以实现。他们对建筑设计的影响力是巨大的——从建筑材料到人流动线,纳塔胡民族世系、丰富的传统知识和文化都被编织在整个 Tūranga 图书馆建筑中。
彰显部落文化的象征,首先表现在图书馆立面那层引人注目的金色面纱上。其视觉效果在日落时更为夺目,最后一缕阳光将为建筑勾勒出深邃的轮廓。折叠立面的灵感,来自于周边延绵起伏的山丘,在图书馆上层能眺望欣赏;细长厚实的新西兰亚麻叶片,是当地传统文化中一种重要的自然元素。
访客进入建筑时,轻松、友好的接待入口连接着图书馆、大教堂广场和周边的建筑物。建筑首层是广场公共区域的延伸,而公共广场也正是基督城举办公共聚会、活动、市集和表演的主要城市空间之一。开放、包容的入口,毛利语“whakamanuhiri”唤起了当地重要的文化基因,意在盛情迎接到来的访客。 入口内设有咖啡吧,这里也是科技创新区,拥有一面7米高的先进触摸屏墙的技术和创新区。接待区的墙上装饰着一幅醒目的图画,描绘了当地的鸟类在探索未知的旅程。在主核心筒垂直延伸的区域,绘制了当地重要的动植物进化史。
为了提升大教堂广场的市民活动,建筑二层设立了社区会客厅——为基督城市民提供了交流、探讨、分享和娱乐的空间。社区会客厅,是图书馆中一个与众不同的区域,拥有面向广场的最佳视角。图书馆二层也是Ngā Purapura 的所在地——一个以纳塔胡祖辈传统命名的儿童空间,包含了儿童阅读洞穴和一个活动室。
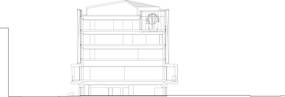
拾级而上,图书馆三层以上被用作藏书、办公、会议、研究空间,制作工作室、电脑室、音乐工作室,以及其他功能空间。在图书馆上层和屋顶露台,可以欣赏到坎特伯雷、南阿尔卑斯山脉和班克斯半岛的优美景色。建筑共有两个露台,其中东北向的屋顶露台面朝纳塔胡部落的众多地标,包括格雷山脉、村落聚集地Tuahiwi,以及位于广阔太平洋的新西兰毛利祖先家乡 Hawaiiki;另一个朝南的露台则直面基督城大教堂和班克斯半岛,并望向南部更远处的 Muttonbird 群岛,以及纳塔胡部落南部。









项目的结构顾问Lewis Bradford Consulting Engineers团队,研究出了一种全新的结构,它将有助于抵抗未来诸如2011年摧毁基督城等级的地震的再次发生。Tūranga 图书馆采用了非常严格的性能标准建造,设计确保建筑能够在大地震期间维持最小的结构损伤。这归功于全新的集成、自复位的结构体系,它允许建筑物摇摆,然后再返回到原来的位置。

创新的抗震力系统,由一系列大型混凝土墙组成,它们可在重大地震发生时跟随摇摆和移动,以减轻建筑物在地震峰值时所产生的加速度。每面墙都配有高强度的预应力钢筋,将其紧紧固定至地基,每面墙约可承载1000吨力。在地震发生后,这些钢筋的应力将使建筑物恢复到原来的位置,以确保图书馆成为基督城中未来几代的地标建筑。
▼从不同位置的露台可以欣赏不同景色
▼分解轴测图
▼总平面图
▼三层平面图
▼二层平面图
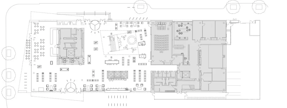
▼一层平面图
▼立面图


▼剖面图
业主:基督城市议会 建筑设计:Schmidt Hammer Lassen Architects 当地合作事务所:Architectus 总承包商:Southbase Construction 结构顾问:Lewis Bradford Consulting Engineers Ltd 文化顾问:Matapopore Charitable Trust 建筑面积:9,500 m2 竞赛:2013年国际竞赛第一名 状态:2018年建成 摄影:Adam Mørk
版权声明:本文内容由用户自行发布上传或投稿由设计芝士代为发布,版权归原作者所有,设计芝士不拥有其著作权,亦不承担相应法律责任。如果您发现本站中有涉嫌抄袭或侵权的内容,请点此提交工单进行举报,一经查实,本站将立刻删除涉嫌侵权内容。

