从人类(我们自己)超脱文明达到物质上的简约的生活方式,我们内心由原始自然形成的的动物本能便会得到释放。
令人费解的是,我们回到了我们本能的感官。Siu Siu原始感官实验室就是一个探索城市空间和自然森林环境过渡的工作场所。没有实际使用功能的材料,如光泽、草、佛像、花卉、香气、声音、瑜伽,以及其他精神层面的事物,被用做转换数字生活至模拟化的治疗手段。
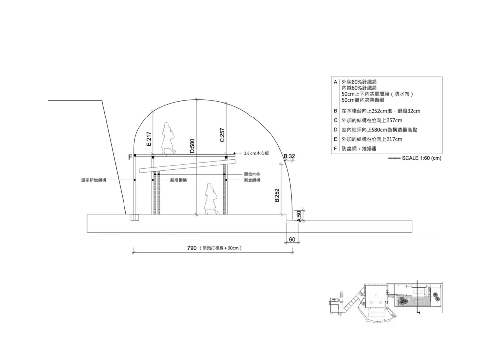
相同的概念也被植入到建筑设计当中。8m高的农用遮阳网,大面积覆盖在原来的木房子之上。与20米路径、树障和坡度之间形成的8个圆心组合成不规则弧形断面的网室。
网室系统是台湾常见的简易农务设施,是调节天然环境与农作物的平衡机制。亚热带气候的光线透过森林的树荫和遮光网以80%及60%间距合形成的微光照和透风性,形成适当的工作生活微气候状态。

所有东西都取决于此时此刻个人的感受,如此不切实际的短暂、完全无法对应日常文明生活所需、不求永续但却可能直接感觉。这些与生俱来的情感实际上就是当代人对于特定自然关系的一种产生的治愈力。这种治愈力将以未知的适于灵长类动物的方式继续发展下去。





































建筑师 : Divooe Zein Architects 地址 : 台北市,台湾 建筑面积 : 270.0 m2 项目年份 : 2014
版权声明:本文内容由用户自行发布上传或投稿由设计芝士代为发布,版权归原作者所有,设计芝士不拥有其著作权,亦不承担相应法律责任。如果您发现本站中有涉嫌抄袭或侵权的内容,请点此提交工单进行举报,一经查实,本站将立刻删除涉嫌侵权内容。

