Gotha Cosmetic公司委托iarchitects(Davide Cumini,Pietro Perego,Francesco D’Asero)对其总部办公室进行全面的翻新和扩建,设计团队从办公区域的扩建、展示区域的升级、新的入口的建立以及代表空间的建造几点进行改造。业主希望翻新后的总部空间能与转型后的品牌相匹配。
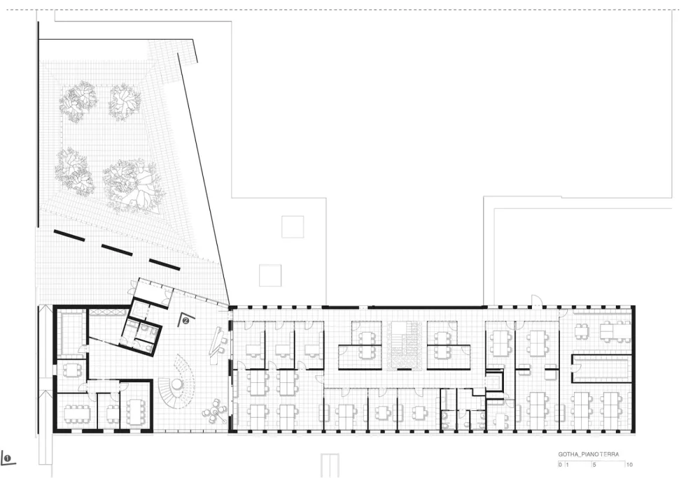
场地现有建筑包括一个与工业仓库平行相连的建筑。 “这次设计主要目标是将这个具有代表性的建筑融入到具有深刻意义的工业结构中,同时划分出访客与操作人员的活动空间。”该项目的负责人与iarchitects的合伙人Pietro Perego解释说。新的大楼已开始创建,这里将成为总部的新标志性入口。建筑一楼是一个双层高的大型空间,从这里可以进入一系列专门举办招待和会议的空间。而会议室、小型产品展示空间和活动露台位于一层的挑出部分。
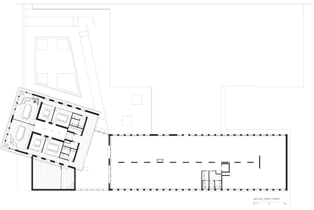
化妆品公司的标志位于黑色的漆面柜台后,整个设计与白色的环境形成鲜明对比,蜿蜒的大型螺旋楼梯成为入口空间的主要亮点。建筑的玻璃外墙为整体空间带来了良好的采光,而夜间则由吊顶灯和LED灯条为建筑内部提供人工照明。设计师对已经存在的办公室建筑进行了一层加盖,以满足未来的发展,同时建筑内部的一层空间经过了全面翻新。不同宽度的办公室围绕铁楼梯布置,每间内部都采用全玻璃墙,并配以最简洁风格的内饰,树脂或威尼斯饰面作为地板,光泽的黑色表面与墙面上覆盖着浅色织物。
不同与一般的外部空间,该项目中广场和绿色区域作为公司举办活动的扩展区域,主要入口旁的空间也位于新建筑与生产区域之间,将被种植树木作为庭院使用。生物气候织物的应用成为该项目的主要特点,这些织物用以限定空间,并在办公室和制造区之间形成连接,同时它们具有颜色变化的特点,突显了新建筑的特征。
“新的技术和配送方式让制造区得到了彻底改造,这样的设计也满足了业主增加生产并提高工作质量的要求。”建筑师Perego解释道。“整个建筑设计符合最高等级的能源环境标准,这一切都归功于建筑外部聚苯乙烯涂层以及外立面的覆盖织物,避免建筑受到太阳光的过度辐射,同时在寒冷时起到保温作用,内部采用高效热电对室内空间进行加热。”设计师关注室内空间的质量和舒适度,在办公区安置带有最新一代防晒系统的集成窗户和低耗能的LED灯。而制造区内的反墙系统与兼具绝缘和低能耗性能的LED灯相结合使用,极大地减少了整体空间能耗。
“Gotha品牌试图打造一种与时尚相结合的新形象,这是一次鼓舞人心的改变。Gotha根据客户的想法开发新产品,正如我们设计师也根据业主的愿景对这座建筑进行了设计规划。透明设计和色彩的结合应用,打造出这个创造力和生产力相结合的作品。”建筑师Pietro Perego解释说。














▼设计概念
▼二层平面图
▼一层平面图

设计公司:iarchitects 位置: 意大利 类型: 建筑 材料:织物 高新材料
版权声明:本文内容由用户自行发布上传或投稿由设计芝士代为发布,版权归原作者所有,设计芝士不拥有其著作权,亦不承担相应法律责任。如果您发现本站中有涉嫌抄袭或侵权的内容,请点此提交工单进行举报,一经查实,本站将立刻删除涉嫌侵权内容。


现在这个浮躁的世界,能细心整理一些东西发上来的越来越少了。要么就是敷衍的图片,要么就是枯燥的文字。之后就是AI生成的预制菜类的打包便捷快餐了。感谢楼主的分享,让我能在大智能无人化来临之前,看到同类发出的项目。有幸与您互动,缘分2
是不是一直复制,人就会变懒,变笨,第一次的复制粘贴,可能还略带羞赧,第二次再复制,内心的自责就少了一分,第三次毫不犹豫的ctrl+v 是那么的心安理得。回头一看,重复的留言已经700多条了。心安理得么?得到了什么呢?
人生本就短暂,走了除了家里三代人能记得,谁有会记得谁呢?反倒是这数字世界会多多少少留下我们的印记,然而周而复始的评论终究无法让人看上一眼,注定成为网络垃圾。
宝剑锋从磨砺出,梅花香自苦寒来。