黑与白的互相组合,点、线、面、体的有机结合:海南三亚瑞希国际医疗美容中心是一家提供专业医疗美容、医美咨询、订制美容服务的专业医疗美容机构。
色 | Colour
色:中国古代的哲学家:老子。曾说过:五色令人目盲。
在本案中,我们坚持用白色作为基调。使用白色并不是意味着一定是“极简的”。极简主义并不需要依赖于任何特定的颜色,白色是一个中立的颜色。这种中立,如同中国文化所倡导的中庸,是一种对热情的控制,是一种对欲望节制的力量。
计白守黑,是中国画的原则。虚实、空灵不仅仅只能用墨的深浅来调节,而留白也是重要的手段。在本案的空间中,大面积的白色与小面积的黑色互相组合。我们试图让这种组合原则符合中国传统绘画的原则,使观者通过点、线、面、体的有机结合,产生单纯与极致的多重体验。
艺术 | Art
艺术:没有艺术品的空间是没有灵魂的。如同巨龙无眼,美人无德。
在本案中,我们坚持自己动手创造艺术作品。用雕塑、绘画、数码技术等手段,布置空间中每一个中心或是角落,赋予空间美的灵魂。当然,我们也利用艺术作品制作了一些文创产品,使观者在丰富的空间中产生多维度的体验感受。
空间分割 | Spatial Segmentation
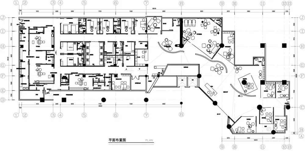
空间分割:基本的空间分割当然是以功能区域为目的的。我们并不满足于这种基本的方式,而是利用了人的视觉错觉,用光线对空间再次进行分割。与逻辑无关,戏剧性被引入了这个场所,透视错觉产生了,我们得到了再次切割空间的可能。
项目名称:瑞希国际医疗美容中心
设计方:南京徐松装饰设计有限公司
项目设计 & 完成年份:18年12月
主创设计:徐松
参与设计:陈鸣,陈悦,杨艳
项目地址:海南三亚
建筑面积:1000平
摄影版权:鲁哈哈
项目委托:瑞希, 三亚
合作方:海南自贸区瑞希医疗有限公司
客户:海南自贸区瑞希医疗有限公司
品牌:新中源,塞维亚,欧普

