这座新住宅被建在靠近阿迪吉河的维罗纳城门的一个农业庭院的谷仓里。该项目的主题是历史和现代之间的空间和物质对话,它的特点是对环境可持续性的极大关注。除了使用有效能源的技术设备和系统外,在材料的使用和设计选择方面也特别注意周围地区和景观。


与建筑一起,周围的花园也被重新设计,现在是房子不可分割的一部分。


花园和住宅的焦点元素是木兰树,根据客户的要求保存下来。正方形黑花圃接壤与石头地板上池设置这棵树的主角是户外空间和完美的对话与众议院:树叶的影子投射在日落石头建筑从所有的房间是可见的。


立面上的灰泥已经脱落,这样就可以看到形成建筑承重墙的河卵石。


在朝向花园的前面,一个大拱门重新开放,提醒人们该场地的历史农业功能,使其成为住宅空间分布的支点。一扇大的后门构成了砖石拱门,成为室内空间和花园之间对话的门槛和元素。


面向庭院的正面采用玻璃幕墙和木制立柱,以现代方式让人想起当地乡村庭院中典型的谷仓木墙。


立面的材料是维罗纳周围传统和典型的乡村建筑:在立面上,河卵石被嫁接到比安肯内的现代框架上,来自莱西尼亚的当地石材和落叶松窗户的整体元素。


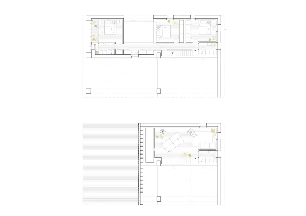
房子横跨三层,所有的楼层都与客厅的高度相呼应。一楼,以维琴察石板路为特色,欢迎客人进入一个大客厅和一个带砖砌壁炉的图书馆;上层的楼层被视为悬挂在天花板上的木质体量,包含卧室。


桦木胶合板覆层设计并定义了室内空间,标志着住宅不同部分之间的明显区别。































地址:意大利 年份:2018 摄影:Simone Bossi
版权声明:本文内容由用户自行发布上传或投稿由设计芝士代为发布,版权归原作者所有,设计芝士不拥有其著作权,亦不承担相应法律责任。如果您发现本站中有涉嫌抄袭或侵权的内容,请点此提交工单进行举报,一经查实,本站将立刻删除涉嫌侵权内容。


?