人生就是一场生命的角斗:在中国,大健康产业已成为发展潜力最大的未来产业。“实施健康中国战略” 正在酝酿和形成巨大的蓝海市场。作为设计师,不仅仅要关注设计本身审美,更要懂得从坪效到人效的商业转换。因此,在空间规划初期,业主及设计师就要从理性的消费需求出发,考虑空间布局与叠加使用,达到周期合理回报。
所以,空间坪效亦是AIMO HIIT的重要核心组成部分,当故事空间设计公司接手这样的项目,面临着不仅仅是一个概念方案这么简单,其实设计师要做的是一个空间品类的研发。在充分理解了AIMO HIIT训练中心的新零售商业模式后,在功能面积配比上,我们做了相应的改良优化。
从空间概念上来说,在最初一踏入这个还什么都没有的毛胚房的时候,心里就浮现出一个场景:罗马角斗场,但我感觉它不仅仅就是如此了,他应承载着的更大的意义。实话说,我很多设计灵感都在过往的旅游经历中而来。所以,设计的灵感从这里起始。在古罗马的角斗场上,产生过无数像司巴达克斯这样的英雄,他们采取了最原始的方式来表达对生存境况的理解。
当成千上万的罗马人在观众席上目睹这样一场的殊死残杀,进而感到身受热血贲张之时,人类的激情便被最直接、最深刻地激发出来,那是一种全身心的狂热,一种忘我的歇斯底里。今天的文明世界,当然没有古罗马时代那般狂蛮。但商业生存竞争暗涌的挑战从未停止,心外无物,竞技中最大的对手,其实是自己。而与自心依赖循规蹈矩的惰性竞技,才是预示了从传统行业死循环中解脱出来的本意。
我一直在思考设计该带给人们一个怎样的空间氛围,为想要追求实现自我目标的人打造一个燃点激情的场所。《老人与海》中有一句话令人印象深刻:人生来不是给打败的,他可以被消灭,就是不能被打败。在自己的惰性思想面前,我们都是不战而败。因为人思想的堕落,很容易迷失自我。所以,具有深意及仪式感的罗马角斗场圆拱门,便成为了我们的设计符号之一,但我们要用现代的空间设计语言来诠释他。是的,我们要打造一个能让人获得生命质感的精神空间。
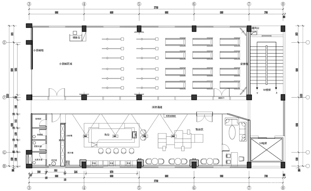
从入口进入空间,我们布局了两个大的动静空间分区。动静分区以两层玻璃隔断将一条公共走道一分为二,这是一条仪式感极强的走道,作为线性空间,它也是整个空间的主轴线,由此可以进入水吧区、休闲区、课室、更衣间、体测室、操房以及VIP室。通透而不失私密性的全开放式空间,所有会员的运动场景在休闲洽谈区一览无余。
我们希望设计能带给每个到此想实现自我的人一种激情,因为人的激情需要环境来点燃,生活竞争的技巧需要在实践中学习,外在的对手正是教会我们战胜内心怯懦的老师!今天人们已经不乏理智,缺乏的是一种热爱,一种激情,一种甘于为人生的激扬热血沸腾,来此赤手一搏。
“能战胜自己的人,是生活中的强者。”所以我们依然保持着对AIMO HIIT训练中心的未来期望:我们的征途是星辰大海。因为,这里有一群不甘平庸的人,愿与你一道踏进人生的角斗场,你来吗?
项目名称:HIIT训练中心设计
设计范围:室内空间设计
项目地点:广东深圳
项目面积:373平方米
完成年份:2019年4月
主创设计:朱海博
参与设计:方洁、宋豆豆等
设计机构:深圳市故事空间设计有限公司
客户:爱墨(深圳)体育发展有限公司
品牌:水磨石、水波纹不锈钢、人造石
摄影团队: RegimentalCommander 工作室、故事空间品牌部

