Matraville Residence设计为一个家庭两个父母祖父母两个成年的孩子一个女朋友和两条狗这个新的代际290平方米的房子在东部郊区悉尼是一个机会使我们重新思考“生活的艺术”的背景下一个典型的平郊区块(四分之一英亩的1/2)。

洋溢着的这个住宅甚至再现郊区的家里实验多代生活....的新模式

悉尼郊区位于悉尼市中心约9公里处,周围是沙地和郊区,由红色和肝脏色砖砌成的战时平房界定。这类场地通常的改造形式是在边界之间建立边界,使居民接触到的阳光有限,减少了视觉和听觉的隐私,几乎没有交叉通风。

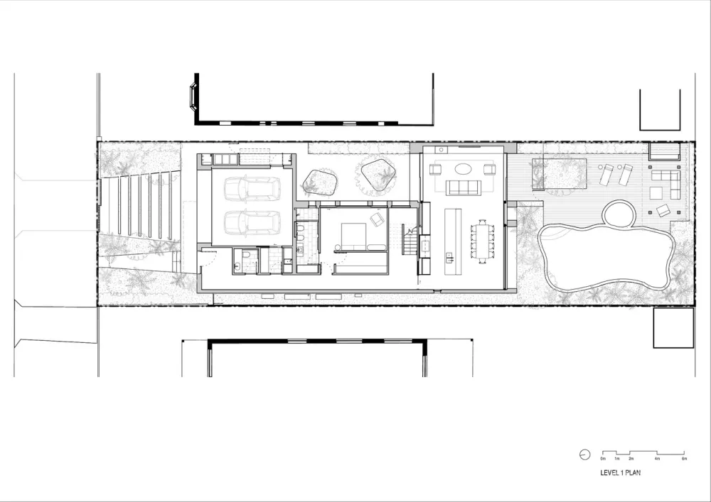
我们开始重新定义郊区模式,设计提供最佳的舒适性,仔细的空间规划,激活整个场地,创建一系列相互连接的室内和室外空间,开放到宽敞的花园和住宅后面的游泳池。一个主要的考虑因素是,这个家庭的三代人能够住在一起,但又有隐私,所以“很多人可以一起住在房子里,而不会觉得自己被压在了一起”。”


同样重要的是,在这种郊区环境中,周围的房屋往往密集在一起,我们想要建造一个对邻居“有礼貌”的房子,尊重他们的隐私和舒适,但这也表明良好的设计很重要。


最初,我们调查了与现有建筑的合作。然而,由于最初的脊状和未阐明的计划意味着所需的舒适性和太阳能接入无法实现,这一想法被驳回。取而代之的是,只保留了街区后面现有的游泳池和花园,在北面插入了一个新的内部庭院,以确保隆冬的阳光直射。

客户的需求要求主卧室、套房和衣柜位于一楼,这样父母只能住在一层。其余的卧室位于二楼,东向,还有一间共用浴室、书房和第二间客厅,旨在让多代人住在这栋房子里。

我们的建筑语言是刻意地最小化的,白色的袋装砖基座和黑色的轻型屋顶,带有大天窗,在平淡无奇的街道景观中既实用又大胆/引人注目。二层的主体通过屋顶形式、材料和天窗的使用最小化。室内的调色板是稳健和经济的,混凝土的形式,裸露的木椽和白墙被设计来补充周围的花园。



早期和适当地集成被动和主动设计元素对于降低建造成本和最小化运行开支至关重要。我们的目标是在夏天不让阳光照射在玻璃上,同时给朝南的客厅提供充足的太阳能,并有效地利用交叉通风。被动式元素包括建筑朝向的方式,深凹的窗户,深悬挑,最大化交叉通风的建筑开口,以及顶层的天花板,在高层抽取热空气和风驱动的通风设备。活动元件包括可操作的外百叶帘、增强型屋顶风扇、高效节能空调、优质绝缘材料、精心挑选的颜色和材料。

















位置:澳大利亚:悉尼 设计:TZANNES 首席架构师:TZANNES 项目架构师:康纳·德纳尔,托马斯·黑尔 区域:290.0平方米 项目年:2018 照片:Katherine Lu
版权声明:本文内容由用户自行发布上传或投稿由设计芝士代为发布,版权归原作者所有,设计芝士不拥有其著作权,亦不承担相应法律责任。如果您发现本站中有涉嫌抄袭或侵权的内容,请点此提交工单进行举报,一经查实,本站将立刻删除涉嫌侵权内容。
    

?