该建筑位于Gotland东海岸的Sjaustru渔村附近。度假屋坐落在海洋森林中,植被稀疏,朝向波罗的海,直接通往当地海滩。客户对他们想要在Gotland实现的家庭度假住宅有一个强烈的愿景,并充分参与了设计过程。这一过程始于15年前,当时他们在这个独家网站上买了一间海滩小屋。

他们花了几年时间来吸收这块土地,并尽可能地利用它。他们的第一个想法是修复现有的建筑,但最后,他们选择拆除它,为这个新的建筑让路。该形式是对“Gotland bulhus”的当代重新诠释,垂直的木材支撑柱和梁在内外都可见。


空间组织的147 m²平面图周围形成一个中央开放休闲空间替换旧的海滨别墅的小院子大天窗和天花板地板上滑动门开到院子里。毗邻这个空间的是两间双层房和一间带桑拿的主卧室。这房子睡得很舒服,10个人。开放式空间连接中央壁炉、入口大厅、一个升高的舒适沙发角,与开放式墙壁的起居空间和开放式厨房区域相连,所有这些都可以看到大海。

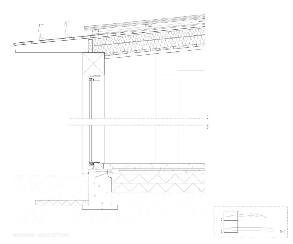
室内开放的休息室空间覆盖了耐候钢,与全高胶合板推拉门到双层床房间。墙壁和天花板上覆盖着粗糙的松木板。地板是抛光混凝土,所有现场家具都是实心松木。Velfac玻璃板凹进地板,使内外无缝过渡。建筑外部覆盖着耐候钢板,位于暴露的木柱和梁之间。搭接木屋面采用热浸镀锌金属饰面,雨水排水。外部的混凝土天井连接到相邻的沙丘草甸。
















地址:瑞典 设计:Murman Arkitekter 年份:2018 面积: 162.0 m2 摄影:Åke E:son Lindman
版权声明:本文内容由用户自行发布上传或投稿由设计芝士代为发布,版权归原作者所有,设计芝士不拥有其著作权,亦不承担相应法律责任。如果您发现本站中有涉嫌抄袭或侵权的内容,请点此提交工单进行举报,一经查实,本站将立刻删除涉嫌侵权内容。

