LOFT中国感谢来自 予舍予筑 的办公空间改造案例分享:
身处以“万国建筑群”著称的外滩地带,恒丰大楼并不起眼,相反有些衰败和颓废。若不是柔美而华丽的爱奥尼立柱宣示着她曾经的辉煌和骄傲,“耄耋之年”的她或许根本不会被历史选中,自然也不会有我们嘈杂市井之中的这次相逢。时间总是以一种神秘的形式创造某种空间的联结。
业主想把这幢优秀历史建筑的其中三层改造成为一处时髦的联合办公空间,轻快明亮,并和其品牌的其他办公空间产品保持连贯的核心元素。一边是“前摩登时代”建筑古典沉重的历史母题,一边是通透轻盈的现代时尚办公需求,这是予舍予筑最擅长的改造题材——在优秀建筑遗产的历史风貌以及外界因素的不断交叠的限制之下创造一种新的可能性。这种可能赋予了空间当下的最大价值。
项目位于上海江西中路.452-454号的恒丰大楼,是上海市第四批优秀历史保护建筑。联合办公品牌米域将其中三层由原来的青年旅社改建为共享办公。
保留什么、修复什么取决于我们看待历史的态度。约翰·伯格在《观看之道》之中说:“过去并非是供人休憩的住所,而是为了采取行动从而提取结论的源泉。”我们的改造原则是对历史建筑采取一种克制的回应,对内部空间则是尽可能进行丰富的探索——小心求证、选择性保留,但不刻意强调神秘感和沧桑感。
挖掘的过程充满了偶然的惊喜,比如顶棚那抹斑驳的浅松石色,以及石膏板隔墙剥除后原始而纯粹的钢筋混凝土立柱。这是时间和空间交叠的最好诠释。在上海明悦建筑设计事务所的协助下,古典精致的天花线脚得以再现,空间原有的格局得以被重新感知。
出于功能的需要,我们不得不在空间中加入隔墙,但为了让老房子的肌理更加清晰,隔墙在与天花线脚的交界处切割为线脚的形状,令原有天花线脚在视觉上保持连续。新置入的墙也一再被简化,只有片段的玻璃、白墙、钢柱直接装在旧有构筑上。同时,为了尽可能减少干扰视觉的繁琐因素,我们对细节反复推敲,让每一处纯粹到极致。
总共三层的空间由于老建筑既有格局的影响,采光较差,我们在有限的面积中挖出一个中庭,同时利用原有的破损楼板创造了若干“天窗”,巧妙地使用照明来创造光亮,消解历史建筑本身的体量和沉重感。因此,从略显晦暗、沧桑的历史建筑走进办公空间是一种如释重负的轻快和光明。
整个空间最大的视觉中心便是中庭里那个“刻意”彰显存在感的楼梯,优美的弧线激发并引导着大家探索上层空间的欲望。在最初的方案中,它其实并不是曲线,而是刚毅的直线,我们认为直线的迷人在于它的简单、坦诚,棱角分明且封闭的做法让它如雕塑一般矗立。
但米域团队更希望传递温柔、含蓄的精神体验,我们深入沟通后最终选择了使用柔美的曲线使其更富动态。旋转向上的楼梯连接着天花上的“穹顶”,是人自然向上的愿望;圆弧的意向是身体或者自然最原始的形状,莫名唤起身处其中人们的场所记忆,自然使人感觉到温暖、亲切。
在材料的运用上,我们希望愈加丰富,相比于米域之前“方寸”项目那种硬朗的工业风,我们更想把这里变成一个摩登老上海的试验场——二十年代的旧梦,六十年代的青春,九十年代的声色。所以不管地砖、壁纸还是家具、灯饰甚至镜子,我们让它们更富有斑斓的质感和色彩。
我们希望在这个空间里,驻于其中的每个人能感受到时间的流动和空间的变化、旧事和新物的转换,当然,还有出入繁华和静心工作的状态。

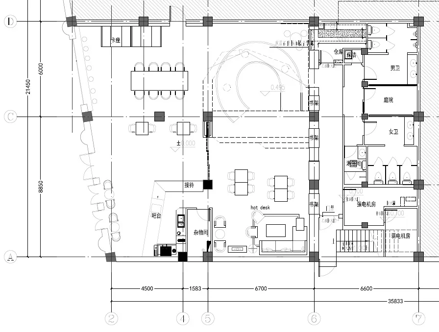
一层平面图

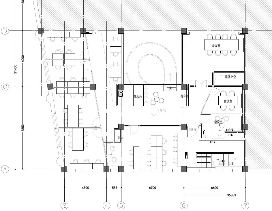
二层平面图

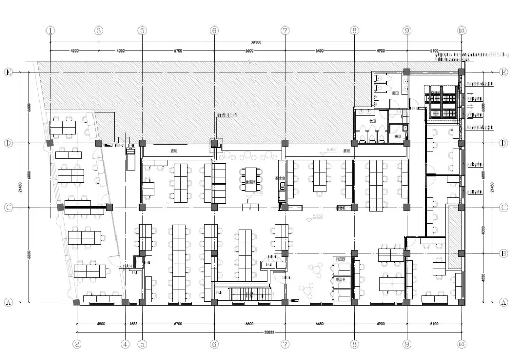
三层平面图
完整项目信息
项目名称:米域·丰再联合办公空间
项目面积:约1300平方米
设计时间:2016.10-2018.5
设计公司:予舍予筑 & 上海明悦(保护修缮)& 米域团队
主持设计:陈潇 许异
设计团队:庞禹 陈鹏 胥俊峰 曹真 王炳科
摄影:徐皓宇
本文内容来源于:Loft中国























现在这个浮躁的世界,能细心整理一些东西发上来的越来越少了。要么就是敷衍的图片,要么就是枯燥的文字。之后就是AI生成的预制菜类的打包便捷快餐了。感谢楼主的分享,让我能在大智能无人化来临之前,看到同类发出的项目。有幸与您互动,缘分2
是不是一直复制,人就会变懒,变笨,第一次的复制粘贴,可能还略带羞赧,第二次再复制,内心的自责就少了一分,第三次毫不犹豫的ctrl+v 是那么的心安理得。回头一看,重复的留言已经700多条了。心安理得么?得到了什么呢?
人生本就短暂,走了除了家里三代人能记得,谁有会记得谁呢?反倒是这数字世界会多多少少留下我们的印记,然而周而复始的评论终究无法让人看上一眼,注定成为网络垃圾。
宝剑锋从磨砺出,梅花香自苦寒来。
重复的点评论做任务,发现已经开始有已经评论过的帖子出现了,越来越频繁。看到自己千篇一律的水贴突然感觉很羞愧啊。再这样下去,给我水贴完成每日任务的帖子就不多了。