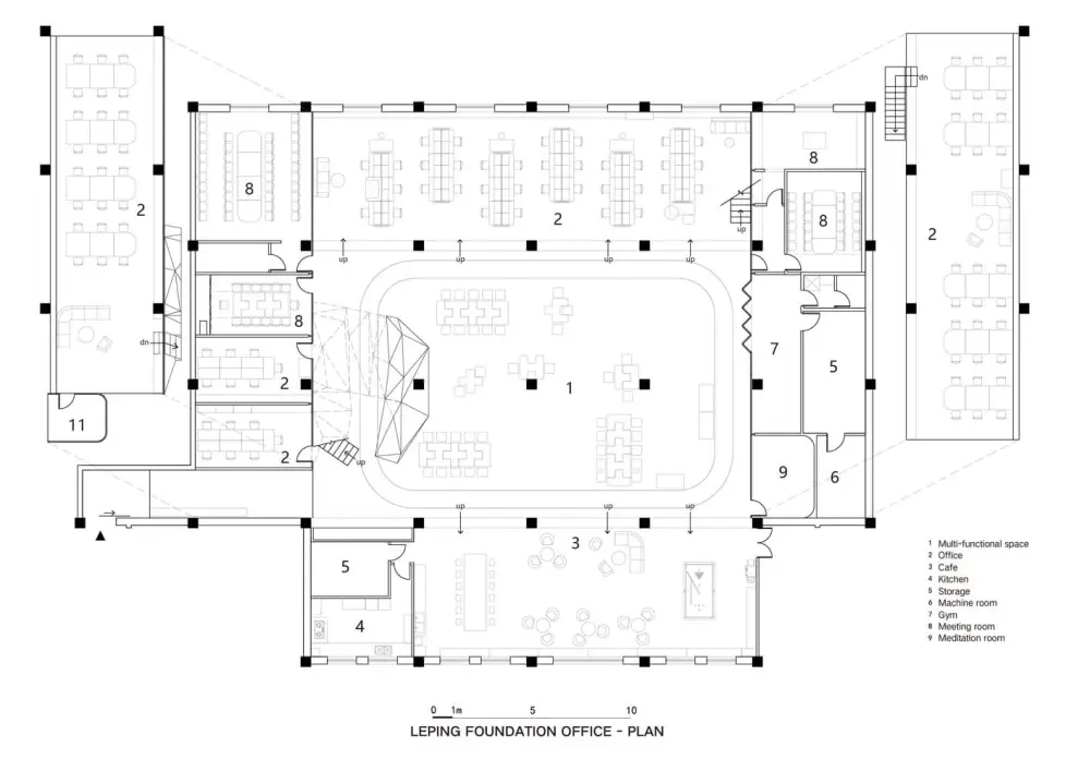
乐平公益基金会的使命是利用社会创新,构建包容、关注人、提供社会问题具体解决答案的生态环境。这一使命始终贯穿其办公室设计。以健康为切入点,设计的核心是让员工能够在工作的同时锻炼身体。室内各空间被一个环串联起来,环的上部种植蔬菜,下部是跑道。员工可以在浇灌打理蔬菜的同时相互交谈,在跑道上漫步讨论工作,或跑步健身。
环形之内的空间即是举办活动的场所,也是社会企业的孵化器。空间的一端有一面可以爬行的墙体,用于攀爬、拉伸健身,也提供适应各种工作姿势的墙面,顶部是一个小型会谈空间,同时内藏通往夹层的楼梯。 办公室朝阳一面是开放式的厨房与休息区,配有水培蔬菜设施。
众办公桌与凹凸桌为办公室带来了更多的灵活移动性。它们由众建筑的姐妹公司众产品设计制作。设计中还充分考虑了空气的流动与质量控制,光线的分布与强度,以及为员工创造更多非正式的讨论空间与保持隐私的冥想空间。整体空间设计参考了美国WELL健康室内环境设计标准。
 完整项目信息
 项目名称:乐平公益基金会办公室总部
 项目位置:北京
 项目类型:办公空间
 完工日期:2017.12
 主创设计:何哲、沈海恩(James Shen)、臧峰
 设计团队:蒋昊、沙靖海、崔刚健、相未星、敬臻臻
 摄影:金伟琦
本文内容来源于:Loft中国





















