
Eurowindow大楼位于越南河内的中心地带,带有全景玻璃窗,整栋楼满是引人注目的公寓住宅。


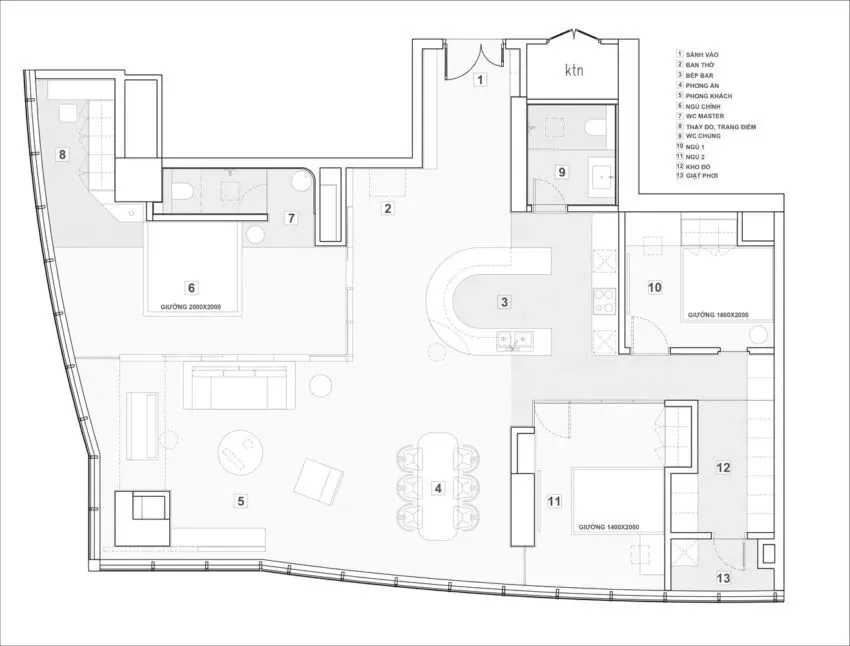
这套146平方米的公寓由DaoHo工作室设计,入口处以柔和的颜色和天然木质家具装饰。

入口让位于开放空间,包括厨房、餐厅和生活区。这个空间的亮度是独特的镀铬岛台。开敞的餐桌简单却令人印象深刻。


所有者想要更开敞的生活空间,以便在住宅的主要区域享受更多的乐趣。


这个房间有一个独特的细节,考虑到巨大的开放空间,从地板到天花板的墙面设置成落地窗引入了大量的自然光,而白色窗帘提供了一些隐私。



厨房右边有一间小卧室。


晚上,生活区和卧室完美地融合在一起,光线柔和。


-END-



?厉害膜拜