FAMILY No.13
K-2020公益13号家庭
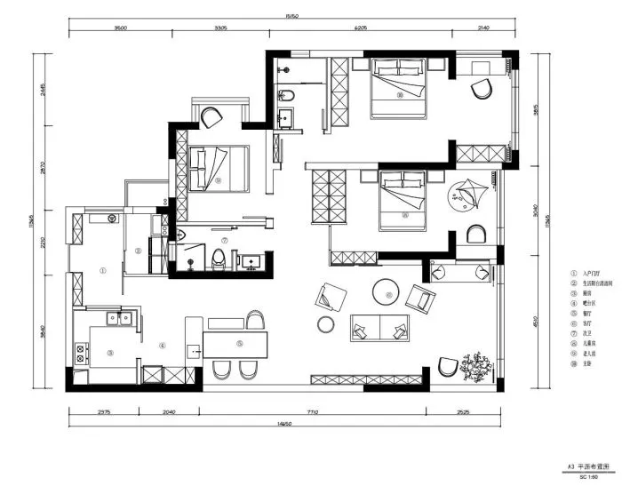
space 143.5㎡
A HOUSE OF LOVE FOR FAMILY
二〇二〇年五月,我们集结40⁺位优秀的设计师,向所有居住在都市有空间改造和设计需求的普通家庭,发出公益共建的邀请,希望在“后疫情时代(然而疫情仍在持续)”,“健康生活”的理念能真正被纳入进生活的常态之中。
– K-2020公益13号共建家庭 FAMILY No.13 OF K-2020 PROJECT / 一家三代 THEME / “爱”之屋 OWNER / Tiger – Mandy – Heron AREA / 143.5㎡ SUBJECT / 40万 TIME OF DESIGN / 2020.06 TIME OF COMPLETION / 2021.05 ADDRESS / 成都彭州 DESIGNE COMPANY/ 四川尺介建设有限公司 CHIEF DESIGNER / 江山 Jiang Shan 唐慧星 Tang Huixing BRANDS / 特地负离子瓷砖、成都林森上品家居有限公司 PHOTOGRAPHER / 雷磊 CONSTRUCTION / 袁兵施工队
一家三代的 “ 爱 ” 之屋
A LOVE HOUSE FOR FAMILY
城市充斥了太多同质化的商品住宅,因此“家”的味道显得格外珍贵。此次共建住宅的是一家三代,设计师意在将其打造成为一个充满爱的印迹的场所,于此,编织他们专属的家庭记忆。
空间由纯净大面积的灰和白搭起框架,再以木质材料作为调配。纯色简约时尚,木质纹理细腻,色泽或轻快,或沉稳,为空间注入自然的味道。这个被称作“家”的地方,线条简单精致,亦可赤脚行走其间。
DEEP IN THE REAL LIFE
区别于传统格局的入户即厅,进门便是一个可以看到拐角的走道。大面积的留白暗示了全屋的简约风格。设计师对走道进行扩充,以方便老人的行走和孩子的玩耍,沿墙的衣柜满足衣物的储存。老木桩可做换鞋凳,放置其上的暖光灯可以通过开关控制,正如设计师所说,推开门就是家的感觉。




客餐厅和过道没有固定形式的分割,合理分区也保持了空间的整体性。一通到墙顶的白色柜子和横向的木质隔层增加了空间的立体延展性,又呼应了置物格组成的镂空电视墙。保持色调统一,各式摆件无形中增加空间的活泼度。
此外,室内的所有摆件均为主人的生活用品,设计师尽可能地还原了主人一家的生活状态。电视墙创意性的放置了孩子的绘画板,也是及顶的高度。拉开就是整面电视墙的大小。即使不知道如何自信地将画笔握在手中,也可以轻松的自由绘画。







阳台的方位属于正西,设计师因地制宜,窗户采用百叶窗,不仅方便遮挡及调节西晒阳光,让入户光线得以柔和通透,并且自然的压强差也带来了良好的通风效果。在地面形成的条状光影为空间增加温度和通透感。为午后的休闲时光提供了更多可能。
空闲时可一个人坐在阳台边,手捧一本书。或者双人对坐,享受闲暇的下午茶时光,又或者举办小型家庭聚会。设计师也贴心的配置了符合场景的三种灯光效果。





DEEP INTO INTERACTION
餐厅以木质调为主,更显家的文艺气息。中西合并,开放式互通,由一扇隐蔽的木门区隔。既满足了川人的烹饪需求,也符合了主人甜点咖啡的生活乐趣。宽敞的长方形餐桌可满足孩子手工作业及主人办公,靠近西厨方便家人间的交流,也为家庭聚会提供了更多可能。



餐厅墙上的挂画是主人恋爱时期给对方的自画像。设计师觉得很有意义所以就替代了原本设计方案里的身高刻度板。是家里为数不多的固定软装,虽简单,却是这个家无可替代的记忆点。



DEEP IN STATE OF SLEEP
卧室以淡淡的奶油白为基底,木色为衬托,营造了一种空灵的静怡感。充沛的光线穿透飘逸的遮光帘,让睡眠区温暖舒适。收纳柜一门到顶,柜体所在的垂直空间几乎都可以收纳,扩充了好几倍的收纳空间,挑高的视觉效果很时尚,也更简约。



摆件和吊灯营造层次,避免单调。棉麻质感的床品和暖木色的床头柜,让空间更加温暖而沉寂。生活节奏得到真实的放慢,回归最纯粹的睡眠状态。


洗浴间是整个家的“去生活化”空间。去掉木质的沉稳,卫浴通铺大理石,混合黑白,自然淡雅,更显高级的时尚感。同时让面积狭小的空间更宽阔明亮。




| ABOUT K-2020共建设计师 |




空间由纯净大面积的灰和白搭起框架