Tapí一开始是在食品卡车上运营的,现在他们有了自己的实体店,该项目面临的挑战是如何将巴西的地方主义(北部/东北部)与一个年轻而成熟的品牌的国际化元素结合起来。客户希望在里约热内卢的城市情景中实现低成本项目,而不会忽视其原料食品——木薯(从木薯根中提取的淀粉)。该研究考虑了颜色和纹理——从食物的制作方式来体现该地区的审美特征。
Tapí, which began operations with a food truck, migrated to the physical store with the challenge of planning the combination of Brazil’s regionalism (north/northeast) with cosmopolitan aspects of a young and sophisticated brand. The client wanted a low-cost project in Rio de Janeiro’s urban scenarios without leaving aside artifice of the origin of its raw material food – tapioca (a starch extracted from cassava root). The research considered colors and textures – from the way food is prepared for the region’s aesthetic traits.


我们为商店定义了一个清晰而中立的基调。沙子、木头和稻草的阴影。从这个组织中,商店的所有元素在访客的体验中发挥了重要作用。篮子灯是在巴西北部发现的。典型的北/东北的二分门,以及立面框架的构成,带领观众到巴西旅行。柜台上有一个铜的细节,灵感来自本土艺术,也是Tapi品牌的一部分。
We have defined a clear and neutral basis for the store. Shades of sand, wood, and straw. From this organization, all the elements of the store played a fundamental role in the experience of the visitors. Simple design joinery enhances the “handmade” aspect. Elements of the logo were printed on part of the wall tiles. The baskets lamps were found in North Brazil. The bipartite door, typical of the North / Northeast, along with the composition of the frames of the facade, take the viewer to a trip through Brazil. The counter has a copper detail inspired by indigenous art, and also part of Tapí’s branding.






∇ 外立面图

∇ 平面图

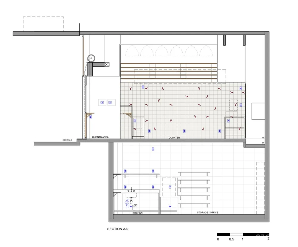
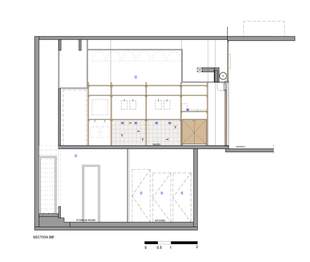
∇ 剖面图



完整项目信息
项目名称:Tavares Duayer Arquitetura
项目地点:巴西,里约热内卢
项目类型:餐饮空间/小店
项目面积:50㎡
完成时间:2018
设计公司:Tavares Duayer Arquitetura
设计团队:Alice Varella Tepedino, Nathalie Ventura, Fred Gomes, Clarissa Paes
摄影:Nathalie Ventura

