新加坡顶级豪宅Park Nova
由德信集团开发的首个新加坡私人豪宅项目Park Nova,遵循城市背景、历史环境,传递出一种可持续的人文居住理念,该项目由伦敦著名建筑事务所PLP Architecture携手新加坡豪宅设计公司Brewin Design联合打造,拥有毗邻大自然的生态美景和自然乐居的生活方式。
该地区曾是一大片果园,设计师溯源周边的生态景观,作为一整条设计动线,贯穿并汇集至Park Nova,令其环绕浓郁的森林之境,呈现丰盈的绿化表现力。
以蝴蝶为缪斯360°贯穿设计
建筑采用蝴蝶的轮廓灵感,通过整体柱体架在树冠之上,西面毗邻生态花园,东面朝向购物街区,南面眺望住宅片区,360°全方位的视野让Park Nova享有自然通风的环境和宽敞的美景。
设计师从人性角度考量,从起居室、卧室、户外阳台到花园景观,270°瞭望城市天际线。
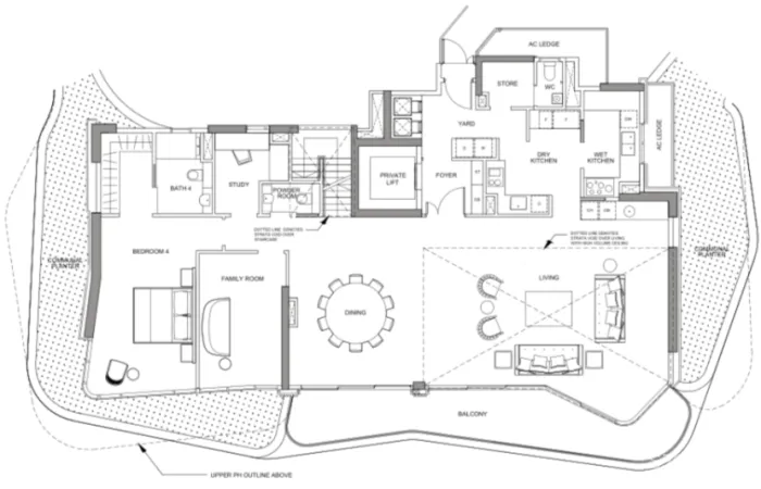
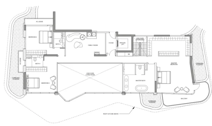
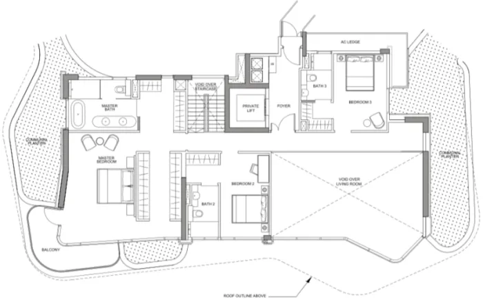
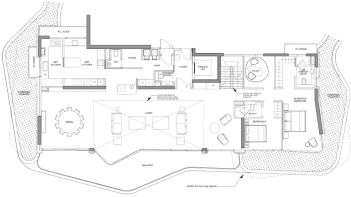
21层54套住宅,价值上亿
Park Nova共计21层,共有54套住宅,从2居室到5居室不等,每户型都能极大程度的享受室内外绝佳景观,沐浴在阳光之下。
地面入口低调大气,低矮的丛林自下而上攀爬蜿蜒,营造浪漫生态的氛围,让人回归到家的美好。
位于14层的空中花园带有公共泳池、健身房、温泉区、休憩室,极大程度满足了用户的室外需求,提倡健康、宜居的生活方式。
开放式的休憩区分为室内外,室内还可以享受独立式餐厅,全落地的玻璃窗捕捉绝佳的采光,令视野通透无碍。户外花园可以聆听虫鸣鸟叫,乐享原生态的自然风光。
室内设计低调大气、奢华慵懒
入户大堂气派十足,在低调奢华中渲染豪宅的氛围,曲线干净利落,让空间的线条美呈现得淋漓尽致,大理石材质的入口设计还带有降温效果。
室内的设计以冷色调为主,彰显平静、奢华的慵懒气质,室内布局一应俱全,并能无缝衔接至室外花园区域,创造自然环境下的居家惬意感。
家具的选择经由设计师精挑细选,呈现的风格体系和谐、自然,简约也是室内设计的主旨动线,因为外部的景观已经具有强烈的视觉冲击力。
售楼处中性色调,静谧温暖
售楼处的设计也由Brewin Design亲自操刀设计,这是一个更具暖意的风格特色,意图表达更为静谧的居家氛围,于是,中性暖色调贯穿了所有的可视面,所有的家具软装则与南非顶级豪宅事务所SAOTA旗下的OKHA携手合作。
多种类的客厅设计,给不同的户型带来不一样的思考,以及不同实景下,灯光的运用变换和家具的布置摆放。
建筑既要根植于自然环境,又要服从于自然环境,自然也只有被纳入到人的生活轨迹中,才能成为人的现实生活要素,而Park Nova则巧妙地体现了现出设计与环境的统一性,用一种全新的方式进入生活,进入自然。


?