一个注重人文情怀的现代室内设计社,分享简约、独特、富有个性的空间设计!用专业的经验帮助您,在这里,您可以获得全面的室内设计服务。
亲切、舒适、温暖、阳光……每个人心中都有关于理想住所的构想。
150㎡,Loft,家装总花费180万,室内设计刘阳用近半年时间,为他的业主实现了其对理想住所的美好想象,交出了最满意的作品——《恋日花都》。
客厅空间不同层次、质感灰的相遇,让看似没有温度的外表下,展露出细腻与温暖。在光的拥抱下,空间不同质感的灰呈现出丰富的表情。
设计师希望“通过自然、艺术与技术的相互衬连,从精神需求与空间使用上皆深入贴合悠闲舒适的内核,让业主在家里能卸掉疲惫,从心而行。”
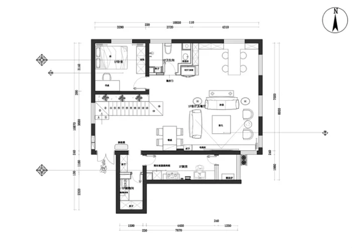
男主人是一位资深模型爱好者,拥有非常多的动漫模型收藏,所以设计师专门在餐厅位置为其定制了一个长玻璃展示柜,用以展示他的爱好。
地面瓷砖IMOLA 65° parallelo系列
陈列空间-长玻璃展示柜
客餐厅地面选用意大利IMOLA陶瓷65° PARALLELO系列,其灵感来源于冰岛山脉岩石,仔细观看每一片砖的纹理都独一无二,清澈灵动的走向,十分大气。
地面IMOLA 65° parallelo系列
餐区,灯光从顶延伸到柜面,镜柜中暖暖光线晕开空间冰冷,将家的温度丝丝沁入其间。
橘色插入格给空间一抹跳色
橱柜一侧,设计师反复挑选,最终选“橙”为跳色,他希望橙的温暖能让业主在家中得到心灵的认可与愉悦。
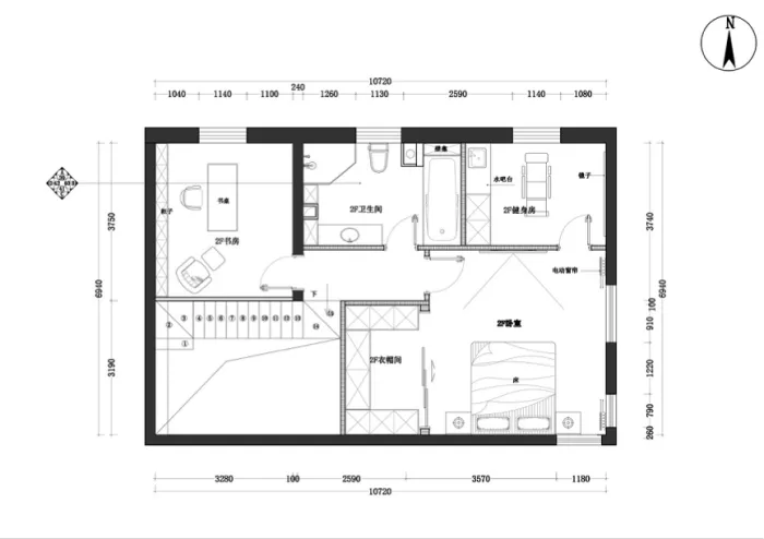
楼梯处,设计师将原有楼梯位置从房子中间改到了进门入户挑空处,并在楼梯侧面增加绿植玻璃墙,这样既解决了楼梯无法贴墙问题,还为空间增添了一抹绿意与生气。
入户视角-地面瓷砖IMOLA 65° parallelo系列
拾级而上,就到了二层。书房撇弃过去的厚重与传统,以开放式简洁书架为背景,配以几何造型书桌,以丰饶的创意表达出生活的内涵和当代气质。
为实现视觉更大的通透性,设计师为书房打造了一面落地玻璃墙。
主卧内嵌小型衣帽间,玻璃材质茶色衣帽间设计更讲究整体性,便捷式推拉门为业主带来更多便利。
床头烤漆背景墙与木纹背景墙搭配,大块几何结构,设计感十足又无比实用。
如今黑色不再是阴暗、冰冷的代表,它成为了当下潮流的宠儿,卫生间墙面选用意大利IMOLA陶瓷65° PARALLELO系列黑玄武岩。
其灵感来源于冰岛的黑沙滩,触摸表面有着玄武岩的坚韧和黑沙的质感,治愈、空灵、纯粹。
黑红、条纹块状马赛克块状砖体给人一种现代的律动感,在光的照射下,不同角度的光线映在亮面砖体上,呈现出一种波光粼粼的美。
IMOLA陶瓷65° PARALLELO系列

