该项目位于哥伦比亚Boyacá市Paipa区的一个街角地段,由一组2栋房屋组成,占地约314.85平方米,每栋房屋的建筑面积为116.45平方米。
项目是一个概念化的,模数化的可以垂直发展的庇护所,在寻找可以顺应时间空间的同时,满足人类和环境的需要。两个房屋单元均按照相同的基本标准进行设计:完全模数化的整体框架,与场地的联系,适应环境的材料,照明,交叉通风,功能性,可持续性和舒适性。包括两栋楼共享的区域,停车场和烧烤区。
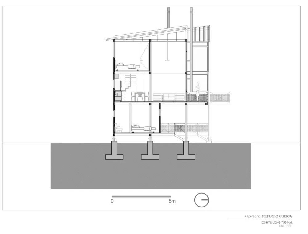
空间上每栋楼(每个模块)由三层楼组成。一层有两个并列的建筑入口,一个用于一个单独的房间,另一个用于其余部分。二层由立面上的大窗户构成,外部阳光可以透过窗户洒进主卧及配套的客厅,厨房和餐厅。三层,由两个次卧组成。

立面上的几何构成首先由一系列大窗户的框架制造,反映了内部空间的透明度和照明。其次,厂商superboard的矩形面板的颜色组合,赋予建筑物生机的马赛克效果。一层立面墙壁上添加的圆形窗口和圆形添加物将矩形饰板的对称性打破。
其结构形式由连接混凝土基础并从地面抬高的圆形金属柱支撑,金属柱不需要直接与土壤接触,从而减少了挖掘的花费。

干法施工法可最大限度的减少现场产生的浪费,也因为其模块化结构的设计,使许多部件在车间制造完成,从而使施工过程更快更整洁。



























建筑师 : Camacho Estudio de Arquitectura 地点 : Cra. 16 #26c-2. Paipa, Boyacá, 哥伦比亚 主创建筑师 : German Ricardo Camacho Barrera / Gustavo Iván Camacho Barrera. 面积 : 116.0 平方米 项目年份 : 2017 摄影 : Llano Fotografia, Miguel A. Martínez Ortiz
版权声明:本文内容由用户自行发布上传或投稿由设计芝士代为发布,版权归原作者所有,设计芝士不拥有其著作权,亦不承担相应法律责任。如果您发现本站中有涉嫌抄袭或侵权的内容,请点此提交工单进行举报,一经查实,本站将立刻删除涉嫌侵权内容。

