本案是一栋叠拼的下叠,共三层,原空间划分极其不合理,设计师依照业主居住需求对项目进行全屋改造。
住所作为业主养老之用,他希望将来在此养猫养狗,过着理想中闲云野鹤般的生活。业主本人喜欢收藏中式风格的老物件和唐宋风格的瓷器,偶尔会竞拍一些名家画作,鉴于此,设计师在空间中置入了很多新中式风格的设计元素。
B2层被设计师定义为休闲阅读区。其入户门直通地下停车场,这是出入的主要通道,为了给主卧腾出更大的空间,同时方便出行,设计师将衣帽间也放在了这一层。
顶部中间有两处对称的阳光天窗,设计师将两处天窗拆除,其中一处直接挑空到楼上,另一处做成流动水景,结合地面的瓦砾砖和墙面的水泥艺术漆,做出一处室内中庭花园。每个清晨,明媚的阳光穿过水景,将波动的水纹打在水泥墙上,即使在北方寒冷的冬季,也可以享受悠然户外的乐趣。
结合业主喜欢老物件和画作的习惯,设计师为空间内大部分阴角都预留了挂画线,方便后期安装和随时更换画品。
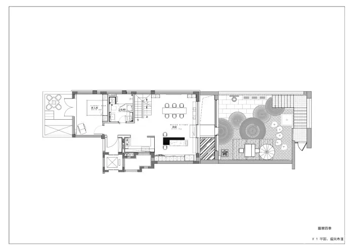
餐厅、中西厨被设计在B1层,连通室外下沉庭院,访客可由该层入户门进出。因此B1层也是主要的活动和使用空间。
B1层餐厅正中悬挂着业主本人喜爱的画作,结合画作的色彩,设计师为餐厅空间做了整体颜色搭配。整个空间延用原有智能系统,仅重新调配场景控制和灯光效果,在节约成本的同时使得灯光更加合理和舒适。下沉庭院的设计风格偏中式,为了减少夏季蚊虫侵扰,设计师为下沉庭院做全部硬化处理,方便夏季纳凉。
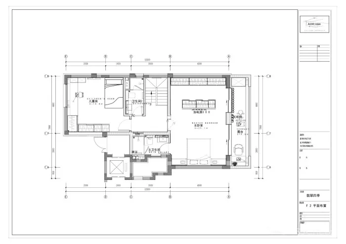
作为叠拼的顶层,主卧和儿童房位于此处。
因为阳台优越的采光条件,这里被作为读书和健身空间。
主卧地面使用了鱼骨地板和六角瓷砖错位拼接的设计方案,为空间增添趣味性。
主卧卫生间的空间并不大,设计师使用艺术树脂漆将地面、墙面和天花打造为浑然一体的感觉。
项目后期经历了两处调整,这也成为本案设计中画龙点睛之处。
原有楼梯踏步宽度只有240mm,因为住宅没有电梯,楼梯是上下楼唯一的工具,考虑到便捷与安全性,设计师在设计之初便建议拆除原有楼梯重建,最初得到业主的否定,但在多番沟通后,设计师最终对楼梯进行了全面改造,保障了使用时的便捷与安全,同时打造空间美感,使其成为屋内一景。
B1层餐厅通往下沉庭院的门窗向外推出之后,原门窗始终没有拆除,在设计师坚持下,最终更换为整体的玻璃幕墙,使得餐厅格外通透明亮。
项目名称:北京翡翠四季下叠别墅
设计公司:艾德诺特(北京)设计顾问有限公司
完工时间:2021年4月
项目地点:北京市通州区
项目面积:360平米(包含庭院)
主要材料:木地板、实木踏步、艺术树脂漆、水泥艺术漆、瓦楞砖、不锈钢镀铜等
功能空间:客厅、餐厅、主卧、卫生间、儿童房、老人房、下沉庭院、中庭花园等
艾德诺特(北京)设计顾问有限公司 室内设计师、空间设计师
“艾德诺特”品牌创立于2008年,旗下设立三家公司分别为艾德诺特(北京)设计顾问公司,艾德诺特(北京)装饰工程公司和艾德诺特(北京)国际贸易公司。艾德诺特品牌专为业主提供设计、施工、主材、软装等全案设计施工服务。艾德诺特不仅为别墅、豪宅、公寓等家装领域提供服务和支持,同时也为餐饮、办公区、展厅和美容院等公共场所提供整套的解决方案。艾德诺特本着“以匠人的严谨,唤醒空间生命力”宗旨做好每一个项目。


谢谢分享