▲项目外观©Julian Weyer
该项目位于丹麦北部奥尔胡斯的起伏区,基本构成由四个简单的个小三角形屋顶,共同构成了这个家庭住宅的框架。 其概念,材料和细节水平均来自标志性的奥尔胡斯大学,该大学也是由该公司设计的,而如今已成为丹麦的建筑经典。
▲3D模具©C.F. Møller
沿着该地块的倾斜地形,C.F. Møller设计师将房屋“抬高”到两个不同楼层的三座较小的建筑物上。车道通向道路,在房屋下方通向集成的车库和地下室。
Julian Weyer
Julian Weyer
一个独特的砖砌楼梯入口,通向别墅的主房间及一个宽敞的厨房和带有高高的弧形天花板,并配有大型落地窗的主厅。从这里可以直接进入四间卧室以及花园。
Julian Weye
▲开放式宽敞的厨房©Julian Weye
▲弧形天花板配有大落地窗的主厅©
Julian Weye
▲卧室通道©Julian Weye
▲卧室©Julian Weye
厨房部分建在贯穿整个房屋的砖芯中,并与对面的靠窗座位一起构成了中央空间中的雕塑元素。距厨房仅几步之遥,可直达位于花园楼层的别墅客厅。
▲花园楼层的客厅外观©
Julian Weye
客厅有一个倾斜的天花板,上面铺有装饰线条,这些装饰线条一直延伸到露台的屋顶下方,形成了一个有顶棚的休息区。沿着循环楼梯进一步往下走,您便到达了房屋的下层,那里有一个兴趣室,工厂间,杂物间和车库。
Julian Weye
▲兴趣空间©Julian Weye
Julian Weye
Julian Weye
别墅的重要性是由三个主要元素构成的:砖,橡木和天然石材。外墙和屋面瓦使用的是红色色调的质朴手绘砖,与表面,楼梯和内芯的石材结合使用,而橡木的内外表面均采用橡木。
Julian Weye
▲楼梯细部©Julian Weye
在外面,它用作花园小棚和大门的框架。在内部,它向大气散发出温暖的光芒,并再次出现在窗台,门,固定装置,镶板天花板和人字形地板上。项目中的浴室均使用明亮的天然石材,营造出雅致的外观。
▲浴室©Julian Weye
C.F. Møller建筑事务所表示,“这是一项非常令人兴奋的任务,同时也具有挑战性,几何的组体元素和互动的性质,美丽的材料使复杂的外观变得简单、优雅和永恒。我们感到自豪的是,我们与一对有质量意识的客户夫妇一起,成功地创造了一个既能反映我们自己的历史,又能反映现代建筑的舒适家园。”
Julian Weye
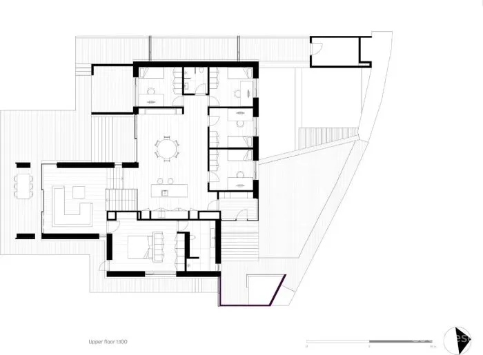
▲平面图©C.F. Møller Architects
▲屋顶平面图©C.F. Møller Architects
▲南立面©C.F. Møller Architects
▲北立面©C.F. Møller Architects
▲东立面©C.F. Møller Architects
▲侧立面©C.F. Møller Architects
项目名称:Villa E
建筑师:CFmøller Architects
合作者:jakobt mrerfirmaa / s,petersen tegl / krone vinduer
地点:risskov,丹麦
面积:261平方米(2809平方英尺)
关于CFmøller Architects
CFMøller建筑师事务所是斯堪的纳维亚半岛的领先建筑公司之一,在北欧地区和全球范围内拥有90多年的屡获殊荣。我们每天都基于创新,经验和北欧价值观来创造建筑质量。这确保了对客户,居住者和社会具有持久价值的可持续和美学解决方案。
独特的设计方法。我们的设计解决方案是在对当地情况进行严格分析后,有条不紊地创建的。我们希望通过建立一种设计方法来设定新的全球标准,该方法将城市规划,景观,建筑和特定建筑组件的设计独特地集成在一起。
我们将环境问题,资源意识,健康的项目财务,社会责任和良好的工艺水平视为我们工作的基本要素。这种精神是我们所有项目的基础,这是一个从总体规划到详细设计的线程。
自1924年在丹麦成立以来,我们为斯堪的纳维亚半岛和世界其他地区的福利社会的发展做出了重要贡献。由于我们高度重视建筑的功能,艺术和社会价值,因此我们在制定新的建筑标准方面一直获得国际认可和奖励。
今天,CFMøller有了应用程序。300名员工。我们的总部位于丹麦奥尔胡斯,并在哥本哈根,奥尔堡,奥斯陆,斯德哥尔摩,马尔默,柏林和伦敦设有分支机构。

