建筑顶层设有开放露台 ©Nakasa-Partners
名古屋9h酒店于2020年2月开业,距名古屋站仅两分钟路程。
▼项目外观 ©Nakasa-Partners
设计目标是创造一个让人可以放松下来、好好休息的环境。尤其是顶层空间,在繁忙的城市与狭小的胶囊酒店中形成了一种开放感。
▼建筑顶层设有开放露台 ©Nakasa-Partners
▼露台为城市生活提供一种开放感 ©Nakasa-Partners
一层设有知名的Glitch咖啡餐厅,这是该品牌在名古屋的第一家分店。
▼入口 ©Nakasa-Partners
▼室外座位 ©Nakasa-Partners
▼户外座椅与植物 ©Nakasa-Partners
▼一层咖啡餐厅 ©Nakasa-Partners
▼咖啡厅细部 ©Nakasa-Partners
设计师希望项目不仅为9h的住客所用,也可以为社区提供一个温馨的场所。
▼顶层公共空间 ©Nakasa-Partners
▼提供社区营造的场所 ©Nakasa-Partners
9h的创立基于酒店住宿最直观的理念:“一天的重启需要一些基本行动,包括一小时沐浴、七小时睡眠和一小时梳妆,共九个小时。”为旅客提供了独一无二的理想城市住宿体验。
▼住宿胶囊 ©Nakasa-Partners
▼电梯间 ©Nakasa-Partners
▼行李寄存处 ©Nakasa-Partners
▼盥洗室 ©Nakasa-Partners
▼标识细部 ©Nakasa-Partners
▼夜景 ©Nakasa-Partners
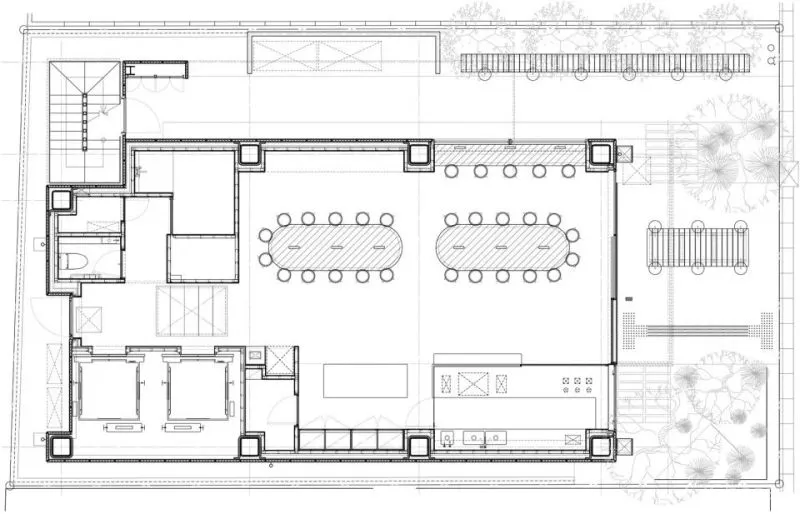
▼一层平面图 ©Keiji Ashizawa Design
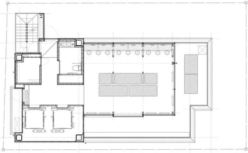
▼屋顶平面图 ©Keiji Ashizawa Design
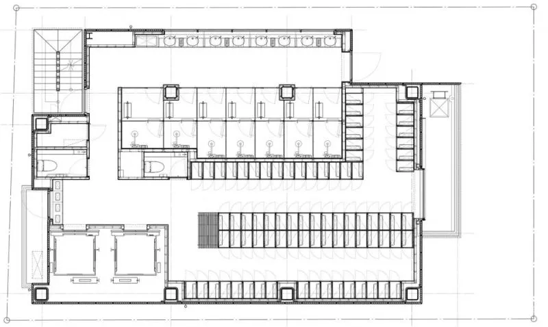
▼住宿层平面图 ©Keiji Ashizawa Design
▼盥洗室平面图 ©Keiji Ashizawa Design
Project Name: 9h nine hours Nagoya Design Company: Keiji Ashizawa Design Function: Hotel Location: Nagoya Completion: 2020年 Architects: Keiji Ashizawa, Kentaro Yamaguchi Architectural Design: GKK ARCHITECTS – ENGINEERS Co.,LTD. Construction: Shiohama Industry Corporation Photographer: Nakasa-Partners Building Area: 1F136.95m2, 9F42.81m2 Design Period:2018.11-2019.03 Construction Period:2019.06-2020.02
Exterior Materials: 外壁 (押出成形セメント板:アイカテック建材/メース)
Interior Materials フローリング:マルホン/ヨーロピアンオーク オイルホワイトウォッシュ 1F床:コンクリート洗出し 床シート:ADVAN/BOLON 水廻りタイル:Maristo/one、平田タイル/Xtreme 壁:AEP塗装、KMEW/SOLIDO、フレキシブルボード 天井:AEP塗装、デッキ表し、フレキシブルボード
Furniture and Illumination 1Fスツール:karimoku new standard9Fソファ:karimoku case study

