一杯罗浮春,远饷采薇客。遥知独酌罢,醉卧松下石。
幽人不可见,清啸闻月夕,聊戏庵中人,空飞本无迹。
惠州合院 在苏轼的笔下, 罗浮山苍绿葱翠, 情境自在由心、悠然旷达。 择一人文诗境而居, 天地为邻,煮茗采菊 感受山居生活区别于都市的喧嚣, 浮生若梦,为欢几何? 罗浮山,坐临南海大亚湾、毗邻惠州西湖,得益于峰谷、奇山、温泉的钟灵毓秀,亦是大湾区的核心所在。前海人寿,作为中国式康养人居生活的整合服务商,择址惠东罗浮山,依托自然风光之灵,为大湾区量身打造集康养、人居、旅游于一体的高品质文旅健康生态城——惠州合院。
山居美学 “仁者乐山 智者乐水” 惠州合院依山而建,面水而居, 建筑的外观遵循山水原生肌理, 刚柔并济,契合着东方美学的精髓。 在这样一片得天独厚之地, 如何打造一处康养栖息之所, 让空间、自然、人与居住相互平衡,和谐共生? 这是LB凌奔设计在室内设计过程中思考的方向。 基于对当下人居、未来康养大趋势的洞察, 设计师从人本出发, 追寻格调品味与时代审美的共鸣, 立意打造东方诗意下的功能美学, 淡雅节制,深邃禅意,与自然融为一体。 在设计中,我们追求宋式美学的精神, 赋予空间以“山峦”、“流水”、“空谷”多种形态, 并作为空间人文精神连接的元素所在, 来形成空间中的情境表现、氛围酝酿、和克制表达。
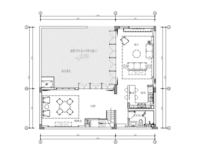
诗意栖居 “抒叙诗情,栖息之所” 踏入庭院便是L形玄关走廊, 引入阳光、绿色、以及自然。 树影婆娑,木具园镜, 一器一物,皆在方寸之间。 中式古朴的落地屏风门, 张弛之间,将四季变幻引入室内。 客厅空间延续宋代山水的写意底蕴, 以简练现代造型与线条体现细节美感, 从家具、流线、色泽,到墨枝斜逸、书法挂画, 均镌刻着东方诗性的肌理,流露出自信大方风骨。 空间白为主,干净利落;深棕木饰纹理端方有序。 金属雕塑、红色盆景为点缀,添一缕活泼气质。 设计师精选现代中式沙发,纤细中自带刚劲力量, 空间内尽显着对称美的原则, 每一个物件都共同营造着空间的视觉平衡。 客餐厅连为一处, 是一家人安享天伦的互动空间, 整体色调淡雅舒适, 与窗外合院的园林景观进行巧妙的融合。 意趣在空间中无所不在,大理石质感的餐桌, 现代雅致的餐桌椅,搭配简约吊灯, 呈现优雅舒适的用餐氛围, 而墙上的山水画,让空间更有人文气质。
拾级而上,俯仰之间可观虚实, 指引着空间精神向上,如梦如幻。 其间的流光溢彩,如同时间散落的痕迹, 一朝一夕,都值得认真以待。
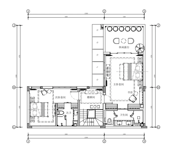
光阴之美 “时光荏苒 大美无声” 主卧被设计成套房, 极大改善了空间感和尺度关系, 背景呼应写意山水,与室内格调相辅相成, 淡雅色调与丝质布艺恰到好处的点缀, 让室内空间与软陈材质建构的语汇关系, 产生一种简单、纯粹、舒适共鸣的对话形式。 光阴之美,在卧室之外的倒影里摇曳。 透过光滑氤氲的大理石地面, 不舍昼夜恰到好处的光影, 结合朦胧之中的东方美学, 带给人静谧、温暖、清冽的想象美感。 设计保留了一间客房, 方便家里来客人的时候居住, 简约、直白、随性,空容纳万千。 生命与自然的交织, 得山水之志、腊梅掩映,风雅正好。 卫浴空间使用天然石材, 方形双洗手台下方设有收纳空间, 镜子里倒映着窗外的绿意盎然, 沐浴在自然中,脚底传来真实触感的温度。 一种舒畅、开阔、自由的韵律感渐次产生。
深圳市凌奔环境艺术有限公司(简称:LB凌奔设计)位于中国高速发展及最具潜力的深圳南山后海总部基地,与华润、恒大、中洲、腾讯、百度、顺丰等众多大型知名企业总部为邻。
LB凌奔设计是顶尖的城市综合体HOPSCA整体设计服务商,前身(Design-Architecture Practice Limited)于2000年成立于美国纽约,为了更好地服务于中国客户, 2004年正式在中国深圳成立LB凌奔设计,公司先后加入了由美国纽约帕森斯设计学院终身教授阿兰创立的全球权威的ICIAD美国室内建筑师协会,成为理事会员, 欧洲室内建筑协会(ELCA)、亚洲室内建筑国际协会(ALCA) 成员。
LB凌奔设计先后与多家大型知名开发企业:万科地产、万达地产、五矿地产、奥园集团、天虹集团、九方商业、中铁地产、深业集团、华侨城集团、新城控股、康达尔集团、华远地产、中航地产等,以及知名商业、酒店运营企业及国内外知名建筑事务所合作商业综合体设计、酒店设计,样板房、售楼处设计,豪华别墅、软装陈设等。
www.lb-art.com
86 0755-82514980
深圳市南山区科园路1002号A8音乐大厦1405 – 1407室

