办公室位于办公园区的南侧,紧邻的公共走道一侧现存一排竹林景观。阳光之下斑驳的竹影会洒落进室内。室内外有1米高差,沿台阶而下,室外景观抬升至视线的高处,犹如盆景一般涌入室内,高低关系的变化,让“宏伟化”绿植,成为室内空间的主角。
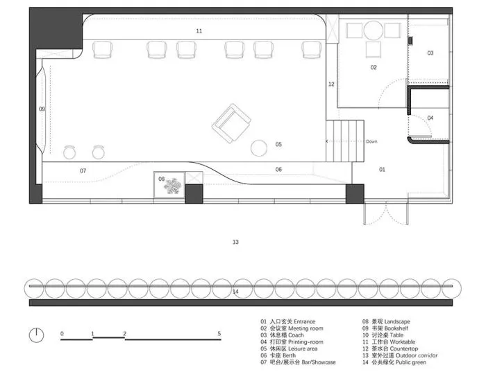
西侧书架区域墙面内凹,隔板外凸,柔和相接。 靠窗一侧,两条曲线交错。高处吧台,从窗下墙体中“长出”,又融于墙体;低处曲线体量,顺接于入口处的地面,跌落至下沉区,再消失于墙体,形成供人休息的卡座。
墙体、吊顶、家具在不同边上采用弧线过渡,让它们浑然一体,柔和混沌。家具融于边界,留下一个“空”的空间中,随风摇曳的竹影正好落入其中。随着时间流逝,竹影从下沉区域缓移至入口,然后消失,空间重回于“空”。
墙面、顶面、柜门均采用天然粘土,地面、吧台、工作桌为更耐磨、防水的同色米耐岩。在施工时候,刻意让刮刀留下不均匀涂抹痕迹,加强粘土天然的粗糙感,形成原始自然的洞穴空间。 土质肌理的卡座和吧台、以及跌落的台阶,经阳光的“抚摸”,如雕塑般立体,窗外的竹林“盆景”恰恰好地纳进了这个大雕塑上。

