三角形面板构成的共生结构组织居住空间
这座阁楼式公寓位于兹林市内一座工业厂房的8楼,俯瞰着城镇的中心绿地,该厂房曾是一座鞋厂。本项目旨在将城镇的环境融入进公寓空间中。值得一提的是,本项目并没有采用传统的阁楼式公寓的设计手法,一味地强调室内空间的工业材料,而是将空间转变为一种抽象的构图法,通过在视觉上引入由兹林市内的摩天大楼和溪谷构成的周边环境,来突出居住空间的工业特性。
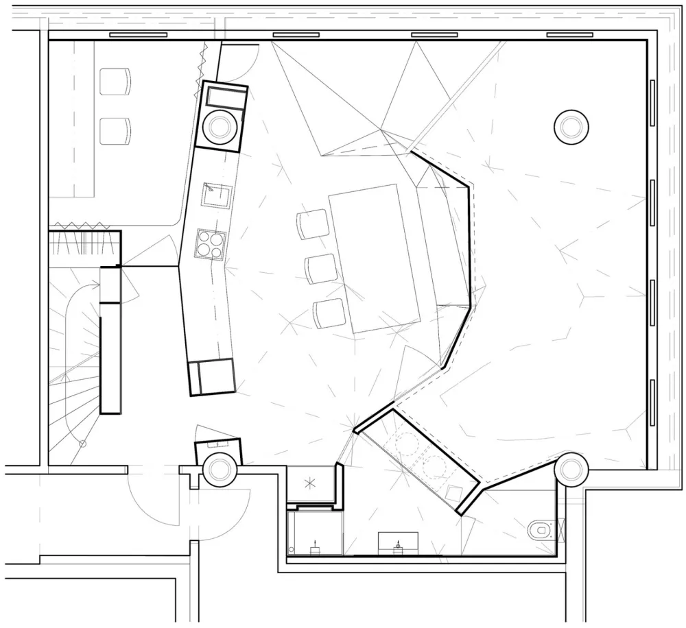
室内的每个空间的开放性各不相同。因此,公共社交区域和私密空间便可以通过多层次的墙体、而不是生硬的隔墙来自然地划分。主要的公共区域由弯曲的折板家具隔断墙限定出来,而嵌入式厨房的墙体之后还隐藏着两个房间、一个卫生间、一个门厅和一个“秘密”楼梯。
阁楼式公寓通过一个由一系列三角形面板组成的共生结构来组织空间。这些三角形面板沿着中心空间的隔墙以螺旋的形式逐渐向上蔓延,创造出一个既可以作为舞台,又可以让住户欣赏城镇景色的休息空间。
家具隔断墙后的坡道从厨房和餐厅空间开始逐渐升高,不仅可以作为窗前的游戏空间,还可以作为交通空间将住户引向上层的生活空间。公寓上层的公共生活空间内设有两个极具设计感的沙发,穿过这个沙发空间,拾阶而上,便到达了设有内置圆形浴缸的卧室。
在材料方面,建筑师将白色作为主色调,采用白色的桦木胶合板、白色的人造革装饰物和白色的PVC地板,辅以玻璃栏杆隔板和卧室的玻璃滑动隔墙,以及厨房内的高光泽度的材料贴面,营造出一个温馨的生活氛围。
公寓下层平面图
公寓上层平面图
Studio: petrjanda/brainwork
Author: Petr Janda, Anna Podroužková, Maty Donátová, Bára Simajchlová
Co-author: Viktor Johanis, Martin Chlanda
Project location: Jana Antonína Bati 5648, Zlín, Czech Republic
Project year: 2014
Completion year: 2018
Project size: 156 m2
Photo credits: BoysPlayNice
Collaborators: Truhlářství Obdržálek – joiner’s work; Martin Škvařil – building structure; AZ Glass – glass elements; Miroslav Malaník – electrics; Evžen Slezák – upholstery


现在这个浮躁的世界,能细心整理一些东西发上来的越来越少了。要么就是敷衍的图片,要么就是枯燥的文字。之后就是AI生成的预制菜类的打包便捷快餐了。感谢楼主的分享,让我能在大智能无人化来临之前,看到同类发出的项目。有幸与您互动,缘分