| 这一家三口,住得太惬意了!
期望打破对于建筑、室内、视觉传达设计的固有框架,专注于人切身实地栖身于空间中的感受。 我们精心设计空间,愿您美好栖居于斯。 ——栖斯设计
喵喵有时真的很佩服设计师, 他们总能把那些平庸无趣的户型, 用自己的脑洞和设计的魔力玩出花儿。 比如在今天这个住宅改造项目中, 一面位于公共区域中部的T字型结构墙, 影响了空间的连贯性与完整性。 栖斯设计的设计师另辟蹊径, 不仅巧妙解决了这个大bug, 还让整个家都变得无比好住又好玩!
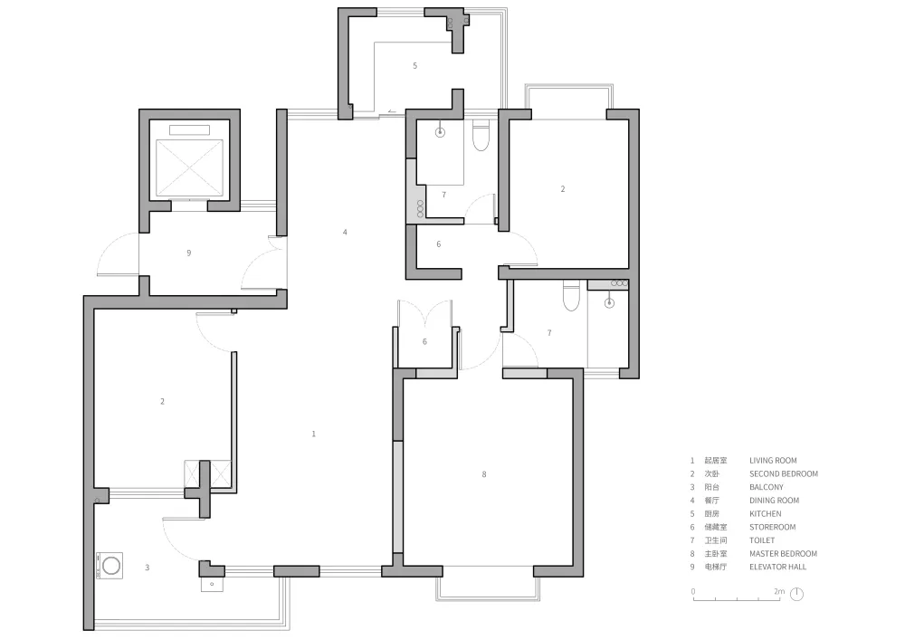
这个家位于上海,120㎡的三室两厅, 属于乍一看“平平无奇”, 仔细一看琐碎又鸡肋的头疼户型。
一个更大、更连贯的公共空间, 能够促进为家庭活动以及情感交流。 于是整个改造中最大的“手笔”, 是尝试了一种以“书架装置”为中心、 其他功能区环绕其布置的空间结构, 探索了家庭公共空间一种新的可能性。
具体来说,就是在客厅与餐厅之间 将原有的隔墙拆除后, 建立了一个巨型圆柱体书架。 书架弧形的边缘模糊了各个区域的界限, 随着居住者在书架周围移动, 视线中会看到连续变化的场景—— 设计师将其形象地比作一个旋转的涡轮, 驱动着整个住家的丰富生活。
书架旁可以90°旋转的移门, 能够实现两个空间完全的封闭或联通, 满足公共空间使用需求的灵活性。
先来一睹这个“涡轮”书架的庐山真面目~ 它既是整个公共区域的视觉重心, 也承担着柔性划分功能区的重要作用。
书架下方设计了仿真壁炉, 强化了其在空间中的核心角色, 并且瞬间给空间带来了暖融融的氛围。 整个空间的设计调性偏现代与简约, 壁炉自带的复古质感, 与整体空间形成了微妙的平衡。
双人沙发和单人沙发椅围绕书架摆放, 能设想到在上海阴冷的冬日, 一家人围在壁炉边聊天的场景。
在满足观影视距的前提下, 设计师将沙发尽量靠前布置, 释放出的后方空间被打造成家庭画廊。 沙发后方的矮柜台面可做艺术品陈列, 矮柜上方的墙面留白, 顶部设置一根挂画杆搭配钢丝挂钩, 后期可以灵活更换画品以及调整位置。
靠窗一侧的立柜是这个画廊的起点, 柜内可以收纳各类画具, 柜门刷了黑板漆,用来信手涂鸦。
陈列品、画品可以自由组合各种形态, 挂画杆、矮柜及轨道式射灯的组合 为这个家庭小画廊创造了灵活性与可能性。
书架装置将观影厅划分成两个区域。 靠近阳台并且采光较好的一侧 平时可作为运动区域使用, 与阳台直接相连,可通过百叶分隔。
阳台用青色瓷砖作为墙地面材料, 结合大面落地玻璃窗以及地台, 营造出一种“坐在屋檐下”的半室外氛围。
观影区另一侧设置了一组移门, 可以在旋转90°后,靠在一侧墙面, 实现两个空间完全的封闭或联通。 同时移门也能调整电视的观看角度, 满足公共空间使用的灵活性。 移门和观影墙背面是书房空间。
移门闭合状态下的公共区域形态。
书房位于公共区域最内侧, 通过与地台及阳台的联通引入自然光。 地台活动区是一个多功能的空间, 平时是一家人晒着太阳玩耍的场所, 也很适合午休小憩。 地台一侧设置了木质开放架, 专门用于放置各类玩具, 旁边的立柜可收纳被褥和衣物, 地台下方也设置了大量的收纳空间。
挂画杆沿着墙面折转入过道, 一直延伸到最内侧房间, 打破了过道单调乏味的体验, 让过道区域也成为画廊的一部分。
过道区域同时也是全屋的家务区。 在画廊的对面,隐藏在通高柜门的后方。
烹饪也成为家庭公共活动的一部分, 家人之间获得了更多相处的时间。
中岛将封闭式厨房的部分功能转移出来, 餐吧区域是封闭式厨房的补充。
餐吧也是家中重要的待客区域, 中岛和餐桌周边可以容纳多人聚会。
吧台后方的设置了中空的餐边柜, 上方的开放架可以放置各类餐具和杯具, 中间则作为冲调饮品的操作台。
石材的墙裙增加了该区域的丰富性, 耐脏的石材表面便于人的倚靠。
卧室延续了公共空间的干净简洁, 明晰的空间几何划分出不同的功能区。
低饱和度的暖配色以及泛光灯带 打造出了卧室的温馨氛围, 床背板 开放架增加了床头收纳空间。
通过外露柜体自身的结构, 强化空间局部的线面构成。
卫生间做了干湿分离提高使用舒适度, 在延续整体清爽的风格之外, 鱼鳞纹金属面的镜柜与淋浴区墙面 让这里多了一丝精致的轻奢质感。
在住宅改造项目中, 通常通过重新调整布局、拆除隔墙, 获得更大、更连贯的公共空间, 为家庭活动以及情感交流创造更多的机会。 在今天这个住宅改造项目中, 设计师利用独特的圆柱形“书架装置”, 探索了家庭公共空间一种新的可能性, 为整个家庭生活营造了丰富的体验, 这样的思路,对你有启示吗?

