© Fernando Guerra FG SG
全新的阿姆斯特丹法院位于Zuidas区,由NACH集团受中央政府地产代理委托设计建造。如今,法院已经开始正式运营,并于2021年5月3日星期一召开了首次听证会议,它取代了坐落于Parnassusweg街上的旧司法综合体,成为美观且实用的市政建筑范本。阿姆斯特丹法院中设有50个不同的法庭,容纳了超过1000名工作人员,其中包括200名法官,每年可做出14万份判决,堪称荷兰11个法院中规模最大、最权威的法院。
▼入口广场一侧鸟瞰 © Fernando Guerra FG SG
▼西侧立面鸟瞰 © Fernando Guerra FG SG
▼底部楼层立面细部 © Consortium NACH
▼上部楼层立面细部 © Consortium NACH
在建筑与城市交汇的地方,设置有一个朝南的入口广场。广场面积大约与半个足球场相当,占据了项目场地的四分之一。广场采用了与室内相同的浅灰色铺装,并设置有相同的长凳。入口处的顶篷优雅地延伸到室内,将建筑与场地结合在一起。作为公共空间,该广场可以说是全新的阿姆斯特丹法院对整座城市的示意。处于安全起见,广场的结构略有抬高,然而低矮的坡道却最大程度地化解了城市,广场和法院之间的疏离感。广场的一侧种植有开花树木,这里不仅为工作人员或法院访客,同时也为所有路过的市民提供了一个放松休憩的场所。
▼场地分析 © Consortium NACH
▼概念分析 © Consortium NACH
在广场的倒影池旁边座落着一件由艺术家Nicole Eisenman创作的大型雕塑作品。作品名为《爱或慷慨》,是一尊身高超过5米,穿着登山靴的人像雕塑,雕像穿着当代休闲服饰,手中拿着象征智慧、力量、耐心、进步和勇气的符号,身体向前弯曲,宛如一个沉默的守门人,守护着整栋法院大楼。此外,庭院中还有三尊小型雕塑作品,分别为:猫头鹰,箭以及一颗代表社会弹性的、似乎刚从广场上拾起的橡子。
▼车库入口一侧的室外庭院与雕塑作品 © Fernando Guerra FG SG
▼由室内看庭院 © Fernando Guerra FG SG
▼俯瞰天井庭院 © Fernando Guerra FG SG
▼天井庭院中的垂直绿化墙面与休息空间 © Fernando Guerra FG SG
项目的建筑设计方兼NACH联盟的发起者之一 —— KAAN Architecten事务所坚信:在一个法治的国家,法学作为公共事务,应该与人们的日常生活紧密结合。因此,这座高达50米的雄伟大楼最终以一种开放却又朴实无华的姿态呈现在大众眼前。建筑的底部楼层设有大面积的玻璃幕墙,将街道景观引入室内,同时也将法院内部展示给城市。围绕法庭设计的宽敞门厅每天可接待800到1000为来访者,例如:律师、记者、原被告、或是其他相关人员。巧妙的设计为室内创造出极佳的城市景观视野。中央大厅设有自动扶梯,扶梯旁是封闭的室外花园。花园的设置为法庭楼层引入充足的自然光线,使法庭通向一片空间和光线的海洋。
▼入口大厅概览 © Fernando Guerra FG SG
▼大面积的玻璃幕墙引入了自然光线与城市景观视野 © Fernando Guerra FG SG
▼宽敞明亮的空间彰显出建筑的身份 © Fernando Guerra FG SG
▼服务台 © Fernando Guerra FG SG
▼靠近庭院一侧的自动扶梯 © Fernando Guerra FG SG
▼散落在整个法院中的信息咨询站 © Fernando Guerra FG SG
NACH集团是由Macquarie Capital(投资)、ABT(工程)、DVP(管理)、KAAN Architecten(建筑与室内设计)、Heijmans(总承包商)以及Facilicom(后期运营与维护)多个公司与事务所共同组成的。在本项目中,政府与NACH集团确立了公私合营伙伴关系(PPP),以监督法院大楼的融资和建设,并明确了由Heijmans与Facilicom负责的建筑后期维护、物业管理以及技术支持服务30年合同期限。服务涉及到的内容广泛而全面,例如:以健康生活为核心价值的法院内部餐厅;每天实时跟踪可用自习室与会议室等工作空间的信息化设备;通过数字技术进行监控与操作的建筑清洁系统等。
▼位于上部楼层的工作空间 © Fernando Guerra FG SG
▼充足的会议与休闲空间 © Fernando Guerra FG SG
▼极佳的城市景观视野 © Fernando Guerra FG SG
全面而周全的设计考虑使建筑兼具功能性与舒适性。作为一个大型司法综合体,它既需要将相互关联、共同运作的功能空间组织堆叠在一起,又需要保证各个空间之间的独立性,例如在建筑内部就需要为司法人员、被拘留者、游客设置不同的交通流线。建筑师,工程师,建筑物理专家,设施和安全(包括消防安全)顾问,承包商和供应商之间的密切合作,造就了这座实用且环保的建筑,它具有极高的灵活性与可持续发展性,几乎可以实现“碳中立”。坚固耐用的建筑材料,经过时间的洗礼会变得更加美丽优雅,为工作人员和游客营造出舒适又安心的环境氛围。
▼独特的室内交通空间 © Fernando Guerra FG SG
▼楼梯细部 © Fernando Guerra FG SG
▼法庭概览 © Fernando Guerra FG SG
▼夜景 © Fernando Guerra FG SG
▼总平面图 © Consortium NACH
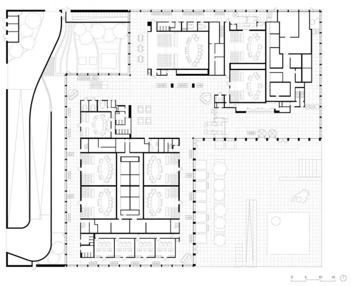
▼底层平面图 © Consortium NACH
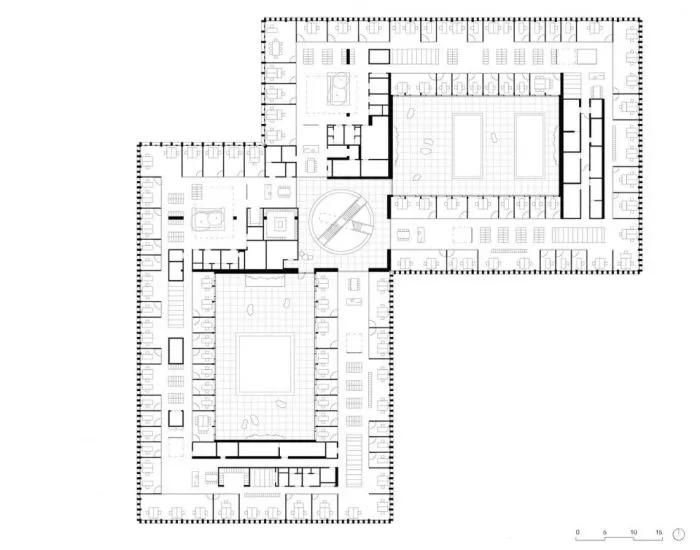
▼二层平面图 © Consortium NACH
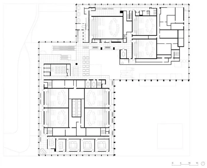
▼八层平面图 © Consortium NACH
▼立面图 © Consortium NACH
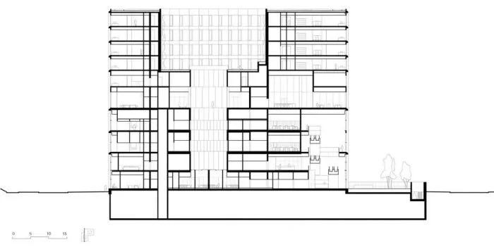
▼剖面图 © Consortium NACH
▼构造详图 © Consortium NACH
Location: Parnassusweg 280, Amsterdam, The Netherlands Client: Rijksvastgoedbedrijf (Central Government Real Estate Agency) Program: public square, foyer, 50 courtrooms, offices, lobby, restaurant, conference centre and library Tender phase: October 2014 – February 2016 Design phase: May 2016 – December 2020 Construction phase: August 2017 – December 2020 GFA: 60.200 m2 Occupant capacity: approximately 1000 court employees 200 chain partners employees Total costs: 235 Million Euros (full DBFMO contract: design and construction costs 30 years of management, maintenance and operation) Main Contractor: Consortium NACH Consortium NACH: Macquarie Capital: investor ABT: engineering DVP: management KAAN Architecten: architect and interior architect Heijmans: general contractor Facilicom: maintenance – operation Consultants: Structural engineering, geotechnics, building physics, MEP engineering, fire safety, acoustics, security: ABT, Velp Parking: Wim van Vlierden Landscape design: Simona Serafino Landscape Architect Roof and roof safety design: Kiwa BDA, Rijswijk Metal stud wall consultant: Saint-Gobain Gyproc, Vianen Subcontractors and suppliers: MEP: Heijmans, Rosmalen Fire safety and security: Trigion, Schiedam Steel structure and façade cladding: CSM Steel Structures, Hamont-Achel (B) Façade: TGM, Asten Natural stone: Kolen Natuursteen, Eindhoven Internal doors and windows: Smits, Gemert Internal doors: Staalkozijn, Winterswijk Metal stud walls: Muller Afbouwgroep, Eindhoven Ceilings and acoustics: Verwol Interior Systems, Delft/Opmeer Climatized ceilings: Inteco, Boxtel Partition wall systems: Maars Living Walls, Harderwijk General furniture maker: Smeulders Interieurgroep, Nuenen Courtroom furniture maker: Cowerk, Rotterdam Project furniture supplier: Desque, Rotterdam Leather wall finishing (courtrooms): Alphenberg Leather, Waalwijk Lifts and escalators: Otis, Utrecht Concrete work floors – upper floors: Red Betonbouw, Oud-Beijerland Prefabricated concrete: Hoco Beton, Weert Prefabricated concrete holding cells: Haitsma Beton, Kootstertille Signage: De Vries Projekt Design, Eindhoven Artists: Public square artwork: Nicole Eisenman Courtroom artworks: Femmy Otten Courtyard artworks: Jesse Wine Photo credit: Fernando Guerra FG SG


像个酒店