项目位于北京西打磨场胡同,这处小院子原本是民国年间的瑞华染料行,将这处具有历史意义的传统小院儿转变为北京城内一处极具吸引力的长租公寓。
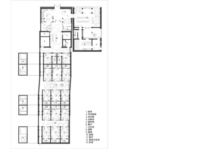
公寓由三个院子相连而成,从一面拱形木质大门走进院子,左侧为前台接待区,右侧为中央厨房。
厨房对着庭院里的古树,为了将庭院里的古树完好的保留下来,平面布局上巧妙的避开了古树的位置,用曲面的玻璃幕墙把厨房与庭院做了分隔。
餐厅是一个弹性使用的空间,既可以作为公寓住户的用餐区,也可以作为一个举办公共聚会活动的地方。穿过西侧的狭长走廊就是客房区域,利用原本的建筑结构,一个建筑体被划分为五到六间客房。
玻璃自身的透明特性不会遮挡减损原有建筑物,不仅符合对阳光的追求,更能够从视觉上以及空间原理上使得原有的古建筑不会被削弱,所以整个院子的加建部分都是采用玻璃盒子的形式,再加上光线和人的运动,整个空间被赋予了活力。
当阳光穿过通透的玻璃倾泻到公寓内,给公寓内的一切带来温暖和灵动之感。






建筑师 北京大观建筑设计
地址 长巷三条1号,西打磨厂街210号,东城区,北京,中国
类别 更新项目
主创建筑师 申江海
设计团队 任晓伟、黄景宁、许云飞、庞学颖、温顺和
建筑面积 680.0 平方米
项目年份 2017
摄影师 史云峰

