当严劲而葱倩,承和煦而芬腴。
极简的空间并不代表舍掉一切温度,留白的空间更能够映衬出照映的光,让更多可能的元素成为家的一部分。
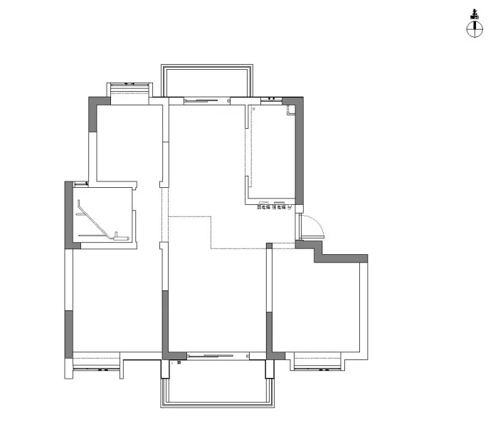
原始户型图
平面布置图
这是一套位于南京市雨花区的顶楼跃层户型,一层原始空间格局为三室一厅一厨一卫,客厅空间挑高,南北双阳台。二层原始空间一卧一卫,南北双露台,可扩展空间很多,居住成员三口之家,父母偶尔过来居住。
我们把厨房位置调整到北阳台,原厨房位置作为餐厅和入户门厅通道及电器设备柜和备餐台功能,原始户型是没有考虑楼梯间的位置,楼梯的位置也决定了整个空间分割及动线的重要性,经过再三推敲结合楼上重新格局划分,决定借用卫生间一部分空间把楼梯设计在整个房子的中间,达到动线最合理化。进入书房的原始门洞封闭调整动线从餐厅进入到书房,餐厅设计了超大餐桌一家人可以一起吃饭、办公、学习。南阳台扩到客厅空间,让客厅更为宽敞明亮,同时也让客餐厅南北通风和采光。
根据楼梯位置我们重新规划了二层的格局,将一层客厅挑高处现浇的空间作为主卧室的起居室,原露台顶面现浇楼板扩建作为主卧室,通往露台的防盗门墙体拆除,扩建一间衣帽间与主卧室联通。在楼梯间平台墙面开门洞通往露台,让楼梯间平台处有采光,保证南北的通风。
分解图
玄关
入户门处的换鞋凳和衣帽储藏。
可旋转打开的鞋柜方便大型家具进出,同时也可以遮挡下业主比较在意的进门见楼梯的说法。
客厅
客厅是一副寻常人家的生活模样,质朴但不平淡,没什么花里胡哨,也未曾想和“高级”刻意沾边,木料、皮质、白纱、书籍,都带着一种随意感,随意才可清简,清简之余韵才可亲近。
色系的选择、材质的调用、情绪的铺陈都是那么清新温软与亲切动人,如同白瓷微温,给人以细致而丰盈的感受。
餐厅
顶面水泥漆的质朴肌理保留着某种简化的赤裸美感。
以简单的块面和线条呈现出温暖个性且收纳丰富的形态,简约吊灯在造型上和照明上都与整体空间相配,给人以多层次的感受。
书房
书房空间延续着客厅的基调,简洁的造型和纯洁的质地已足够美好。
儿童房
儿童房的设计在保持整体空间的色调基础上分色的设计,给简洁的空间加入了一点温度与活泼。
楼梯
楼梯扶手的线性灯光与结构很好的结合在一起串联了整个楼上楼下的空间,墙面的水泥漆与顶面相呼应。简单的形式产生多变的光影效果。
二楼起居室
二楼起居室是一个联通主卧室的复合空间,能够根据主人的需要满足不同的使用要求。它可以是书房,也可以是影音室,还可以娱乐室,更可以是纯粹发呆晒太阳的自我之地。
主卧室
地面原木色的地板与床头饰面相呼应,床品选择白色棉麻质地,简单却富有质感。
整个空间都笼罩在一种薄薄的安宁和温馨里,活色生香的日常气息流动于目光所及的每个细微处。
卫生间
卫生间用了复古的小砖来搭配水泥色墙面,让小空间的色彩丰富起来。
我们需要一盏灯,一扇窗,从家里看着窗台的光,自然有无限的安逸,一本书看上一天,一杯茶,午后的惬意,与家人在每个角落的瞬间,那是一种安详,是一种静,回归本心,如家可栖!
项目地址:和昌•湾景
项目面积:210平方米
项目设计:吾索设计
主创团队:秦江飞 徐梦婷
摄影机构:EMMA
主要材料:卡思摩地板 涂装木饰面 钢板 芬琳乳胶漆 艺术水泥漆

