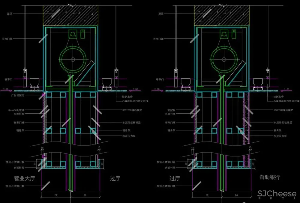
对于室内设计师而言,
创意设计的落地,最关键的还是节点设计。
节点的设计是否到位,
直接影响项目的品质和效果。
可是设计师
这些“关键点”你真的掌握了吗?
你还在因不懂施工,被工人嘲笑业余吗?
今天
小编给大家带来一份
《各类门CAD节点详图合集-18种分类》
希望对大家的工作有所帮助
文末查看如何获取

《各类门CAD节点详图合集》
丨DWG丨18种分类丨145MB丨


























































对于室内设计师而言,
创意设计的落地,最关键的还是节点设计。
节点的设计是否到位,
直接影响项目的品质和效果。
可是设计师
这些“关键点”你真的掌握了吗?
你还在因不懂施工,被工人嘲笑业余吗?
今天
小编给大家带来一份
《各类门CAD节点详图合集-18种分类》
希望对大家的工作有所帮助
文末查看如何获取

《各类门CAD节点详图合集》
丨DWG丨18种分类丨145MB丨


























































dfsdfsfdsdf
门看似简单,掌握节点,对结构、安装有好处