Es Pou House in Formentera
“Es Pou de Can Marianet Barber”是西班牙内陆地区的一个小岛。Es Pou House便是在这个小小岛的第一个住所。其特色是对环境自足的要求很高。
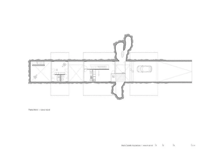
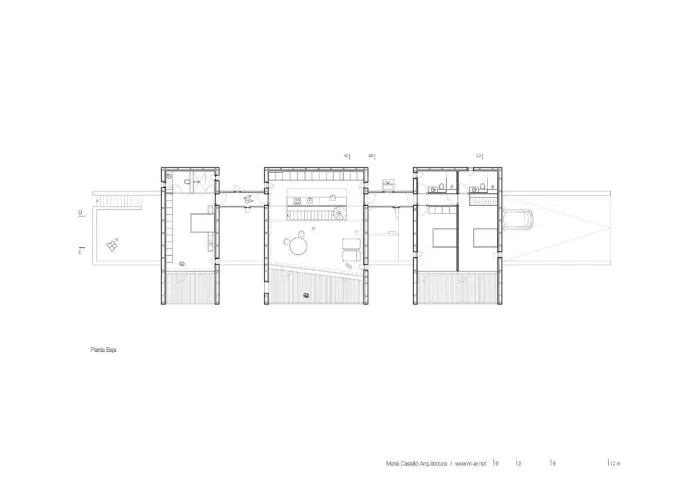
在这个方案中,空间被划分成了三个等份,这使得项目充满秩序,并与景观的规模相统一。从南到北看,第一个空间是一个提供太阳能保护的门廊,第二个一些公共项目的区域,第三个是两间卧室。在这三个空间中都有着其横向开的条形结构,在物理上将空间分开,为它们提供通风和照明。在房子前面,还有有一个蓄水池。可以自给自足的供水,同时在一年中温度最低的几个月提供日光浴室。
并且,从外一直望向走廊,可以看到小麦和燕麦田平坦的景观。在这里,属于大地那柔和温暖的颜色与杏仁树和无花果树的绿色融为一体。陶瓷和木材这两种材料也以微妙而永恒的方式结合在了一起。让人不禁感叹,这真是美与实用并重的双重设计。
Ca l’Amo House
Ca lAmo是一块42385平方米的地块,其位于伊比沙岛圣马特奥平原的北端。在历史上在这里原本有一个明显的地形和石墙,是属于伊比沙岛农村的标志性扇形区域景观。但随着现代科技的发展农业活动的逐渐放弃,梯田也遭到伏击。于是形成了如今这样,松树和杜松共存的林区。
这处建筑的位置便是利用了最后一个梯田,它位于两个现有的干石墙之间,是地块崎岖部分和西南部平坦低洼区域之间边界的地方。
建筑中的所有立面都通风透气的,其中干石墙是通过热处理木条制成的,开口和露台集中的纵向部分则采用了大型合成矿物板。所有室内装饰面、湿地覆盖物、游泳池和露台均采用不同形式和表面处理的天然石灰石。外部木工采用与CLT结构具有相同特征的层压木材,模糊了围墙和木工之间的界限。
House in Formentera Island
Bosc den Pep Ferrer位于福门特拉岛南岸Migjorn海滩旁一大片土地上。
在这里望去就是海洋与大地美丽的的剪影,于是这个的重点是强调的便是建筑构造和大地构造之间的双重性。
重与轻、地球和空气、手工和技术、压力和阻力等等。
设计中这个空间也分为三个模块,先是同一建筑系统中建造,在较低的地板上减去材料制成一个空腔。然后再将天井、走道放置一种完全空旷的序列当中。设计感轻盈且灵动。
其所用材料及其结合体也发挥了重要的作用。在施工中优先考虑的是一些天然材料。它们保证了舒适和健康的室内环境,同时也减少了能源的消耗。并且在环境层面上,该设计还提供了在这种气候下被证明有效的被动式生物气候系统,做到了其用水的自给自足。
Can Xomeu Rita
Xomeu Rita住宅位于福尔马内拉岛的内部,该空间靠近该地块中有一些的小麦和燕麦。
设计团队分析了当地的风向,在基于室内交叉通风的基础上保证了该住宅的生物气候,同样的,其门廊也被标注为允许在冬季收集太阳能用来保证室内的温暖。在夏季产生阴凉和清新的预算也不高,可见其设计实用之处。
最后从材料讲,这个建筑的材料大多为蜂窝状粘土砌块、松木、石灰石和石灰砂浆等透气性较好的材料,为家庭带来更多的温暖、舒适和健康。

