简约公寓设计 浦东世茂滨江花园
上海浦东-世茂滨江花园的豪华公寓,
屋主 Jon 是几家大型网红连锁店的老
付小姐在成都、鸿姐老火锅、半步颠小酒馆和
电台巷火锅都是他开的,
Jon 却始终没有自己的一套房子
去年,他找到好朋友 Lumos Studio
设计总监 Jimmy,
帮他打造独一无二的家装。
△付小姐在成都·上海恒隆店
今年夏天他终于搬进了自己的新家。
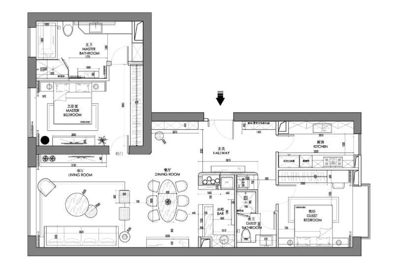
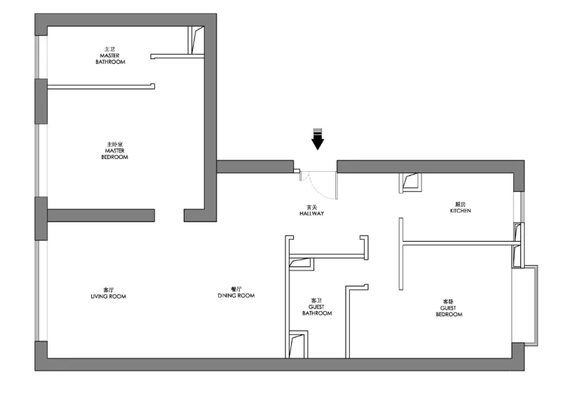
设计师也为这个项目倾注了很多巧思
把每一平米的空间都利用到了极致。
玄关的墙面选用了巴西稀有的大理石,
起居室落地窗面向江面的方向, 可旋转式百叶窗为室内提供充足自然光, 衬托出矿物质感的墙面和天花肌理。
两个层架都打了开孔,供猫咪攀爬
顶部装有长明灯和排风扇
主卧,像酒店一样洁净、通透,
白色的大理石显得空间更为明亮。
这是Jon特地要求的,
他想要每天下床的第一眼,
就能看到白天忙碌的江景。
Jimmy做了比较大的调整,
原来的洗手间是一个狭长空间,
三面都是实体墙,显得比较闭塞。
现在将一面实墙后移,拓宽卫生间尺度,
同时用一面通透的玻璃做隔断,
将洗手间和主卧在视觉上联结起来,
也让光线得以穿透整个空间。
还放得下一个奢侈的1.8米浴缸,
重庆人有泡温泉的习惯,
让Jon在繁忙的时间在家里
就可以随时走进浴室休闲、放空。
次卫与主卫的风格做得完全不同,
用绿色和白色的大理石做了拼花,
墙面选择了一款金钱豹的墙纸,
特别适合面积不足的小空间,很出彩。
Jon的家跟酒店最大的区别就在于,
他在家可以好好享受厨房时光。
有时候他会下厨煲汤,也会尝试做个新菜,
厨房,就是他灵感的聚集地。
Jon 是一个对厨房要求很高的人,
设计师Jimmy为他选择了
配套的嘉格纳厨房电器,
尽可能包容更多的使用功能:
双开门冰箱,一套价格不菲,
可以放下最新鲜的食材供Jon选择。
Jimmy把冰箱整个嵌入到右手边的柜子里,
只要一按,门就可以自己弹出。
经过拓展后的客厅空间更为开放,
缩短了从厨房走到吧台的动线,
也为家人朋友聊天聚会创造了舒适的社交空间。
Jon又会从一个大厨化身为Barman,
为朋友调一杯酒,再加几块冰,
几个好友窝在沙发上畅谈一宿。
掩盖不住重庆人骨子里的热情和好客。
LUMOS STUDIO 创始人/设计总监
毕业于爱尔兰都柏林DIT 学院,并获得室内设计及空间陈列学士学位。2010年成为英国RED Design 合伙人,并于2016年创立Lumos Studio品牌,主要服务高端住宅的整体空间设计及软装配套服务。
期间为众多项目及客户提供设计服务,包括世茂集团,北京霄云路8号,翠湖天地,莫干山私人会所,融创北京一号院, 香港新港集团,陆家嘴红醍半岛,泰禾一号院,北京星河湾等。囊括名人宅邸,私人会所,老洋房改造,餐饮文娱空间,楼盘售楼中心及样板间等。获得2019年度4040中国设计杰出青年,2018第五届中国设计年度人物精英设计师。
Jimmy Yang, graduated from Dublin Institute of Technology in Ireland, with a bachelor’s degree in interior design and soft furnishing. 8 years of design experiences in both Ireland and UK. In 2010, Jimmy Yang became a partner of Red Design(UK) and later in 2016, founded the Lumos Studio, which mainly provide the interior design and soft furnishing services for high-end domestic interiors. His clients and projects including Shimao Group, Casa Lakeville, Mogan Mountain private club, Hong Kong Xingang Group, NO.8 Royal Park, Lujiazui Hongti Peninsula Villa, Thaihot First Courtyard, One Sino Park, Beijing Star River Apartment, etc. And also, including celebrity private homes, private clubs, historical building renovation, F-B, entertainment spaces, estate sales center and show houses, etc. Jimmy Yang received several awards like the 40 UNDER 40 in 2019, and China Design Person of The Year in 2018.
设计总监DESIGN DIRECTOR: 杨铭JIMMY YANG
室内设计INTERIOR DESIGNER:冯玮 DOMI FENG
软装设计SOFT-DECO DESIGN:张帅 ALVIN ZHANG 刘禹彤 JESSICA LIU
布艺设计TEXTILE DESIGN:李德花 ADA LI
项目统筹PROJECT COORDINATER:李郝季雄 LEE LI
制片人PRODUCER/导演DIRECTOR:李郝季雄 LEE LI
摄像 CINEMATOGRAPHER:欧耶耶
摄影PHOTOGRAPHER:朱迪
LUMOS STUDIO禄魔司设计工作集室内空间设计、软装设计、 家具软饰产品设计及销售,艺术品推广,实体社交平台等多元化设计服务机构。

