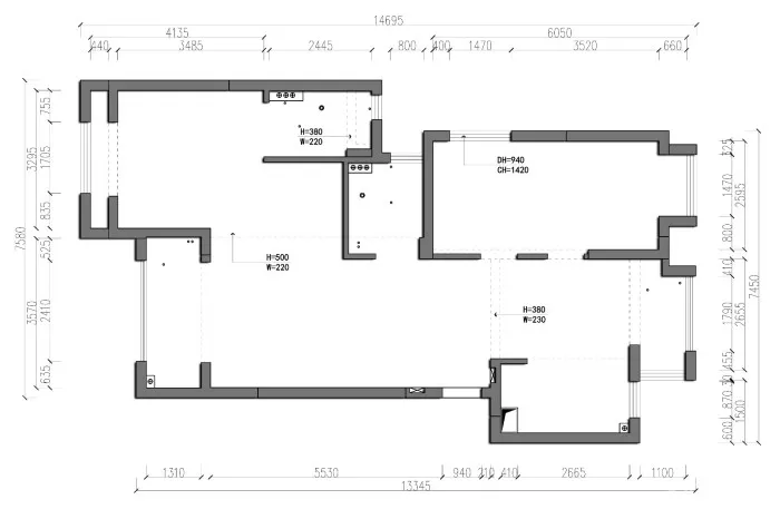
接到本案时,业主已经进入水电验收阶段了,根据业主的需求和现有工程的进度尽可能不改变原有水路电路的情况下做出平面规划与设计。
业主要求客卫干湿分离,用流行的长虹玻璃来装饰湿区看面不失前卫。
进门处是装饰柜也是鞋柜,满足日常需求。
考虑到业主需要一台钢琴,再三核对好尺寸再不影响动线的情况下后决定把三角钢琴放端景位,既是一种功能性也是一种装饰性。
项目地址:武汉——中建大公馆
项目时间:2019.12
现代 住宅 简约 前卫
接到本案时,业主已经进入水电验收阶段了,根据业主的需求和现有工程的进度尽可能不改变原有水路电路的情况下做出平面规划与设计。
业主要求客卫干湿分离,用流行的长虹玻璃来装饰湿区看面不失前卫。
进门处是装饰柜也是鞋柜,满足日常需求。
考虑到业主需要一台钢琴,再三核对好尺寸再不影响动线的情况下后决定把三角钢琴放端景位,既是一种功能性也是一种装饰性。
项目地址:武汉——中建大公馆
项目时间:2019.12
现代 住宅 简约 前卫
之前
