屋主S小姐,谈吐优雅,气度温和,从事金融行业。从北京搬到深圳工作生活后,她买下了这套184㎡的大宅作为一家三代(夫妻二人、女儿、母亲)的长久居所。
1、对颜值审美有着极高要求,尤为偏爱高品质、有质感的家具,在这方面给足预算;
2、追求经典品质的同时,也很关注空间实用性与细节的处理;
3、对奢侈品颇有研究,收纳方面需要兼具储藏和展示的功能;
4、希望家回归舒适本质,能优雅地生活,实现自己内心最期待的状态。
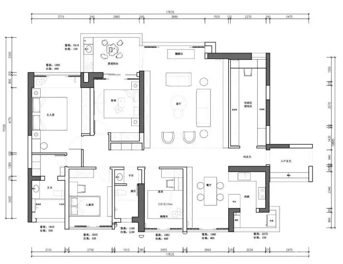
1、打通客厅与阳台,增加客厅采光;
2、餐厨区设置吧台,改造成中西厨一体的开放式厨房;
3、主卧与主卫之间增加一道隔墙,形成一个小的储物间;
4、客卫做了完全的干湿分离,过道调整「H」型隔墙,让收纳翻倍;
5、改造景观阳台和客厅相连;
6、打掉储物间的隔墙并将空间加长,与入户玄关持平,形成独立衣帽间。
流畅的现代主义美学,赋予了空间高贵与个性,大面积的皮质元素,点缀金属与木质,从多维度的细节中,呈现出优雅高级的生活氛围。
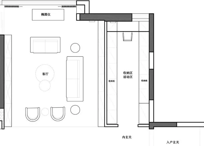
我们将玄关分为入户玄关和内玄关,强烈的纵深感,给空间蒙上了一丝神秘色彩,增加入户仪式感。
极富张力的光影,渲染出错落的层次感,远观如同画卷一般美妙。
灰白色调中加入浪漫的线条,婉转低回的空间,在暖黄色的灯光烘托下,自然原木的温暖。
开放式客餐厅,南北通透,由两条纵向主轴线 一条横线过道串联所有空间,达到移步换景的视觉效果。
客厅并没有设置电视,前后背景墙都设计成收纳柜的形式,中间搭配多组沙发围合,形成洄游动线,最大限度促进一家人的面对面交流互动,营造居家温馨感。
现代风格融入丰富的收纳,糅合简约的设计细节,丰富的表面材质纹理,满足视觉与触觉的双重体验。
为了满足日常观影需求,在三人沙发正对的一面墙顶部嵌入可伸缩幕布,投影仪置于沙发背后的柜体,巧妙平衡实用性和风格品味。
落地灯散发出柔和的光线,中和空间冷色调,带来一丝暖意,用设计留住时间的重量。
屋主喜欢经典而有品质感的事物,在硬装和软装上都很舍得投入。精心的用材不畏惧时光的变化、潮流的更迭,散漫随意自成一派,却值得仔细品读,反复摩挲。
一餐一食,在最真实的生活场所里,将仪式感延续到底。
餐边柜的黑玻反射出烛台吊灯的光影,神秘而优雅。
中西厨结合的半开放式设计,与餐厅连接处设置吧台,为屋主营造更多的使用场景,柔光下的一隅,亦动亦静。
厨房以黑色为基调,掺杂木色与黄铜金属色点缀,铺排出极具现代感的摩登美学。
定制柜、地板等材料找的是深圳本地合作商家。软装的基本都是屋主海淘,还有各种小家电都来自德国英国等知名品牌。
主卧融合了摩登都市风格的核心,利落干净的经典布局,在细节处彰显设计的别处心裁,与屋主自身的气质相辅相成。
时尚经典的黑色和墨绿色搭配,精致的五金配饰点缀其中,优雅自现。
沉稳的原始感与摩登的精致感交错,精准切割的材质将空间完美分割。
主卫做了干湿分离,淋浴区设置壁龛,作为收纳。
鹅黄色的墙面和白色床品堪称绝配,点缀的灯具赋予空间浪漫又灵动的氛围。
儿童房并没有设置床头柜,用写字桌代替。云朵状护墙板不仅实用,更是为空间加了一份活泼童趣。
长辈房浅棕色背景温馨助眠,质地上乘的床品搭配金色的圆形灯具,奢华又优雅。
一切回归生活的本质,经得住时间的检验。
最初的设计方案中,衣帽间和客厅之间可灵活开合,进一步引入自然采光。
不过屋主家人表达了非常强烈的意愿想要衣帽间和客厅互为独立,因此后面尊重他们的需求改为了分离式布局。
衣帽间的功能非常强大,近5m的深度里,一面全玻璃的展示 收纳空间,一面全爱格板的平开门储物柜,占全屋一半的收纳容量,整体看起来非常震感。
大面积的玻璃材质令人赏心悦目,整齐陈设的收藏品,只一瞥,就可以置身美好的记忆中。
屋主专属的梳妆台,灯光、饰品化妆品等细分收纳,精致而实用,在这里开启新一天的序曲。
Q 全屋收纳规划如何安排? A 首先是就近原则,在每个独立功能区都有与之相配的收纳区,在走廊也是移动了隔断墙让收纳翻倍,客厅和衣帽间更不用说,屋主收纳的各种奢侈品、香水、香薰蜡烛都如数家珍。
Q 整个过程中有什么值得分享的经验吗? A 实现居住者的需求是我们服务的宗旨,我们也希望屋主可以通过设计师的表达,去获得生活的新方式,感受生活不同层次的美好。但是设计师做得再好也不能阻碍居住者本身的意愿和风采,只有屋主和家很好的结合,又很融洽地相处才是我们作为设计师最应该为大家做的。
设计机构:薄荷家居设计
设计师微信号:Charlie04025498

