越南胡志明Danshari 咖啡 / sgnhA
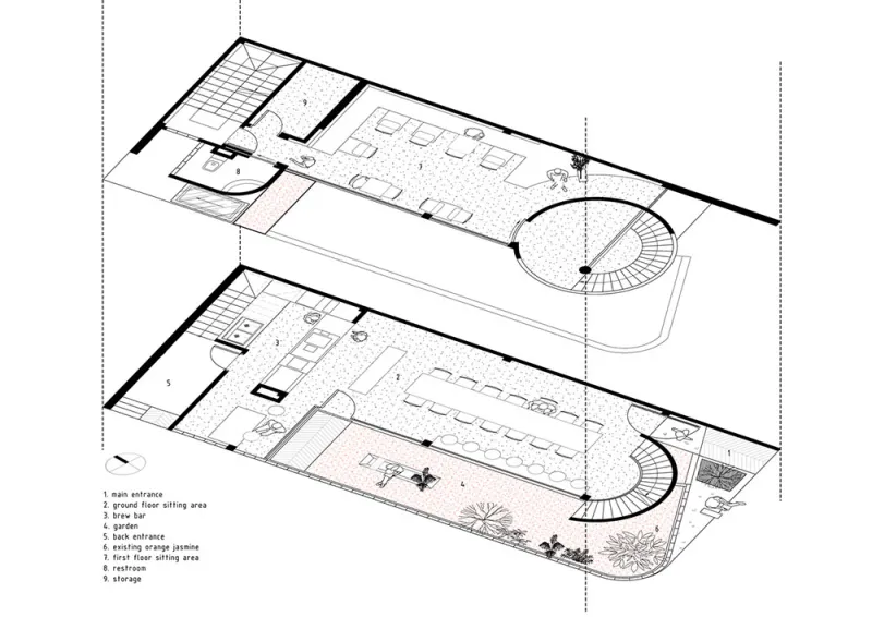
来自建筑事务所的描述。在过去的四分之一个世纪,橙色茉莉花树一直静静屹立在院子的角落,充当守护者的角色,见证着空间的变迁:从一开始的老房子变成今日的Danshari咖啡店。Danshari咖啡店占据了这栋四层小楼的一层和二层。
所有的家庭活动现在集中在上层。房屋的框架结构基本还是维持了原样,而外立面则得到重新设计,服务于新功能。灵感既来自于现代建筑——20世纪越南乡土建筑的特征,也来自于V60咖啡滴漏——咖啡店的logo,与直率的混凝土砌块一道,作为新表皮的语言,且通过孔洞将环境有策略地吸收到建筑内部。
无论是首层生机勃勃的邻里活动,还是直接的日光和自然通风,它们都漂浮、浸染着公共走廊和楼层。微微粗糙的砌块令人联想到古老的西贡,就在这小小的一方咖啡店的空间之内。
Danshari咖啡店可以经由藏在最远角落里的入口进入。一旦门打开,整个首层的场景便会跳入眼帘,这里有一张公共桌和开放的料理吧台,线形的窗子下一排整齐的椅子,正面对着花园。螺旋楼梯通向二层的阳台,周边的环境逐渐显现出来。小巷的风景、公共庭院和主干道上经历世纪风雨的行道树都被覆盖了。
现代主义的灵感在材料的选取上可见一斑:水磨石和裸露的骨料饰面运用不同密度、色彩来打造需要的表面种类,也成为了Danshari咖啡馆的标志。最后值得一提的是,木材的使用平衡了材料的色系。这三种材料在光线、花园、烘焙咖啡豆的香气以及日常生活的琐碎声音中产生了共鸣,赋予了Danshari在西贡中部独特的氛围感。
建筑设计:sgnhA 类型:咖啡店 面积:160 m² 年份:2020年 摄影:Chimnon studio 制造商:AutoDesk, Daikin, Dulux, INAX, Adobe, Caesar, Cat Van Loi, Panasonic, Trimble Navigation 主创:Tran Quoc Khoi N guyen , Nguyen Duc Tuan Anh 设计团队:Nguyen Thi Khanh Nguyen , Vu Yen N hi 委托人:Danshari 城市:胡志明市 国家:越南

