来自曼谷的设计事务所Sixseven Studio (67s)日前完成了汤の森温泉和水疗中心的设计――一座全新的城市疗养地,同时提供日式温泉和按摩体验。
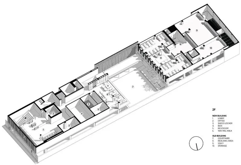
走进位于2层的大厅,迎接客人们的是一道贯穿整个中庭的竹肌理混凝土墙。内部空间的设计旨在与喧嚣的外部世界相隔离。走廊空间的地面以薄木板铺设,并搭配以隐蔽式照明,营造出宁静和放松的氛围
3层和4层的温泉区域设计更加简洁,使用了浅色调的材料,统一的纹理与天然板岩和间接照明形成和谐的搭配。
水疗室拥有更强的私密性,交错的木质屏风与亚克力板营造出类似于日式障子的朦胧光线。
首层的“Happy Rice”餐厅与花园相邻,设有绿树环绕的座位区。开放式的吧台为客人提供清淡的饮食和日式冷饮。
来到屋顶的酒吧,竹子的元素再次出现。这一次,它被用于覆盖整个天花板,为室内带来跃动且令人愉悦的光影。


😊