Junya Ishigami
日本建筑师石上纯也相信大家并不陌生,他于 2004 年创立了自己的事务所——Junya Ishigami Associates。
他的新作是位于神奈川工业大学 KAIT 广场的一处公共活动空间。弯曲屋顶上布满方形孔洞,让人不由得好奇,这到底是装置还是建筑?
在正式了解这个项目前,我们先来看看他在 2008 年时完成的神奈川工科大学 KAIT 工坊,这是专门为学生创造的从事创意活动的空间。
这个单层立方体建筑面积约 2000㎡,四面被玻璃包裹,整个屋顶结构则由 305 根五米高的实心钢柱支撑。这些钢柱十分纤细,且拥有不规则的排列方式,非常新奇。
时隔数十载,石上纯也再次为这所大学做设计,也是交上了更加令人惊喜的答卷。
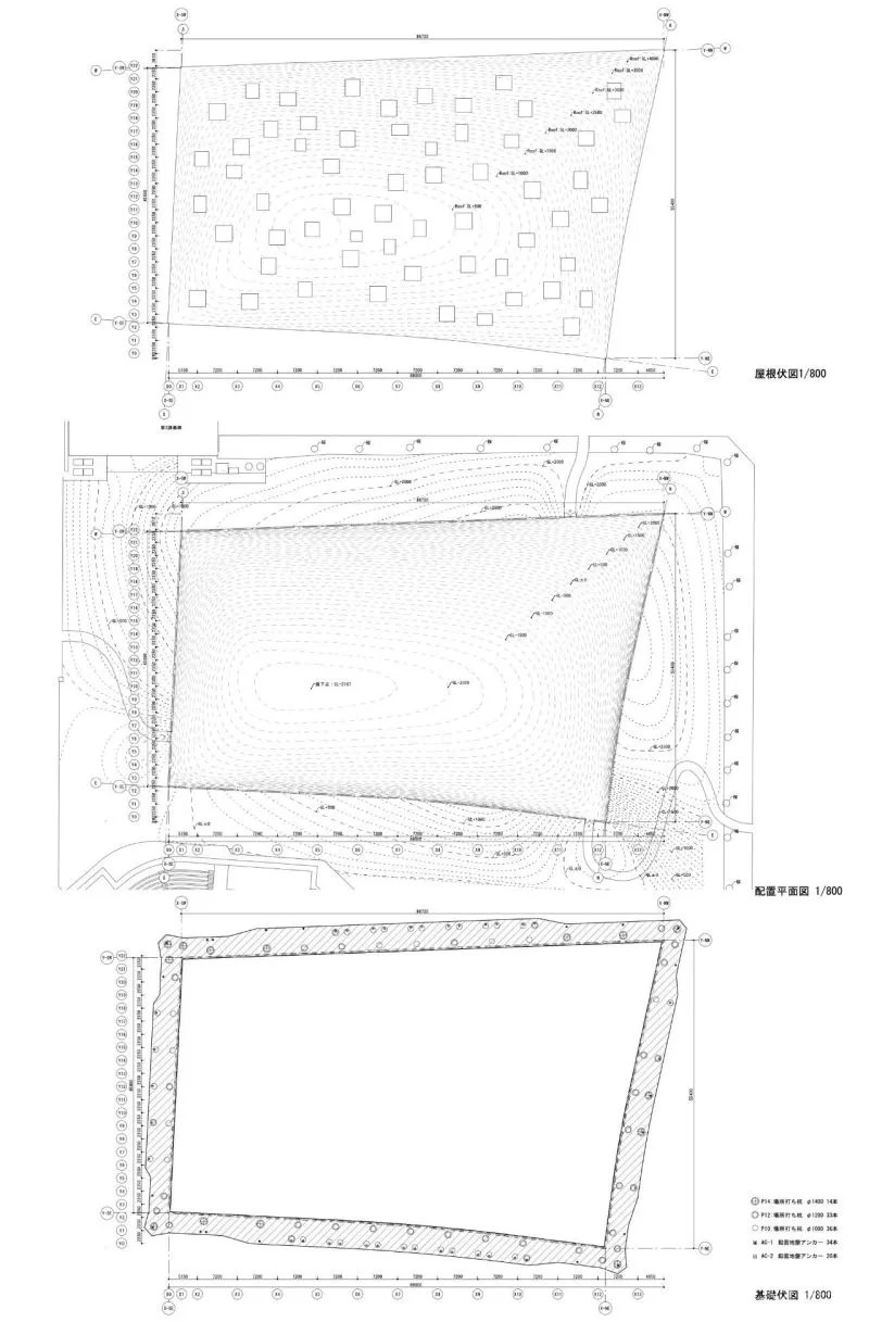
这是一个极简的半开放式无柱凉亭,占地总面积为 4109㎡,就位于神奈川工科大学 KAIT 工坊的东侧。
整个建筑犹如一个巨型的装置,身处其中却让人感到宁静祥和,学生们可以在这个广阔的空间里吃饭、聊天,或是在校园节日期间设立临时摊位等等,拥有无数的可能性。
屋顶上包含 59 个大小各异的方形孔洞,室内外空间通过这些孔洞达成连接,雨雪天气时,内部也会下起“方形”的雨或雪,对于置身其中的人来说,无疑是独特的体验。
地面采用了一种吸水性极强的混凝土,用来解决积水问题,一旦雨水进来便可马上吸收,然后流入地下,保持空间内的干燥。
建筑物的天花板高度在 2.2~2.8m左右,石上纯也用天花板和地面构造出神奇的视觉效果。
当你站在这个建筑物中,由于屋顶的向下弯曲,天花板和地面在远处形成交错,就好似天空与地面形成的地平线,神秘而纯粹。
近百米的无柱空间看似云淡风轻,在实际设计过程中,却需要考虑到屋顶铁板形变问题,对结构师也是带来了前所未有的挑战。
最终的结构形式类似于桥梁设计中的吊桥,团队为巨大的混凝土基础梁使用了 83 个桩和 54 个地锚,地面则倾斜了 5m 的高度差,墙壁的厚度为 250mm。
可能是由于施工难度太高,原本计划的是 110×70m,而建成的方案被缩小到了 87× 56m,屋顶的厚度控制在 12mm,也是减去了不少的重量。
校园地面与项目地面有近 2m 的高差,也赋予其更加独特的视角。
石上纯也的作品常常给人一种强烈的空间张力,这个项目也是如此,纯色的空间营造出强烈的虚无感,让人在这里可以忘却时间,完全的放松思想。
在这里或坐或躺,都可以直接欣赏到户外的天空与树木,也秉承了石上纯也一贯的“将建筑视为景观的一部分”的设计风格。
除了上面这个项目,石上纯也的另一个新项目——「Maison Owl」也将在今年夏天于日本山口县宇部市迎来开业,这是一家形如洞穴的餐厅,从释出的图片看,估计又将在日本的餐饮界、设计界轰动一把了▼

