M16 住宅位于 Carpina 镇的一个封闭式住宅小区内。为了满足客户的需求,建筑师将项目打造成为一栋用来在周末举办家庭聚会的住宅。整个建设用地为30米×15米的矩形,北侧和西侧有矮墙和灌木的围护。两层住宅的体量大小和位置关系依据场地性质来设计,与整体环境保持连续性。
通过开放空间的有序组合,整栋住宅与场地的结合更加紧密,空间感知也更加丰富。通过多次尝试和调整,项目有着极佳的景观视野,可以最大限度地欣赏到伯南布哥( Pernambuco )森林区的自然风光。开放空间位于南侧,可以享受到充足的日光,是家庭聚会的理想场所。
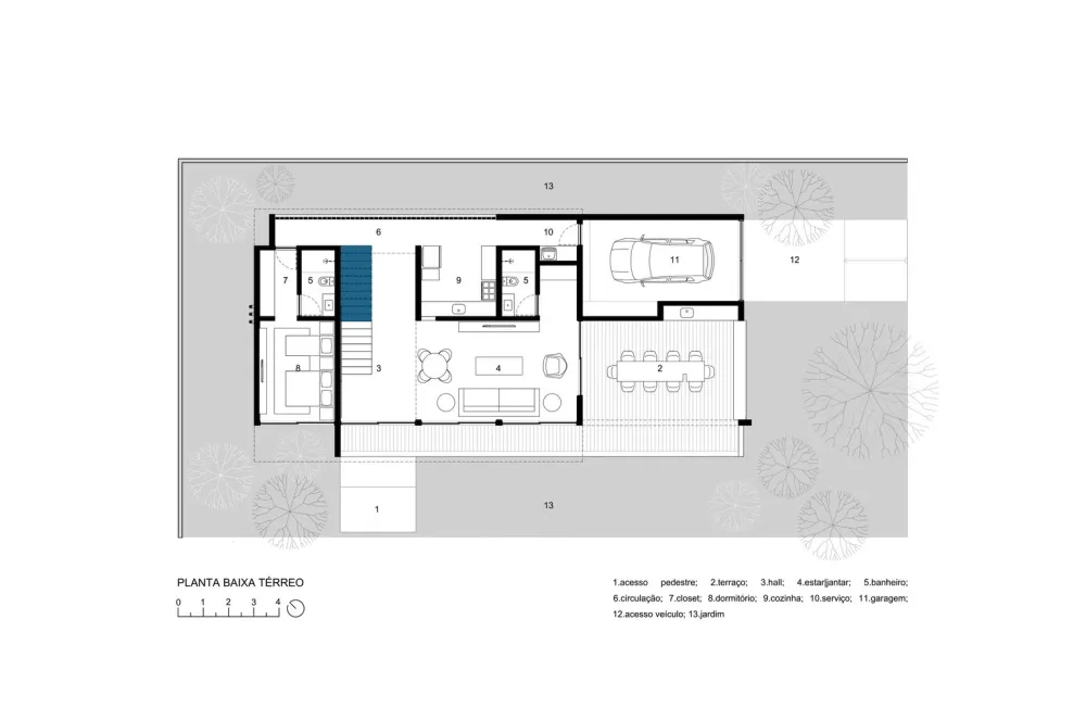
住宅的交通组织由入口门厅空间引导。门厅处醒目的黄色悬浮楼梯构成视觉焦点,将一层南侧的聚会和起居空间与北侧的厨卫辅助空间进行联通。三间私密的卧室被集中设置在二层。东侧延伸出去的大露台仿佛是欢乐的前奏,欢迎着回家团聚的亲友们。黄色的镀锌钢板凉棚上垂下生气勃勃的绿植,让整个空间惬意而充满活力。享受着美味的家庭料理,交谈着各自的生活经历,头顶的凉棚和绿植在餐桌上构成光阴韵律。与家人相聚的温馨场景,就这样被建筑师用空间手法勾勒出来。从墙体和空间的图底关系来看,一层平面几道连续的墙体组织出严谨的空间序列。空间沿着墙体,从西到东逐渐变得开敞。竖向的墙面与水平向的黄色棚架形成对比又相互映衬,室内空间和室外空间的界限在这里被柔化。
南北向的五道纵墙,以及水平向的两层楼板被特意强调,简洁的直线关系让建筑结构清晰有力。建筑师将点睛之笔用在了两处顶部边缘的处理上。二层的女儿墙上蓝色的液压瓷砖,一层露台上黄色的钢板棚架,打破了建筑一成不变的整体性,变得活跃起来。黄色和蓝色的搭配体现在建筑的多处设计中,让这栋住宅个性鲜明。
另外值得一提的是建筑中使用的半透明玻璃砖材质,不仅有效地保护了使用者的隐私,而且让进入室内的光线变得更加柔和。建筑采用的是传统而常见的钢筋混凝土结构。模块化建造的理念贯穿整个设计思维,空间的组织也是建立在合理的结构基础上的。无论是场地布置,还是建筑造型,亦或是细部处理,都采用了简单而直接的建筑语言。这种纯粹而不加掩饰的建筑性格,与家庭聚会时无拘无束畅所欲言的氛围是一致的。M16住宅以欢迎和接纳的姿态,等待着来到这里欢度周末时光的人们。






建筑师 NEBR arquitetura
项目地址 Carpina – Estado de Pernambuco, 巴西
主创建筑师 Edson Muniz
建筑团队 Renata Lobo
面积 290.0 m2
项目年份 2017
摄影师 Maíra Acayaba

