 
 
小庭院 © João Morgado
墨西哥是一座历史名城,神秘的社区中藏有大量文化及建筑遗产。Tacuba就是众多社区之一,位于市区的西北部,在经历了持续至今的社会变迁和城市改革后,不同年代的遗址随处可见。
▼项目临街立面 © João Morgado
 
 
19世纪末20世纪初,Tacuba成为当地最富有的地区之一,拥有大量别墅。然而随着时间流逝和政策变革,许多房屋废弃或坍塌。幸运的是,MM34被保留了下来。MM34建于1910年,属于Porfiriato时代的法国折衷主义风格,目前,其历史价值被国家美术学院和国家人类学与历史研究所承认。原有住宅一部分损毁严重,一部分已经坍塌,建筑师将其分成两个体块进行设计,一个整合了临街立面,另一个面向主庭院,赋予住宅以新生命。
▼原项目俯视,损毁严重 © João Morgado
 
 
基于这些特征,建筑师将新的实体与旧有元素结合,重塑历史建筑下的住宅空间。同时,临街立面的大量手工艺构件被复原,包括石材雕刻的阳台和门楣、铁栏杆、大窗户和屋顶玻璃瓦。建筑师用现代手法诠释历史建筑,升起的体块和围墙共同构筑衔接天空的庭院,体块的一层通高,竖向长窗间隔排列,形成富有序列感的光影,创造了宁静的冥想空间。
▼临街立面,用新的材质替换旧有构件 © João Morgado
 
 
▼细节,玻璃瓦 © João Morgado
 
 
▼升起的体块和围墙共同构筑衔接天空的庭院 © João Morgado
 
 
▼竖向长窗间隔排列,形成富有序列感的光影 © João Morgado
 
 
▼光影细节 © João Morgado
 
 
 
 
▼宁静的冥想空间 © João Morgado
 
 
该项目直接连接两个时代的建筑,融合旧与新。一层外墙环绕火山石踢脚,同时起到支撑新铺面砖的作用。翻新后的房屋有三层,包含7套公寓,空间灵活多变,涵盖loft空间、工作室、普通公寓和顶层阁楼套房,与主庭院中的历史元素相互融合,另外两个小庭院中的一个种有树木,阳光透过格栅,整个庭院空间显现出墨西哥风情。
▼小庭院 © João Morgado
▼阳光透过格栅,整个庭院空间显现出墨西哥风情 © João Morgado
 
 
 
 
▼庭院斑驳的光影撒入卧室 © João Morgado
 
 
 
 
该住宅以可持续的方式赋予这片神秘区域新的生命。改造目的是希望利用遗产改造促进Tacuba其他区域的变革,从而拯救历史遗址,提升其价值。
▼一层中部loft © João Morgado
 
 
 
 
 
 
▼一层尽端loft © João Morgado
 
 
 
 
 
 
▼客厅,普通公寓 © João Morgado
 
 
▼餐厅,顶层阁楼套房 © João Morgado
 
 
▼阳台,顶层阁楼套房 © João Morgado
 
 
▼一层平面 © Inca Hernandez
 
 
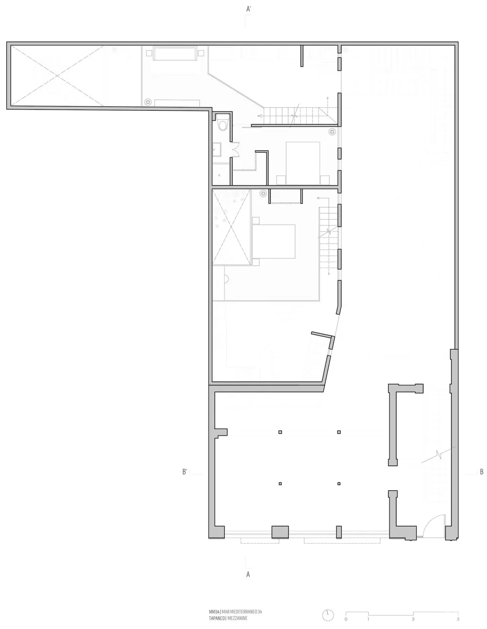
▼夹层平面 © Inca Hernandez
 
 
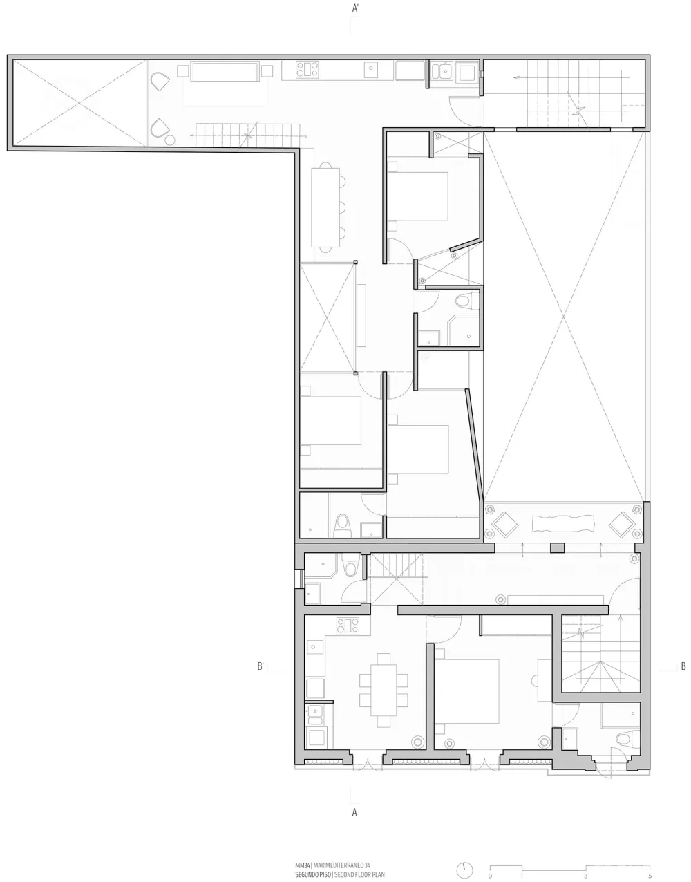
▼二层平面 © Inca Hernandez
 
 
▼三层平面 © Inca Hernandez
 
 
▼立面 © Inca Hernandez
 
 
▼横剖面 © Inca Hernandez
 
 
Location: Tacuba, Mexico City Use: Housing Architect: Inca Hernandez Development: Top Project Multiplex / Efraín Hernández Photography: João Morgado – Architecture Photography Area: 620 m2 Interior design: Ana Ximena García, Inca Hernández, Raíz Mx, Adrián González (Mercado de Chacharitas) Collaborators: Gabriela Llovera Arciniegas, Luis Enrique Vargas Structural engineering: Javier Soria Year: 2020


