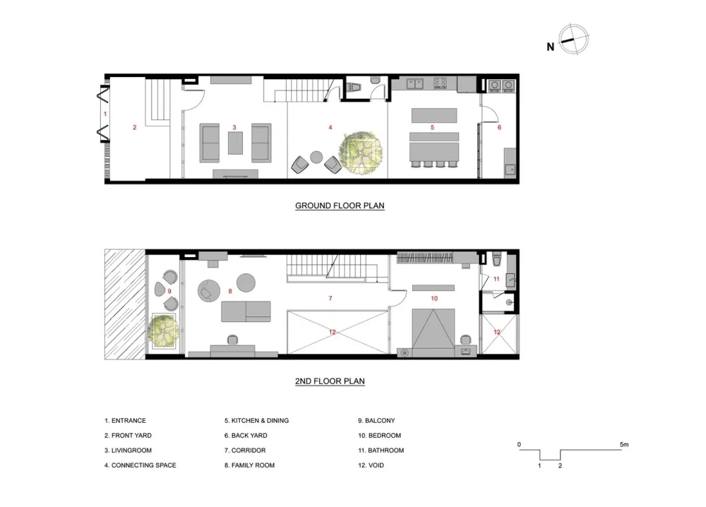
酒店位于河内的Tran Dai Nghia Street,坐落在一个美丽而宁静的小巷子里。这是一栋宽5.4米、长20.3米的房子, 前后都很开阔, 在此可以俯瞰被树木覆盖的大学校园。这样的空间在城市里是理想的家庭生活环境。
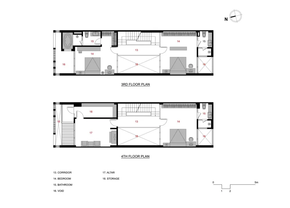
由于该建筑采用了亲近自然的设计理念,建筑内的每个房间都有极好的自然光线和空气: 天窗位于房屋的中央,旁边就是单侧楼梯和连接各个功能区的廊桥,这样的设计为建筑提供了良好的空气对流。绿色的树为人造建筑和自然景观造就了某种和谐,抵消了砖、钢和混凝土的粗糙感。树木不仅对调节和净化室内空气很重要,而且其“绿色”肺的功能也很关键,因为树木可以给房屋提供充足的氧气。

另外,传统材料在施工的过程中会被优先考虑,并会通过整体考量,以便清晰地描绘出简洁、朴素和富有情怀的风格。建筑一侧的整面墙都铺有Bat Trang传统陶瓷,但是以不同的分布铺设,从而为建筑营造出视觉魅力。更重要的是,房屋尽头明红色的装饰木墙呈现出古老的气息,木墙上镶有栏杆并刻有精细的雕塑,以一种怀旧的方式展示着越南北部独特的文化。

在这个项目中,我们不仅专注于利用风、光和树等自然元素,还运用了越南建筑中的传统元素。我们希望居住在这个美丽建筑里的每个家庭成员都能生活得更加舒适、更加亲近自然。





















建筑师 : i.House Architecture and Construction 地址 : 75 Trần Đại Nghĩa, Bách Khoa, Hai Bà Trưng, Hà Nội, 越南 主创建筑师 : Chu Ngoc Anh, Nguyen Huy Cuong 设计团队 : Nguyen Dinh Tiep, Le Manh Trung, Hoang Anh Tuan, Pham Thanh Tung, Nguyen Thi Thai, Dang Huy Cuong 建筑面积 : 485.0 m2 项目年份 : 2018
版权声明:本文内容由用户自行发布上传或投稿由设计芝士代为发布,版权归原作者所有,设计芝士不拥有其著作权,亦不承担相应法律责任。如果您发现本站中有涉嫌抄袭或侵权的内容,请点此提交工单进行举报,一经查实,本站将立刻删除涉嫌侵权内容。

