百得利是中国最早的汽车经销商集团之一,其新总部由TEMP设计,于近日在北京落成。该地块位于百得利长期持有的工业区内,区内的数个建筑多年来一直被用来展示高端进口汽车。在中国经济的快速变化下,新总部将成为其战略高管和商业伙伴交流和建立关系的中心。
 
 
 
 
 
 
该建筑始建于上世纪70年代初,当时中国尚未开放经济,作为工业区的集群建筑之一,给冶金备件的生产活动提供场地。与当时的大多数工厂一样,这座功能至上的直线型结构上设有等距的窗户,以常见的砌法用红砖筑成。直到今天,内部仍然有大量的钢-混凝土柱子、桁架和梁保留下来,支撑着这座建筑。
 
 
该建筑的上一任使用者是一家当地的建筑公司,于20年前搬入了这座工厂,并为了增加使用面积加建了二层楼板及小夹层。当时的设计师因应时代的再次开放,在大厅中设计了传统中国庭院中常见的月洞,以夸大的手法为空间注入了一份对历史文化的再主张。
 
 
TEMP为新总部的设计将不仅仅是一个办事处。
百得利的合作伙伴将频繁地到访以促进长期的业务关系,员工也将在这里探索日益多元复杂的商业环境下未来机遇。
为了顺应新的需求和吸引眼球,入口处的翻新采用了反光不锈钢箱体和立柱,地面上增建的弧形墙带,以灰色砖块和台阶石组成,延伸出建筑原有的边界。
 
 
入口处的翻新采用了反光不锈钢箱体和立柱
 
 
 
 
 
 
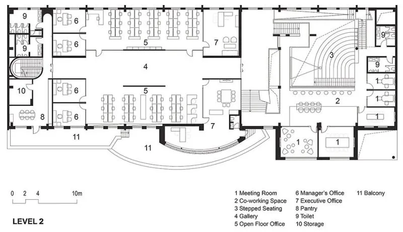
新安装的木栏杆重新连接和勾勒原有结构的各层楼梯和立面,将原本杂乱的空间有序整合起来,使新大堂更为庄重有序。同一饰面延伸至阶梯座位,甚至到包裹着弧形的接待台。在沏白了墙面和横梁的衬托下,这个木丝带穿梭于中庭和巨大的月洞之间,以优雅的姿态默示着前人的痕迹,将各时代的建筑遗留联结在了一起。
木丝带穿梭于中庭和巨大的月洞之间
 
 
 
 
 
 
 
 
中庭旁、玻璃隔断后的宽敞大厅是集合多部门的办公空间。绿色的办公柜和工作台按照原有的钢柱形成的网格安放着。悬挂在空中的吸音板和条形照明,像轨道般,在视觉上为办公环境和员工心理的营造出了统一感。
玻璃隔断后的宽敞大厅是集合多部门的办公空间
 
 
 
 
会议厅、咖啡厅、社交区等设施在设计中以新视角呈现,从而迎合该大楼被赋予的管理和战略角色。这不仅仅是在一种在基础上的创新,而是让工作场景里的体验更加丰盈,在其中加入了探索的趣味、清晰感及多样的视角。
从双层高的入口,经由小尺度的门廊,通向宽敞的阶梯座位和二楼私密的楼道,大小尺度的交错使空间的流线更有趣。二楼的走廊里由不同数量拱门叠加而成,并嵌入轨道照明,将访客引进多个的高管办公室和会议室。走道的终端是狭窄的螺旋楼梯,截然反衬着与入门流线的开阔的体量。
 
 
楼里的拱门、木丝带、圆形阶梯座位和接待处的曲线,在视觉上弱化了建筑原本方正规矩的结构的棱角。这项改造对日新月异的高层建筑来说是难能的总部设计。对有着50年老建筑的再利用设计,其尺度、线条与时代的交织对照都呈现着一份尊重岁月的仪式感。
 
 
 
 
 
 
 
 
 
 
 
 


