由R-BAS设计的大连Chez Moi已竣工落成。此建筑改造及室内项目包含烘焙工作室、法餐厅、一间料理教室与社区文化中心。「在冬夜走了路去分享一只火炉」,这是委托方期望营造的氛围。Chez Moi,意为法文「在我家」。它被设想为一个社区情感的船埠,旨在通过举行各式艺文与教育活动和在地农产品的展示构建大连东港居民共营共享的场所,以改善这个新的临海住宅开发区生疏的邻里关系。同时,运营主体亦提供倡导慢食主义的正统欧洲式小酒馆餐饮服务。
在方案伊始,设计师这样地思索了:「社区如何由建筑定义?」社区是家的集合。它由街巷及内部共享空间串联,通向更广垠的外部公众空间。因此R-BAS创造了一个连续的地景。本项目侧立面运用了大面积玻璃幕墙以取消建筑内外边界。阳光倾泻入用餐区。白蜡木多层板与实木板制成的几何桌椅组合被置于日照充足的东南向的街巷中央。东北地区集体化运动时代的公园常见的露天水洗石被铺设在地面;道路从户外延伸至室内,使空间呈现向周边环境开放的欢迎姿态。
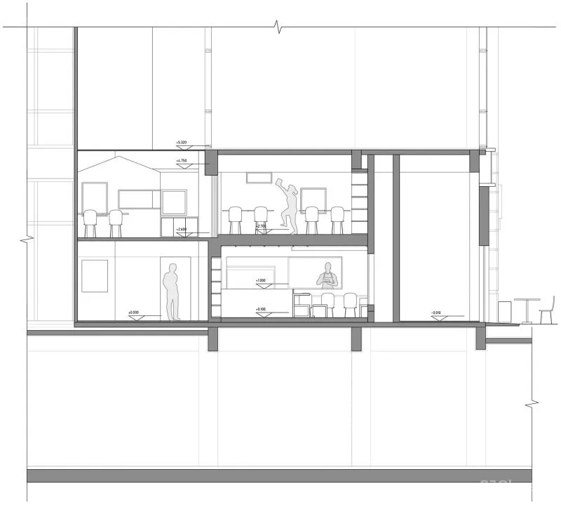
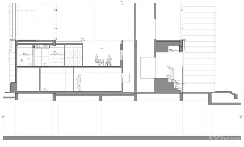
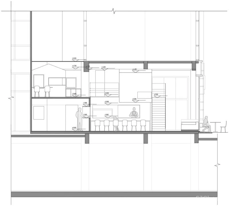
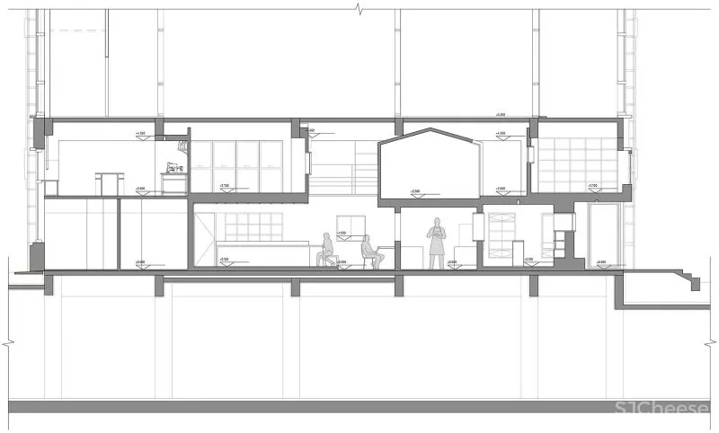
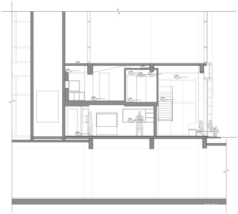
各功能区被转化成独立的房屋体量。毗连的白色坡屋面和不规则开窗重构了传统社区的住宅单元,并以此建立了一个温馨且迷人的路邻聚落系统——使用天然木材、单一漆面的纯粹的美。在一层,主入口、吧台与舞台组成简洁的三重借景。舞台(街心广场)占据了空间的中心位置,为分享会、小型演出、亲子游憩及公益服务等活动提供场地,激发东港社群蓬勃的生命力,实现基层组织自更新。
既有的建筑整体被改造。R-BAS设计了一个精密结合的轻、重型复合钢结构来满足夹层落差需求。出于商业效率考量,原始中庭被拆除。一个15m高的混凝土框架结构作为电梯井道被置入,以供予上层租户便利。
虑及北方冬日冷峭的西北风,一层由内敛的侧向玄关进入。受历史及近洋贸易影响,大连市民的生活方式具有明显的日本气质,而室内方案存在了对这种有趣的跨文化认同的指向性。土间(どま)和朴素的格天井定义了空间的流动过渡。当地乃至东北亚乡村住宅普遍的白色竖纹塑钢板推拉门被R-BAS以长虹玻璃再诠释。局部房屋应用了马赛克瓷砖,材料的民艺感与「家」之感被铺叙。
项目空间信息: 空间名称:Chez Moi商业与社区中心综合体 空间类型:商业空间、复合空间、社区中心 空间地址:辽宁省大连市中山区港浦路133-2 设计公司:R-BAS大栋建筑 主创设计:吴泽玮、杨一博 设计团队:曹海芳 平面标识:One Thousand Times / 一千遍 施工团队:北京华特装饰艺术有限公司 空间面积:室内340平方米 建筑改造536平方米 空间主材:木材、白蜡木多层板、玻璃、地坪漆、水洗石、白色乳胶漆、长虹玻璃、木地板、马赛克 摄影版权:存在建筑 项目业主:Chez Moi


谢谢分享