项目沿街外观,连续的砖墙基座 ©Annika Feuss
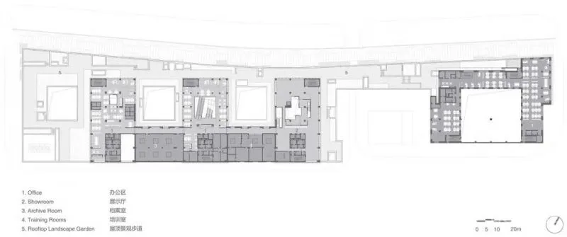
如恩为全球领先电梯制造商迅达集团设计了其亚太区总部。迅达城位于上海嘉定工业区,占地32,400平米,其中包括办公楼、展示区、工厂区、仓库区和研发中心等。如恩在此项目中强调了建筑、景观与公共空间之间的融合,意在摆脱工业建筑所带来的空旷感与孤寂感。
▼项目外观 ©Annika Feuss
传统的办公园区通常由绿化带或公共步道松散地连接而成,而迅达城的设计则紧密糅合了所有元素,实现不同功能区域的无缝连接,让建筑与景观变得和谐统一。外观看来,迅达城的设计由两部分组成:连贯的砖墙基座,以及悬于其上的灯箱式办公主体。一条300米长的步道,则串联起可容纳600人的食堂,200人的礼堂,休闲区域和咖啡厅,7,000多平方米的花园等公共空间。
▼设计草图 ©Neri-Hu Design and Research Office
▼项目沿街外观,连续的砖墙基座 ©Annika Feuss
▼砖墙外观 ©Annika Feuss
园区的东北侧是迅达城的研发中心,砖墙基座连贯而上。堡垒式的外墙设计,展现了其动感而又坚实的形态,正如此处的工作氛围 — 开放创新又极具保密性。其对角处,三个玻璃盒式的建筑主体则是可容纳800名员工的四层工作区域,包括了会议室、休息室、档案室、陈列室及培训中心。每栋建筑中都置入了一个多层中庭,打破空间隔阂,鼓励各部门之间的视觉互动与交流。
▼砖墙结实而又富有动感 ©Dirk Weiblen
▼对角处设置三个玻璃盒式建筑主体 ©Dirk Weiblen
迅达城设计中所应用的两个建筑元素,不仅功能各异,在质地上也是大为不同。基座平台所使用的灰砖,在中国建筑的运用中颇为常见。这既是向当地物质文化遗产的致敬,也表现出积极融入当地文化的姿态。其上的玻璃盒式主体,采用了现代风格的玻璃窗,白色金属面板错落有致,营造出明亮简约又不失优雅的建筑氛围。迅达城的设计既根植于当地的文化传统,又与其瑞士背景遥相呼应,传递了具有创新性和前瞻性的企业文化。
▼主体建筑立面与砖墙的对比 ©Annika Feuss
▼材料细部 ©Dirk Weiblen
▼总平面图 ©Neri-Hu Design and Research Office
▼一层平面图 ©Neri-Hu Design and Research Office
▼二层平面图 ©Neri-Hu Design and Research Office
▼剖面图 ©Neri-Hu Design and Research Office
项目名称:迅达亚太区总部 – 迅达城 地点:上海 时间:2016年 客户:迅达集团 占地面积:32,400平方米
主持建筑师:郭锡恩,胡如珊 协理总监:杨延蕙 协理:谢宜加 设计团队:Begona Sebastian, 茅书维, Jinlin Zheng, Davide Signorato, Evan Chen, Kelvin Huang


学习到了?