室内概览 © Fernando Schapochnik
项目坐落于阿根廷首都布宜诺斯艾利斯Palermo区,前身是一座老旧的仓库建筑,仓库后部紧挨着一个附属区域,如今则被改造一家纺织品设计贸易公司的办公室、产品储存以及展示间。设计旨在为业主创造一个属于自己的私密世界,在密集的城市环境中为其公司留出一席之地,以满足公司内部多样化活动的需求。
▼项目外观 © Fernando Schapochnik
临街立面独特而不张扬。垂直的线条以一种不规则的节奏排列在一起,形成既封闭又开放的立面效果,创造出视觉上的可塑性。外立面与主体建筑隔出了一段距离形成缝隙空间,中间设有金属网制成的平台与茂盛的植被。每当阳光穿过,外立面上的竖向结构与植物一起创造出欢快的光影游戏。这种设置,将建筑从喧闹的街道环境中剥离,为建筑内部的人们营造出安静闲适的工作氛围。
▼既封闭又开放的临街立面效果 © Fernando Schapochnik
▼缝隙空间中茂盛的植被 © Fernando Schapochnik
▼室外庭院 © Fernando Schapochnik
▼立面细部 © Fernando Schapochnik
开放平面是设计的核心策略之一,旨在为工作人员提供充足的活动空间,进而整合并提高团队效率。基于这个理念,建筑师将纺织工业元素,以丰富的设计语言与艺术手段展示在开阔的空间中。通过对仓库的改造与再利用,主要功能空间以巨大的开放体量形式呈现出来,在这里,业主可以进行产品展示等各种各样的活动内容。同时,这种设置也颠覆了传统的工作模式,为人们提供了自由流动的办公场所。
▼室内概览 © Fernando Schapochnik
▼样品展示区 © Fernando Schapochnik
▼木制屏风将走廊空间隐藏起来 © Fernando Schapochnik
▼屏风后的走廊 © Fernando Schapochnik
▼大型仓库式空间后部设有室外庭院 © Fernando Schapochnik
仓库内开阔而明亮的大空间成为项目设计的灵感源泉,设计师在不同尺度的空间中采取不同的处理方式,并为它们赋予了全新的功能。与仓库相邻的建筑部分增设了两个全新的楼层,楼层上设有封闭的办公室与工作站。新建的楼层结构与原建筑巧妙地并列在一起,既不显得突兀又带有自己鲜明的特征。巨大的开窗,高高的天花板以及工作优化式的开放平面,营造出舒适的室内工作环境,同时激发了人们在工作中的创造性思维。
▼与仓库相邻的建筑部分增设了两个全新的楼层 © Fernando Schapochnik
▼开放式工作站 © Fernando Schapochnik
▼办公室前的休闲空间 © Fernando Schapochnik
▼封闭式办公室 © Fernando Schapochnik
▼楼梯细部 © Fernando Schapochnik
▼轴测分析图 © Ana Smud Studio
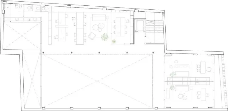
▼底层平面图 © Ana Smud Studio
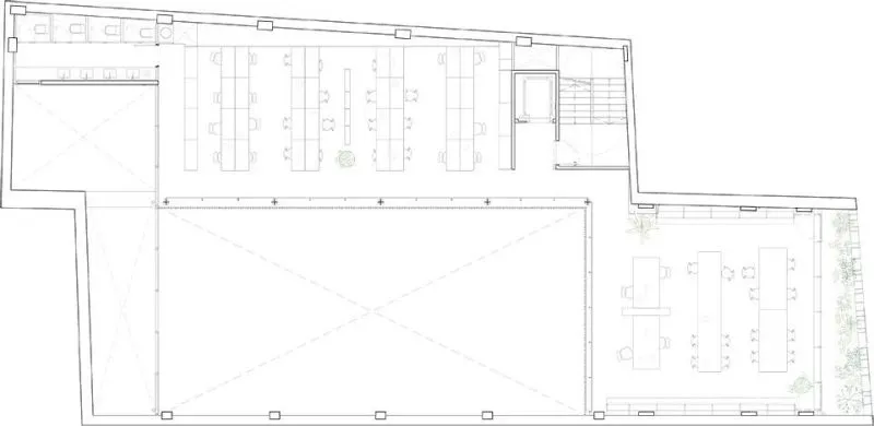
▼二层平面图 © Ana Smud Studio
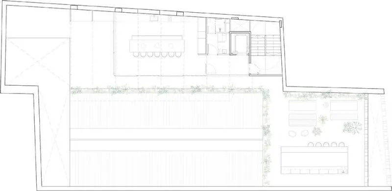
▼三层平面图 © Ana Smud Studio
▼顶层平面图 © Ana Smud Studio
▼剖面图 © Ana Smud Studio
▼临街立面图 © Ana Smud Studio
Project Name: Textile Soler Offices Architecture Office: Ana Smud Studio Website:
https://www.anasmud.com/
Contact email:
anasmud@gmail.com
Location Palermo, Buenos Aires Argentina. Project team: Ana Sol Smud, Alberto Smud, Sasha Molczadzki, Camila Jalife, Agustina Falcón, Milagros Ratto, Leila Matzkin. Lighting advisor: Pablo Pizarro Landscaping advisor: Estudio Bulla Builder: Alberto Smud Interior design credits: Agustina Gentilli, Marilina Martignone, Primos Numbers Workshop, Huup lighting, Helmut furniture, Sticotti, Herbarium plants, Broca furniture. Photographs: Fernando Schapochnik (
www.fernandoschapo.com
) Surfaces Covered area: 1210 m2 Semi-covered area: 15 m2 Uncovered area: 205 m2 Construction start year: 2017 Completion year: 2019


很漂亮的案子