URBAN CABIN
项目类型 | 商业空间
图文提供 | XINDESIGN
“littlewoods”项目位于上海浦东春泉路唐公馆,将一个临街商铺打造成一个咖啡馆。周边是住宅区居多,所以项目设计重点在于营造在社区的一个贴近生活的店。设计的灵感来自于店名的“woods”即树木。业主本身也是热爱回归自然木质的意愿。众多咖啡馆的意念都是为暗色调,我们打破原先固有思维,打造了一个相对白净整洁的空间。
轴测图 | Isometric drawing
前场区 | Anteroom
我们在操作区的上方开了一个“圈”连接二层的一个空间,沟通,交流,让空间更加通透,互动。
进入空间后,通过高低错落的空间划分功能,灰色水磨石台阶延伸卡座和吧台,使之连贯整个空间感。远离城市的喧嚣,在这里获取片刻的宁静。
Grey wooden bar
墙壁上的壁龛作为陈列使墙面灵活机动,可以随性布置陈列。
水磨石.实木.金属三种材质的组合,营造出贴近生活化的氛围。
空间的尺度随着操作台向上延伸,不同时间光线的变化带来不同空间体验。
Leisure bar
Leisure Area
组合的材质运用增添了空间趣味,在这里可以的三两好友相聚畅谈理想,也可以公司聚会沟通目标,设计师到达现场调试的灯光高度,定做的木质吊灯吻合了空间的气质。
Display wall
设计师设置了阵列的发光的铁艺盒子,陈列不同品类的咖啡豆。
铁艺与木质的碰撞空间中更有奇趣。
利用空间内的水磨石定制而成的装饰画,从不同的角度出发,展开与收集皆是用简练的方法呈现,最终即好看又好用。
Chandeliers
透过植物看卡座空间,和墙上的水磨石互补,清新而又不俗气。
水磨石地面,木质楼梯,纯白墙壁,呼应整体空间,每一处藏有绿意却又不明显。
Leisure area
两层的空间,不同空间层次和区域的体验。
经过楼梯通过墙面圆孔可以看到一二楼的挑空关系。
贯穿空间的水磨石材质,这里我们没有用暗调的水磨石,相对我们采用了偏白色调的,与白净相匹配。
Hue of workroom
External facade
入户的外立面我们没有改造它,用了它本身的拱形门进入另一番区域。
二楼的阳台,晓看天色暮看云。
ABOUT PROJECT
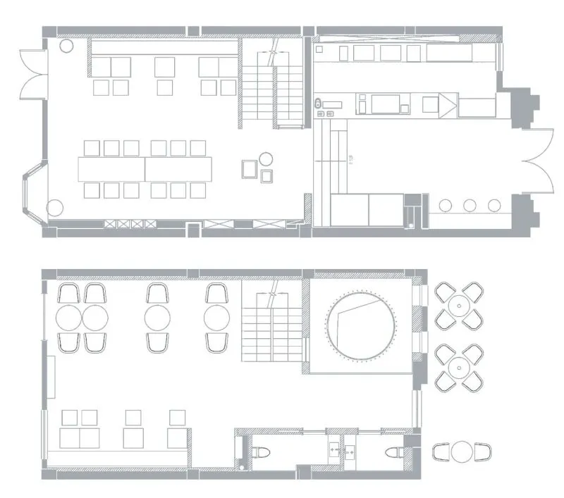
– 1楼-2楼 平面图 –
LITTLEWOODS
设计单位 | XINDESIGN 主创设计 | 辛举鹏 聂奇
上海浦东春泉路58弄55号
水磨石、木饰面、不锈钢
ABOUT DESIGNER
90后设计师,设计行业从业5年,有独特的设计理念,从美学/建筑运用全新的理解来诠释空间。通过对环境和文化的敏感度的选择,设计出能够体验到升华的作品。
设计师本着以“人文创意 ”的设计为愿景,致力于让设计更有价值,让空间更有内涵。涵盖各地区人文理念,并在了解不同地域文化的同时,挖掘其本身的价值,呈现更加有深度的作品;或以注入新的灵魂,重塑定义,使之更为新颖,我们尊重传统,同时也颠覆传统。

