仰望空间与生活的未来,
回望脚下热土中的文化。
江南情韵是文化的情感连接,
现代秩序是设计的理性落点,
“微风到帘栊,舞影入图绘。”
游刃于山石水波与悠悠书香中。
U形玻璃围合中的印象竹影,
“水天溶漾画桡迟,人影鉴中移。”
几处别景,点缀着江南的梦。
“室雅何须大,花香不在多。”
洽谈区是营销中心的书房,
交流在文雅的愉悦中进行。
秩序之美与功能之需共生,
和着二维与三维的视角,
“半亩方塘一鉴开,天光云影共徘徊”
水光石色间,是光阴的味道,
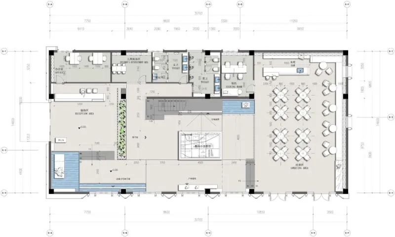
项目名称:杭州合能杭玥府售楼处
设计成员:董靓、范承禹、金志强、山旭东、高同彤
设计时间:2020年7月
竣工时间:2021年1月
当境设计成立于中国上海,致力于在全球视野下对当代设计的探索,创作时代前沿的作品。团队核心成员在室内设计领域都有超过十年以上的设计经验,参与过诸多大型公共项目设计,近年来专注于售楼处、样板房、配套酒店会所、配套综合商业设计,已成为地产领域许多标杆项目的合作伙伴。团队设计视野开阔,艺术交流广泛,提倡原创精神,打造高效率、高品质的设计机构。

