 
 
Love Letter in the Photos
项目类型 | 家装设计
图文提供 | 何雨晴-吴晨
◎ 关于屋主和理想中的家
about them and their ideal house
本案是一对年轻的夫妇,他们有着多元的爱好,对家有以下需求:
◎ 500本书以上的容纳空间
◎ 7-8个游戏掌机 几十张卡,PS游戏、VR体感游戏机等
◎ 男主是一位媒体人,主要工作是纪实拍摄,此外他也是名相机收藏爱好者,希望有空间展示自己拍的胶片摄影作品
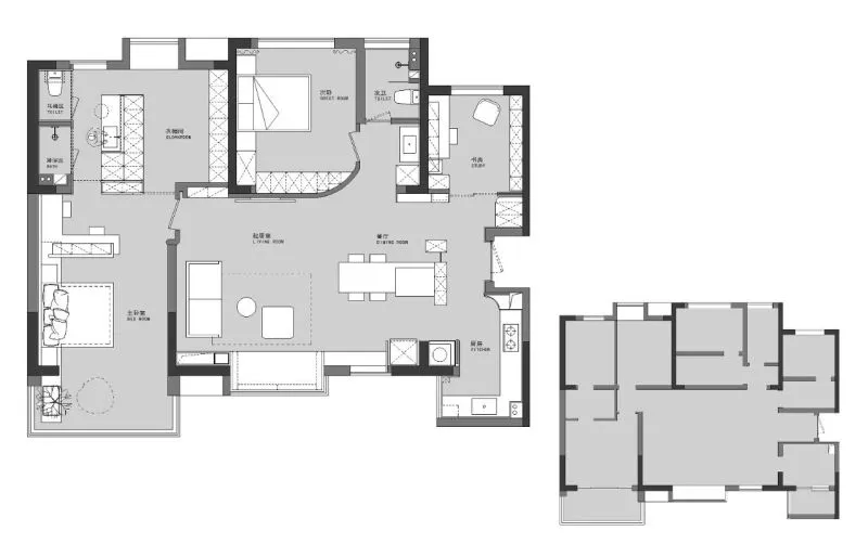
玄关作为进出家门的必经之口,是居家生活中最容易堆积杂物的地方。玄关的设计满足了日常进出时随手置物的必要需求——放包、放下手中物品、挂两件外套、放置装饰花器等。餐厅位于玄关空间的视觉延伸点上,为入户提供了一个明确的方向指引。
 
 
玄关鞋柜可容纳大量的鞋物,通过正面柜和侧面柜,极大地增加了储存空间。洗衣机和烘干机藏于柜内,美观和实用兼具。
 
 
 
 
当电视不再是日常必需品时,客厅的呈现形式即可更多元化。我们利用客厅原本的飘窗,增加了可休憩的复合功能,为客厅的休闲娱乐,社交活动提供了更多的承载空间和选择可能。
同时,墙上为男主预留了空间来展示他的摄影作品。
 
 
 
 
 
 
 
 
 
 
 
 
座榻两侧的悬空柜是不同功能的连接支点,平衡空间的碎片化。
 
 
 
 
 
 
 
 
连续的墙面,为空间增加了连绵的空间意境,指向一种平和与舒展的日常氛围;连续的墙面以弧线型作为拐点,以艺术涂料作为墙面肌理而呈现,一方面让整体空间趋于流畅与自然,另一方面更具日常的包容性与时间感。空间作为一种载体的特性,在这里突显出来。
 
 
 
 
 
 
 
 
书房入口处设计了酷似机关盒的立地收纳柜,贝司和游戏掌机合并至此处。立柜的材质采用3mm金属板贴面,科技感的外观体现年轻夫妇的性格色彩;立柜内部做了洞洞板,方便今后增加置物板,为未来的收藏留设余地。
书房是属于男主人的独享空间。在这个空间内,我们充分满足了男主人的需求,为他相机收藏爱好安置了归处。
 
 
 
 
 
 
 
 
 
 
 
 
 
 
主卧的深色原木连续性床靠背板,与空间上半部白色墙壁和天花板形成鲜明对比,营造了卧榻区的沉稳氛围,为睡眠质量提供环境保障。床靠背板延伸至书桌,视觉上延展进入工作区域。
工作区域同样设置了一组书柜,多区域的书柜以满足屋主庞大的藏书需求。书柜采用悬挑形式,搭配半围合的书桌,与卧榻区进行了间断性分隔,同时也与各类居家阅读场景相适应。
 
 
 
 
 
 
 
 
 
 
主卧到衣帽间和卫生间呈回游动线,移门可开可合,最外部的移门既可作为衣帽间的门,又可以作为书柜的门。
 
 
 
 
卫生间三分离设计,洗手台兼并了梳妆台,动线互不干扰。
 
 
 
 
 
 
厨房的移门是藏在两侧的墙里,可以满足开放式厨房和封闭式两种使用状态。
 
 
 
 
 
 
 
 
 
 
 
 
ABOUT PROJECT
 
 
 
 
项目地址 | 中国成都
全案设计 | 吴晨·何雨晴
项目面积 | 140 ㎡
项目造价 | 63 W
设计时间 | 2019年05月
ABOUT DESIGNER
 
 
他们专注于家的设计,打破固有思维的束缚,在家的空间里是开放、自由、包容的,通过创造的空间来讲述故事,感受空间的情感与温度。


